Architects Harris Vamvakas & Philippos Lagos designed a Kindergarten, Elderly Care Center and Public Square in Chania combining functionality, bioclimatics and Cretan architecture elements all mixed into a solid and coherent box-shaped volume.
-text by the architects
Designing a new kindergarten is always a significant but very sensitive task. When this kindergarten is combined with the additional function of an elderly daily care home and a new public square, it then becomes a symbolic project not only for the neighborhood but for the nature of public architecture in general. Following this point, we endeavor to design a modern and bold building complex that combines the three different functions harmoniously, while incorporating all the contemporary educational needs and public requirements.
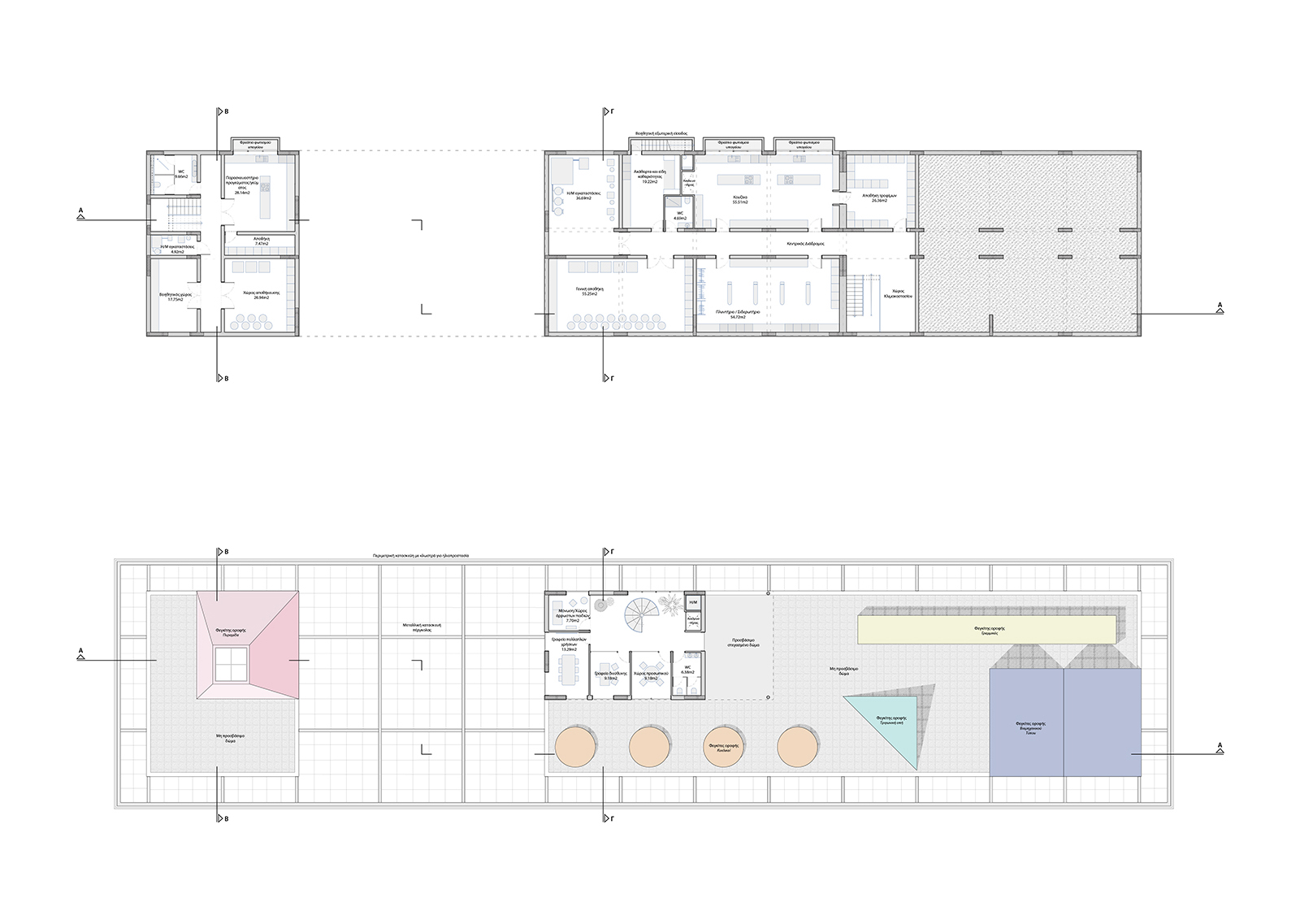
The building complex is formed through five main design steps, each corresponding to a specific set of demands. Firstly, we create a strong urban front aligning the building to the longest side of our plot. Then we divide it into two buildings for the kindergarten and the elderly care home correspondingly, while a circular public square is emerging between them.
In that way the square becomes the epicenter of our plot by emphasizing its three main axis, all meeting right there.
The rest of the landscape is formed through a combination of organic forms and paths that run all around the building and the square, animating in a creative way all the plot’s surface.
The architecture of the building itself is strongly defined as a combination of functionality, bioclimatics and Cretan architecture elements all mixed in a solid and coherent box-shaped volume.
This volume is then carved carefully to create an inviting and creative yet safe and efficient environment for kids and elders alike.
Facts & Credits
Typology National open architectural competition for a Kindergarten, Elderly Care Center and Public Square in Chania
Location Chania, Crete, Greece
Date July 2021
Architects Harris Vamvakas, Philippos Lagos
Civil Engineering Sofia Boutsaki
Mechanical Engineering Alex Vamvakas
Οι αρχιτέκτονες Χάρης Βαμβακάς και Φίλιππος Λαγός συμμετείχαν στον πανελλήνιο ανοιχτό σύνθετο αρχιτεκτονικό διαγωνισμό προσχεδίων “Υποδομές Πρόνοιας και Πάρκο Γειτονιάς στο Δήμο Χανίων” με μια πρόταση που θέτει στο επίκεντρο της αρχιτεκτονικής σύνθεσης, το πάρκο, ως κεντρικό πυρήνα οργάνωσης της δημόσιας ζωής της γειτονιάς, συνδυάζοντας, ταυτόχρονα, αρχές βιοκλιματικού σχεδιασμού με βέλτιστες συνθήκες λειτουργικότητας και προσβασιμότητας των επιμέρους κτηρίων καθώς και με χαρακτηριστικά στοιχεία της τοπικής κρητικής αρχιτεκτονικής.
-κείμενο από τους αρχιτέκτονες
Η κατασκευή ενός βρεφονηπιακού σταθμού αποτελεί ένα ιδιαίτερα σημαντικό έργο που πρέπει να αντιμετωπιστεί τόσο με συνέπεια και υπευθυνότητα όσο και δημιουργικότητα και ευαισθησία. Όταν μάλιστα το έργο αυτό συνδυάζεται με την κατασκευή ενός κέντρου φροντίδας ηλικιωμένων αλλά και ένα πάρκο γειτονιάς, το όλο εγχείρημα αποκτά συμβολικό χαρακτήρα για ολόκληρη την γειτονία στην οποία θα ενταχθεί αλλά και για το χαρακτήρα που θα πρέπει να διέπει ένα τέτοιο σύγχρονο συγκρότημα υποδομών πρόνοιας.
Κύριο μέλημα της πρότασης μας από τα πρώτα κιόλας στάδια ήταν η αρμονική ένταξη των τριων βασικών απαιτούμενων λειτουργιών (Βρεφονηπιακός Σταθμός, ΚΗΦΗ και πάρκο γειτονιάς) τόσο στο ευρύτερο αστικό επίπεδο όσο και στο δημιουργικό κτίριο πρόνοιας που καλούνται να συγκροτήσουν. Επιχειρείται ως εκ τούτου η δημιουργία ενός συγκροτήματος που ναι μεν εξασφαλίζει την πλήρη λειτουργικότητα και προσβασιμότητα για κάθε λειτουργία ξεχωριστά αλλά συγχρόνως ενθαρρύνει τον διάλογο και την συναναστροφή ανάμεσα τους καθώς και ανάμεσα στην γειτονιά. Οδηγούμαστε λοιπόν στις εξής σχεδιαστικές χειρονομίες οι οποίες θα διαμορφώσουν και το τελικό αποτέλεσμα της πρότασης μας όπως φαίνεται στα παρακάτω διαγράμματα.
Αστικό μέτωπο. Η περιοχή στην οποία βρίσκεται το οικόπεδο του κέντρου πρόνοιας βρίσκεται σε κοντινή απόσταση από το κέντρο της πόλης των Χανίων και χαρακτηρίζεται από ποικιλομορφία δόμησης και αρχιτεκτονική παραμένει όμως έντονα αστικού χαρακτήρα. Επιλέγουμε λοιπόν την τοποθέτηση του κτιριακού όγκου παράλληλα με την ανατολική πλευρά του οικοπέδου η οποία αποτελεί και το κύριο μέτωπο του, εξασφαλίζοντας την αστική συνέχεια στην περιοχή.

Πάρκο. Επόμενο βήμα είναι η δημιουργία του πάρκου γειτονιάς. Το πάρκο τοποθετείται στη συμβολή των δύο κεντρικών αξόνων της πρότασης μας, δηλαδή τον διαμήκη παράλληλο στον κεντρικό όγκο του κτιρίου με τον εγκάρσιο που δημιουργείται από την κατάτμηση του κτιρίου στα ⅔ του μήκους του. Πρόθεση μας είναι η ενοποίηση του πάρκου με τις υπόλοιπες ελεύθερες επιφάνειες του οικοπέδου καθώς και η ενθάρρυνση ποικίλων δημόσιων ροών που θα οδηγούν σε αυτό, ενεργοποιώντας όσο το δυνατόν μεγαλύτερο μέρος του οικοπέδου Πρόνοιας.
Λειτουργικότητα. Όπως είδαμε ήδη από το προηγούμενο βήμα ο κεντρικός κτιριακός όγκος χωρίζεται σε δύο μέρη φιλοξενώντας τον Βρεφονηπιακό σταθμό στο μεγαλύτερο και το Κ.Η.Φ.Η. στον μικρότερο αντίστοιχα. Ο περιβάλλοντας χώρος των δύο κτισμάτων διαμορφώνεται σε πλήρη συσχέτιση με τις λειτουργίες τους ως μια υπαίθρια επέκταση αυτών, ενώ το πάρκο μορφoποιείται ως μια κυκλική πλατφόρμα η οποία τέμνει στις γωνίες των δύο κτιρίων και προμηνύει την δημιουργία ενός κεντρικού πυρήνα ο οποίος θα συγκεντρώνει τη δημόσια δραστηριότητα της γειτονιάς.

Ταυτότητα. Στο τέταρτο βήμα επιλύονται τα επιμέρους αρχιτεκτονικά στοιχεία του κτιρίου μας. Καθώς θέσαμε τον βιοκλιματικό χαρακτήρα του κτιρίου ως απαραίτητη παράμετρο του συνολικού σχεδιασμού, προέκυψε μια σειρά από επιμέρους σχεδιαστικές χειρονομίες που εξυπηρετούν στην ενίσχυση αυτού. Μια σειρά από βιοκλιματικές καμινάδες / φεγγίτες οροφής θα σχηματιστούν στο δώμα και των δύο κτιρίων. Οι μορφές που παίρνουν οι εν λόγω καμινάδες/φεγγίτες εμπνέονται από διάφορα στοιχεία που συναντάμε στην αρχιτεκτονική της περιοχής ή γενικότερα στην Κρητική αρχιτεκτονική. Συγχρόνως η συνολική τους ογκοπλασία εντάσει το κτίριο μας αρμονικά στην γειτονία συνεχίζοντας την λογική των μικρών κτισμάτων, τμηματικών στεγών και άλλων μικρών κατασκευών που συναντώνται πολύ συχνά στις οροφές των γύρω κτιρίων, ενώ σε κάθε τύπο φεγγίτη αντιστοιχεί μια διαφορετική λειτουργία του κτιρίου.
Συνεκτικότητα. Τα δύο κτίσματα του Βρεφονηπιακού Σταθμού και του Κ.Η.Φ.Η. θα ενοποιηθούν τελικά κάτω από την κοινή κατασκευή σκίασης και ηλιοπροστασίας, η οποία αφού επεκταθεί περιμετρικα τους θα γεφυρώσει τελικά τον κενό χώρο ανάμεσα τους. Ο μεγάλος αυτός υπαίθριος μεν, αλλά προστατευμένος δε χώρος θα αποτελέσει κεντρικό σημείο της σύνθεσης μας, καθώς εκεί θα τοποθετηθούν οι χώροι εισόδου των δύο λειτουργιών. Είναι ο χώρος όπου συναντώνται και αλληλεπιδρούν τόσο οι δύο λειτουργίες μεταξύ τους όσο και με το σύνολο της γειτονιάς καθώς ο χώρος αυτός συγκροτεί και το κεντρικό πέρασμα που οδηγεί στην κεντρική κυκλική πλατεία και της οποίας αποτελεί συγχρόνως την ημιυπαίθρια προέκταση της.
Στοιχεία έργου
Τυπολογία Πανελλήνιος Ανοιχτός Σύνθετος Αρχιτεκτονικός Διαγωνισμός Προσχεδίων “Υποδομές Πρόνοιας και Πάρκο Γειτονιάς στο Δήμο Χανίων”
Τοποθεσία Χανιά, Κρήτη
Χρονολογία Ιούλιος 2021
Ομάδα αρχιτεκτόνων Χάρης Βαμβακάς, Φίλιππος Λαγός
Πολιτικός μηχανικός Σοφία Μπουτσάκη
Μηχανολόγος μηχανικός Αλέξιος Βαμβακάς
Check out, also, “Three Times Garden” by NYSA that won 1st prize at the national open architectural competition for a Kindergarten, Elderly Care Center and Public Square in Chania, here!
Δείτε, επίσης, την πρόταση “Κήποι Τρεις Χρόνοι” από το γραφείο NYSA που κέρδισε το πρώτο βραβείο στον πανελλήνιο ανοιχτό σύνθετο αρχιτεκτονικό διαγωνισμό προσχεδίων “Υποδομές Πρόνοιας και Πάρκο Γειτονιάς στο Δήμο Χανίων”, εδώ!













