Pandemic Architecture, an International Ideas Competition curated by the Design Ambassador for ARCHISEARCH.gr, invited the creative community to open up a dialogue and create a think tank, looking for ideas from the architectural and design community about the future of the living, the workspace, the public space and the tourism industry after the outbreak of Covid-19.
THE HEALING, was shortlisted in top 50 out of 440 projects.
-text by the authors
Nature Oriented, Liveable & Healthy
Modular Hospital
May 2020
The Healing | Pandemic Architecture Top50 from Archisearch on Vimeo.
The streets are empty, events and concerts are canceled, working from home becomes a
trend, malls, and public spaces are closed. That’s pandemic. This worldwide phenomenon of spreading viruses has caused many new challenges in our everyday lives.
With this pandemic situation, more and more people become infected and causing hospitals and health clinics to be “over-populated” with infected patients.
The hospital that was designed to be a normal space for normal numbers of patients becomes crowded and leads to unhealthy, closed circulated space for both patients and the health workers.

Doctors and health frontlines risking their health to treat and take care of infected patients. But can we change this? As an architect, can we create a solution for this pandemic phenomenon and saves more lives?

The Healing, which stands for healthy and living, is a conceptual design for a new kind of
hospital. Nature oriented, liveable, and healthy modular hospital that designed as a response to a pandemic.

In a generic/normal hospital, the infected patients get medical treatment, but the environment affecting their mental health such as feelings of boredom, loneliness, and isolation. The overcrowded environment and closed air circulations also become risky for both the patients and health workers.
In this “new hospital design”, we provide a space where patients can get medical treatments and also the most essentials aspects of a healthy environment such as sunlight, healthy air clean living space, and a view in the natural site.The idea of the design is to take the function of unused or closed public parks during this pandemic and turns it into a site of this compact hospital.
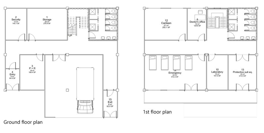
The hospital designed as “modules” from living or patients modules to the operation/main hospital module.
This module allows the hospital configuration to fit in any public parks, creating scenery and natural environment to the hospital and reducing the number of patients in the main city hospitals.
Each module designed to give the patients full experience of living; such as natural view of the parks, good natural lighting and air circulation, a digital LED glass window that allows the patients to communicate with friends and families, and a balcony to relax and communicate with other patients (designed with separator glass that create physical distance but maintains the visual).
In each module there’s also a piece of robotic medical equipment and a doctor control room to give the patients touchless medical treatments, minimizing the risk of the medical workers
getting infected.
The exterior and interior wall of the modules uses polycarbonate material for its durability, cleanliness and dust resistance, east maintenance/replace, and easy construction that fits for this temporary architecture.
The modules designed with elevated space, leaving the space under it for utilities and activities in the park as well.
These modules are intended to take care of the mild patients and placed in the parks of the cities, so when the case becomes more serious, it will be easier to transfer the patients to the main hospital.
___________________________________________________
Facts & Credits
Participants: William Mazmur
Country: Indonesia
The project was shortlisted in top 50 out of 440 projects.
The impact of Pandemic Architecture competition on the international architectural community was astonishing, with the number of registrations to exceed 800, with the final proposals to exceed 400 and with participants from more than 60 different countries.
Results were officially announced on the 25th of September.
_________________________________________
Check out the open call and the jury here!
READ ALSO: POP-UP CITY | Pandemic Architecture Top50









