Divercity Architects designed a detached family house located in Filothei, a low density leafy suburb of Athens, meeting the clients’ will for an intimate family house that could accommodate guests and become a space for entertainment at the same time.
-text by the authors
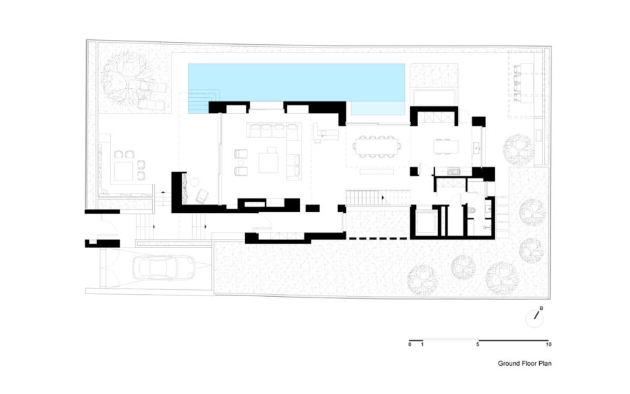
A key consideration in the design is the accommodation of a large building programme, within a tight plot. The heart of Filothei House is a double-height living room connected with the dining area and the kitchen overlooking the linear pool.



The mezzanine works as an “in- between” space that separates the private areas from the rest of the house and acts as a meeting point for the family members.



Filothei House is formed of a compact concrete volume with a strong tectonic character.


Τhe facade is eye-catching in its silhouette of stacked volumes punctuated with recessed cut-outs and elevated gardens.The incisions on the exposed concrete volume uncover a secondary softer layer of the house, which is cladded in timber and reinforces the spatial dialogue between the inner and outer layer. The design aims to provide an outdoor experience to the everyday family life, while offering a degree of fragmentation that brings the building closer to the scale of residential urban units.

Drawings


Facts & Credits
Project title Filothei House
Location Filothei, Athens, Greece
Status Complete, 2019
Client Private
Architecture Divercity Architects
Structural Engineer MFP – K. Mylonas I. Prionas & Associates
Service Engineer TEKEM
Landscape Designer West Green
FF&E Consultant Thingk – Sophia Vantaraki
Lighting Designer LUUN
Audiovisual Consultant Projecting & Sounding ART
Construction Manager F. & K. Kydoniatis Architects & Partners
Photography Mariana Bisti
READ ALSO: Archisearch Talks: Sofia Krimizi & Kyriakos Kyriakou - Podcast Recap




