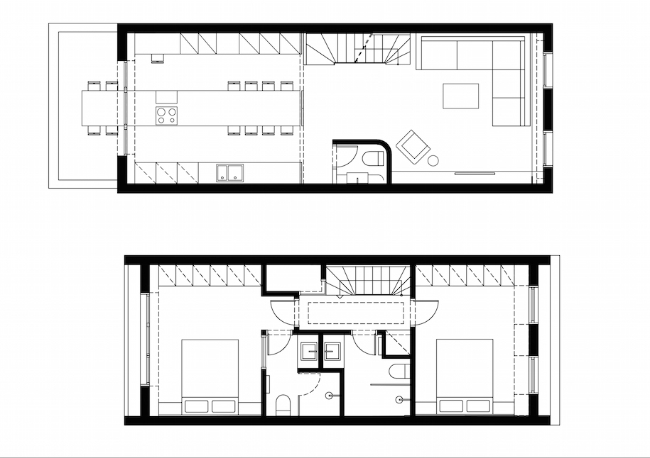
text provided by the architects – The 95 sq.m. apartment takes over the second and third floor of a three storey building at Regent’s Park, London. The main objective of the design was the 25 sq.m. extension of every floor and the radical re-planning of the whole apartment. Having a new, larger shell, the second floor of the building turns into a unified space, accommodating the living room, kitchen and common wc. Respectively, the third floor is also rearranged in two bedrooms with their own en-suite wc. In the unified second floor, the concept of continuity is applied, with uninterrupted light flowing across it. This linearity is also emphasized by the continuity of materials; the crafted stone extends from the living room floor all the way to the kitchen bench and through the window to create a floating exterior bench. The only interruption of this linearity occurs at the frame, where the glass and metal divider moves along the ceiling rails, in order to offer space flexibility with its three possible positions: closed, partly closed, open. There is also a linear connection between the two floors, where the metal structural elements run on the vertical axis along the staircase, while additionally forming the railing and the entrance hall furnishing. The material choice (oak, stone, silestone, grey lacquer, black and golden metal elements, wall textures) combined with the clean lines of hidden lighting and specific point and linear lamps, complete a composition where all the elements coexist in balance.


κείμενο από τους αρχιτέκτονες – Το διαμέρισμα των 95 τ.μ. καταλαμβάνει τον δεύτερο και τον τρίτο όροφο ενός τριώροφου κτιρίου στο Regent’s park του Λονδίνου. Κυρίαρχος στόχος της μελέτης ήταν η επέκταση κάθε ορόφου κατά 25 τ.μ., ώστε να δημιουργηθεί ένα διώροφο διαμέρισμα με άνετους και λειτουργικούς λιτούς χώρους, στα πλαίσια μιας ριζικής ανακαίνισης όλου του κτιρίου.
Η σχεδιαστική πορεία που ακολουθήθηκε είχε δύο συνισταμένες, την επέκταση του κάθε ορόφου σε οριζόντιο άξονα και την καθαίρεση των εσωτερικών τοίχων με στόχο την πλήρη αναδιαμόρφωση του διώροφου διαμερίσματος. Έχοντας πλέον ένα νέο μεγαλύτερο κέλυφος ο δεύτερος όροφος του κτιρίου μετατρέπεται σε έναν ενιαίο χώρο που περιλαμβάνει τους χώρους διημέρευσης, το καθιστικό και την κουζίνα με μοναδικό κλειστό όγκο το κοινόχρηστο wc. Αντίστοιχα, ο τρίτος όροφος διαμορφώνεται εκ νέου και περιλαμβάνει τα δύο υπνοδωμάτια με τα δικά τους en-suite wc.



Ο σχεδιασμός του δεύτερου ορόφου χαρακτηρίζεται από ενιαίες χαράξεις προωθώντας τη λογική ενός συνεχόμενου χώρου, χωρίς οπτικές διακοπές, επιτρέποντας το φυσικό φως να τον διαπεράσει ολοκληρωτικά. Η γραμμικότητα αυτή τονίζεται από τη συνέχεια των υλικών – η πέτρα ξεκινάει από το δάπεδο του καθιστικού για να μετατραπεί σε νησίδα κουζίνας και να καταλήξει σε αιωρούμενο πάγκο στον εξώστη. Μοναδικό στοιχείο διακοπής αυτής της γραμμικότητας είναι το μεταλλικό διαχωριστικό το οποίο λόγω των υλικών (λεπτά μεταλλικά στοιχεία και γυαλί) δεν περιορίζει τη λειτουργική και οπτική ενοποίηση, προσδίδοντας ευελιξία στον χώρο. Η μορφή του μεταλλάσσεται διαρκώς από πλήρως κλειστό, σε εν μέρει κλειστό αφήνοντας ανοιχτούς διαδρόμους κίνησης και σε πλήρως ανοιχτό.
Η γραμμικότητα του διαμερίσματος μεταφέρεται από τον οριζόντιο στον κατακόρυφο άξονα στη θέση της σκάλας. Τα μαύρα μεταλλικά στοιχεία που διατρέχουν και τους δύο ορόφους λειτουργούν ως στατικός φορέας, ως προστατευτικό της και ως τοπόσημο – έπιπλο εισόδου στον χώρο.
Υλικά όπως δρυς σε δάπεδο, έπιπλα και επένδυση τοίχου, πλακίδια πέτρας ειδικής κοπής, silestone στους πάγκους των μπάνιων, γκρι λάκα, μαύρα και χρυσά μεταλλικά στοιχεία, μπλε υφάσματα και τεχνοτροπίες τοίχου σε συνδυασμό με καθαρές γραμμές κρυφού φωτισμού, αλλά και συγκεκριμένων σημειακών και γραμμικών φωτιστικών ολοκληρώνουν τη δημιουργία ενός χώρου στον οποίο συνυπάρχουν αρμονικά.





Facts & Credits
τίτλος έργου The Stretched Apartment
σχεδιασμός & κατασκευή Urban Soul Project
τοποθεσία Λονδίνο, Ηνωμένο Βασίλειο
έτος κατασκευής 2017
φωτογράφος Άννα Σταθάκη
title The Stretched Apartment
design & construction Urban Soul Project
location London, United Kingdom
project year 2017
photographer Anna Stathaki
More amazing architectural interiors by Urban Soul Project, here!
Ένα ακόμη φανταστικό έργο των Urban Soul Project, εδώ!






