DREAM HOUSES // Villa Paloma: νησιωτική ζωή με επιμελημένη απλότητα | από το Studio Katia Petsali

Επαναπροσδιορίζοντας τη νησιωτική ζωή με επιμελημένη απλότητα, η ανακαίνιση της «Villa Paloma» στο νησί των Παξών από το Studio Katia Petsali αποτελεί έναν διάλογο ανάμεσα στην τοπική μνήμη και τη σύγχρονη εκλέπτυνση.

Η παρούσα μελέτη αφορά την ολική ανακαίνιση και αρχιτεκτονική ανασύνθεση ενός παραδοσιακού λιθόσπιτου και του περιβάλλοντος χώρου του, με σεβασμό στα υφιστάμενα μορφολογικά στοιχεία, την υλικότητα και το φυσικό τοπίο.

Η κατοικία ενσωματώνεται αρμονικά στο μικρό, μεσογειακό νησί των Παξών, όπου η έντονη φυσιογνωμία από ελαιώνες, μικρά νησάκια και απότομους βράχους που καταλήγουν στην θάλασσα από μεγάλο ύψος δημιουργεί το πλαίσιο της σύνθεσης. Κρυμμένη σε ένα ήσυχο φυσικό ανάγλυφο με θέα προς τη θάλασσα, η λιθόκτιστη βίλα συνθέτει μια αδιάλειπτη σχέση ανάμεσα στη διαχρονική μεσογειακή αρχιτεκτονική και τη σύγχρονη πολυτέλεια.

Κάθε αρχιτεκτονικό στοιχείο, από τη χειροποίητη λιθοδομή έως τους διαμορφωμένους κήπους και τις υλοποιημένες επιφάνειες, αποτυπώνει την ανθεκτική τοπική τέχνη και την προσεκτική σχεδιαστική προσέγγιση.

Οι Παξοί διακρίνονται για την ιδιαίτερη λιθοδομή τους, με την χαρακτηριστική κρεμ απόχρωση της πέτρας που δίνει στο νησί μια θερμή, ηλιοκαμένη ταυτότητα.

Όλες οι πέτρες της κατοικίας και των εξωτερικών διαμορφώσεων προέρχονται από τον ίδιο τον χώρο της εκσκαφής και επεξεργάστηκαν μια-μια στο χέρι.

Η σχεδίαση αντλεί στοιχεία από την παραδοσιακή Παξινή αρχιτεκτονική, όπως οι επιβλητικοί λιθότοιχοι που χαράζουν το τοπίο, οι μικροί όγκοι σε αρμονική διάταξη και οι λιθόστρωτες αυλές που διαμορφώνουν περιπατητικές και οπτικές διαδρομές, διατηρώντας μια ισχυρή σύνδεση με το παρελθόν και αναδεικνύοντας τη σύγχρονη ερμηνεία του.

Η παραδοσιακή ξερολιθιά εξασφαλίζει όχι μόνο δομική ακεραιότητα αλλά και θερμική άνεση, ενώ τα παλιά ξύλινα παντζούρια και τα φθαρμένα από τον χρόνο δοκάρια, διατηρημένα και επανατοποθετημένα, προσθέτουν ρουστίκ χαρακτήρα που επαναπροσδιορίζεται μέσα από τη σύγχρονη αρχιτεκτονική λιτότητα.

Το αποτέλεσμα είναι ένας διάλογος ανάμεσα στην κληρονομιά και τη σύγχρονη αισθητική: ένα σπίτι που ριζώνει βαθιά στον τόπο, αναδεικνύοντας το φως, την πέτρα και τη σιωπή ως κύριους αφηγητές της εμπειρίας.

Στον εξωτερικό χώρο, η πισίνα με σμαραγδένια ψηφιδωτά —εμπνευσμένη από τις πράσινες αποχρώσεις της αγαπημένης παραλίας “Κάκη Λαγκάδα” — εκτείνεται κάθετα στο σπίτι, πλαισιωμένη από χαμηλούς πέτρινους τοίχους και αιωνόβιες ελιές που ρίχνουν διάσπαρτες σκιές.

Η μακρόστενη μορφή της πισίνας αντανακλά τον κεντρικό όγκο του σπιτιού, δημιουργώντας μια σχέση ανάμεσα στο παλιό και το νέο. Χαμηλοί πέτρινοι τοίχοι και αιωνόβιες ελιές απαλύνουν το όριο του δομημένου χώρου, ενώ ξύλινα deck και λιτά έπιπλα από ρατάν και καμβά ενισχύουν την αίσθηση χαλαρής κομψότητας.

Η κατοικία έχει σχεδιαστεί για να εκμεταλλεύεται τη δυτική θέα προς την θάλασσα, με ψηλά κυπαρίσσια να οριοθετούν το οικόπεδο και να δημιουργούν ένα φυσικό πλαίσιο ιδιωτικότητας χωρίς να εμποδίζουν την οπτική επαφή με τον ορίζοντα. Η ένωση του μπλε της θάλασσας με την επιφάνεια της πισίνας δημιουργεί μια οπτική συνέχεια που ενισχύει τη σύνθεση μεταξύ φυσικού και κατασκευασμένου.

Όντως, οι υπαίθριοι χώροι διαβίωσης σχεδιάστηκαν ως αλληλουχία αισθητηριακών εμπειριών.

Πέτρινα σκαλοπάτια ακολουθούν την φυσική κλίση του εδάφους, οδηγώντας σε μονοπάτια και υπερυψωμένες φυτεμένες ζώνες – παχύφυτα και αγαύες – εκφράζοντας μια σχεδιαστική φιλοσοφία ριζωμένη στη βιωσιμότητα και την τοπική ευαισθησία. Η εξωτερική κουζίνα – με ξύλινα ντουλάπια και πάγκους από πατητή τσιμεντοκονία κάτω από πέργκολα από μπαμπού – επεκτείνει τη γλώσσα των υλικών του σπιτιού στον εξωτερικό χώρο. Η κουζίνα συνδέεται οπτικά και λειτουργικά με την εξωτερική τραπεζαρία, δημιουργώντας έναν ενιαίο, γήινο χώρο εξωτερικής ζωής.

Στο εσωτερικό, οι αυθεντικοί πέτρινοι τοίχοι, διατηρημένοι και αρμολογημένοι εκ νέου, αποκαλύπτουν την ιστορικότητά τους.

Πέτρινες καμάρες, λευκασμένες δοκοί και δάπεδα από φυσική πέτρα ή ξύλο συνθέτουν μια παλέτα ήρεμηςμοντέρνας έκφρασης, όπου η υλικότητα, το φως και η σκιά γίνονται οι πρωταγωνιστές. Παράθυρα τοποθετημένα στο κέντρο των παλαιών πέτρινων τοίχων πλαισιώνουν θέες προς το Ιόνιο, τον ελαιώνα και την πισίνα, διατηρώντας μια σταθερή σύνδεση με το τοπίο.

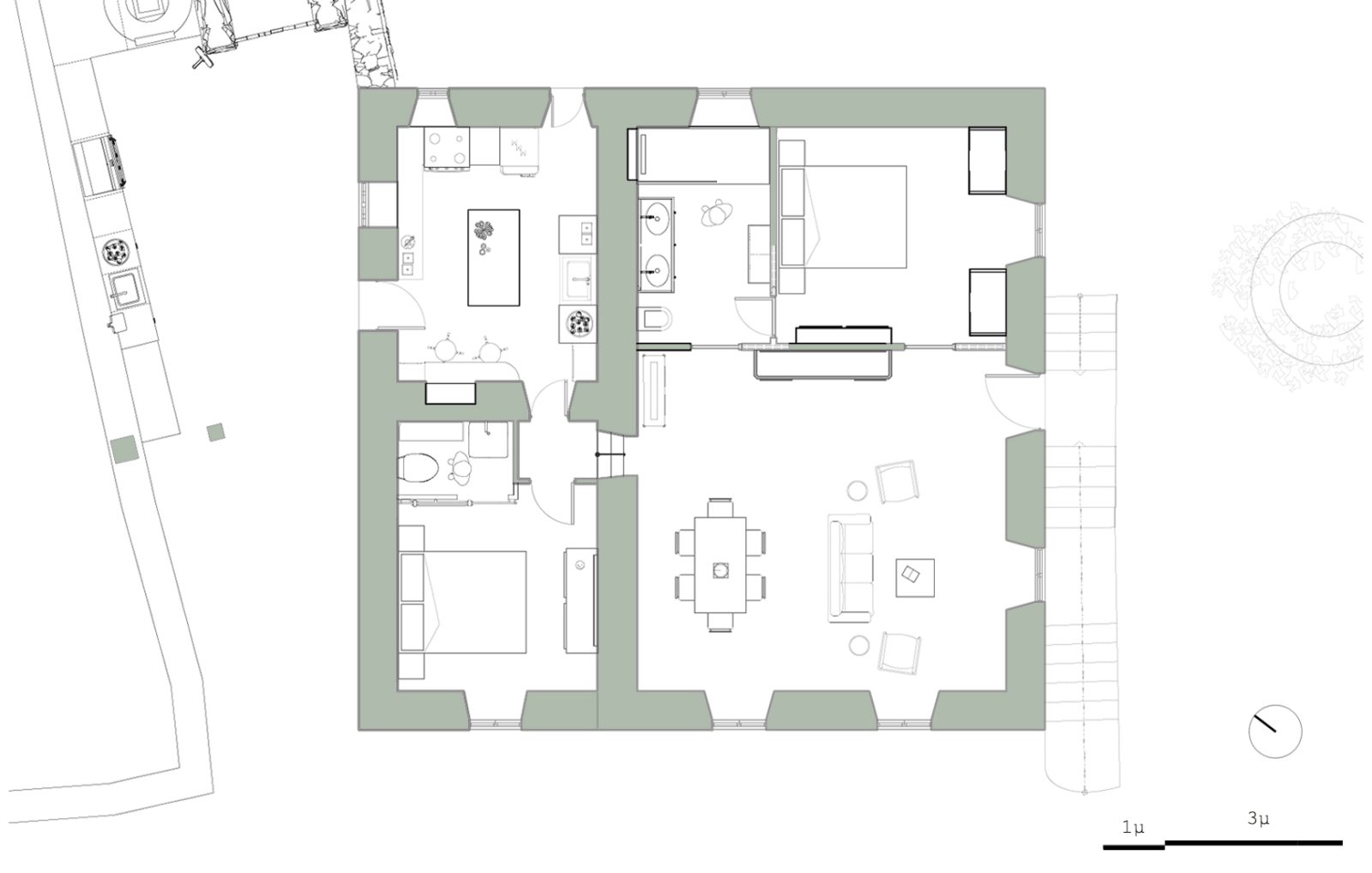
Η κάτοψη – λιτή αλλά γενναιόδωρη – οργανώνεται γύρω από τον κεντρικό, ανοιχτό χώρο καθιστικού και τραπεζαρίας. Τα υπνοδωμάτια στα άκρα εξασφαλίζουν ιδιωτικότητα, διατηρώντας ταυτόχρονα οπτική συνέχεια με τον εξωτερικό χώρο. Η κουζίνα, ελαφρώς υποχωρημένη, ισορροπεί μεταξύ λειτουργικότητας και ανοιχτότητας. Η κυκλοφορία ακολουθεί γραμμικά τους παλιούς τοίχους, σεβόμενη το ιστορικό αποτύπωμα.

Παθητικές στρατηγικές σχεδιασμού, όπως ο φυσικός αερισμός και η θερμική μάζα, μειώνουν την εξάρτηση από μηχανικά μέσα, συνδέοντας τη βιωσιμότητα με την αρχιτεκτονική λιτότητα.

Η «Villa Paloma» δεν είναι απλώς μια ανακαίνιση· είναι μια αρχιτεκτονική αφήγηση φωτός, ύλης και ηρεμίας, που προσκαλεί σε έναν τρόπο ζωής που συνδυάζει την άνεση με την κομψότητα και μια βαθιά σχέση με τον τόπο.

Στοιχεία έργου
Τίτλος έργου Villa Paloma
Τυπολογία Ανακαίνιση κατοικίας, Σχεδιασμός Τοπίου
Τοποθεσία Παξοί, Ελλάδα
Αρχιτεκτονική μελέτη και Σχεδιασμός Τοπίου Studio Katia Petsali
Χρονιά Ιούνιος 2025
Κατάσταση Ολοκληρωμένο
Διαχείριση & επίβλεψη έργων Studio Katia Petsali
Κατασκευή PLC – Paxos Land & Constructions
Φωτογραφία Studio Katia Petsali
Kείμενο από τους δημιουργούς 


A Paxiot Stone Haven: Architectural Elegance in Harmony with Nature. Redefining island living with crafted simplicity and calm sophistication in Paxos Island, Greece, by Studio Katia Petsali

Rooted in the island’s storied stone tradition, the project honors the original fabric of a centuries-old house while reimagining it for modern Mediterranean living. Cream-hued limestone, quarried and shaped by hand onsite, grounds the villa in its natural and cultural landscape. Dry-stone masonry and reclaimed weathered shutters maintain historical authenticity and structural integrity, offering thermal comfort across the seasons.

These elements form a tactile, enduring shell that anchors the residence within the timeless terrain of Paxos—an island where olive groves, dramatic cliffs, and the ever-present Ionian horizon shape both view and spirit.

Spatial choreography is central to the villa’s architectural narrative. Arrival unfolds gradually: shaded outdoor lounges give way to a luminous terrace, then to an emerald-tiled pool inspired by the jade sea at Kaki Lagada beach. The pool’s elongated form parallels the main volume of the house, creating a visual dialogue between architecture and landscape.

Low golden-stone walls and mature olive trees soften the built edge, while timber decking and understated furnishings in rattan and canvas reinforce an atmosphere of relaxed sophistication. Outdoor living spaces are orchestrated as a sequence of sensory encounters.

Terraced stone stairways ascend the natural slope, leading to elevated garden paths planted with native succulents and agave, reflecting a design ethos rooted in sustainability and regional sensitivity.

The outdoor kitchen—crafted of rustic wood cabinetry and polished concrete counters under a bamboo pergola—extends the home’s material language outdoors, seamlessly connecting utility with beauty.

Adjacent, a dining space defined by a rough-hewn stone wall and dark oak table under a fringed canopy offers both intimacy and openness, blurring the threshold between interior and exterior. Details—curved stair corners, smooth stone coping around the pool, subtly integrated lighting—reveal a profound respect for craft and place. Even the smallest water feature, channeled through an aged stone spout, becomes a moment of sensory and visual poetry.

Inside, the villa’s material narrative continues with original masonry walls left exposed, carefully cleaned and repointed to reveal their layered history. Vaulted timber ceilings, whitewashed, reclaimed beams, and natural stone or timber floors establish a palette of quiet modernity—where texture, light, and shadow become architectural protagonists. Deep – set windows frame curated vistas of the Ionian Sea, olive groves, and the pool, reinforcing a constant dialogue with the landscape.

The plan is both compact and generous: a central open-plan living and dining space acts as the spatial heart, beneath exposed trusses that invite communal gathering. Bedrooms at opposing ends ensure privacy while maintaining visual continuity with the outdoors. The kitchen, recessed yet connected, balances functional separation with openness, embodying crafted simplicity.

Circulation flows linearly along thick original walls, preserving historical footprint and axial clarity.Passive design strategies—cross-ventilation, thermal mass, and strategic shading—minimize mechanical reliance, aligning sustainability with architectural restraint. Local materials, durable finishes, and preservation over demolition express an ecological ethos where longevity becomes luxury.

Ultimately, Villa Paloma transcends mere renovation; it becomes an architectural narrative of light, material honesty, and crafted stillness.

Intimate yet expansive, rustic yet refined, it invites inhabitants into a life attuned to the rhythms of stone, sea, and sky—where every sunset becomes part of an ever-evolving, deeply personal story to be told.

Facts & Credits 
Project title Villa Paloma
Typology House Renovation & Landscape Design
Location Paxos Island – Greec
Architectural, Interior & Landscape design Studio Katia Petsali
Year June 2025
Status Completed
Project managing & Supervision Studio Katia Petsali
Construction PLC – Paxos Land & Constructions
Photography Studio Katia Petsali
Text provided by the architects 


RELATED ARTICLES