Canongeta Housing Renovation Project designed by Chiralt Arquitectos, highlights the importance of intelligently reusing existing spaces. Located in Moncada, Valencia, Spain the architectural proposal for the repurposing of an empty ground-floor space makes use of ceramic, vegetation and light while enhancing the communal living areas in order to create a functional house.
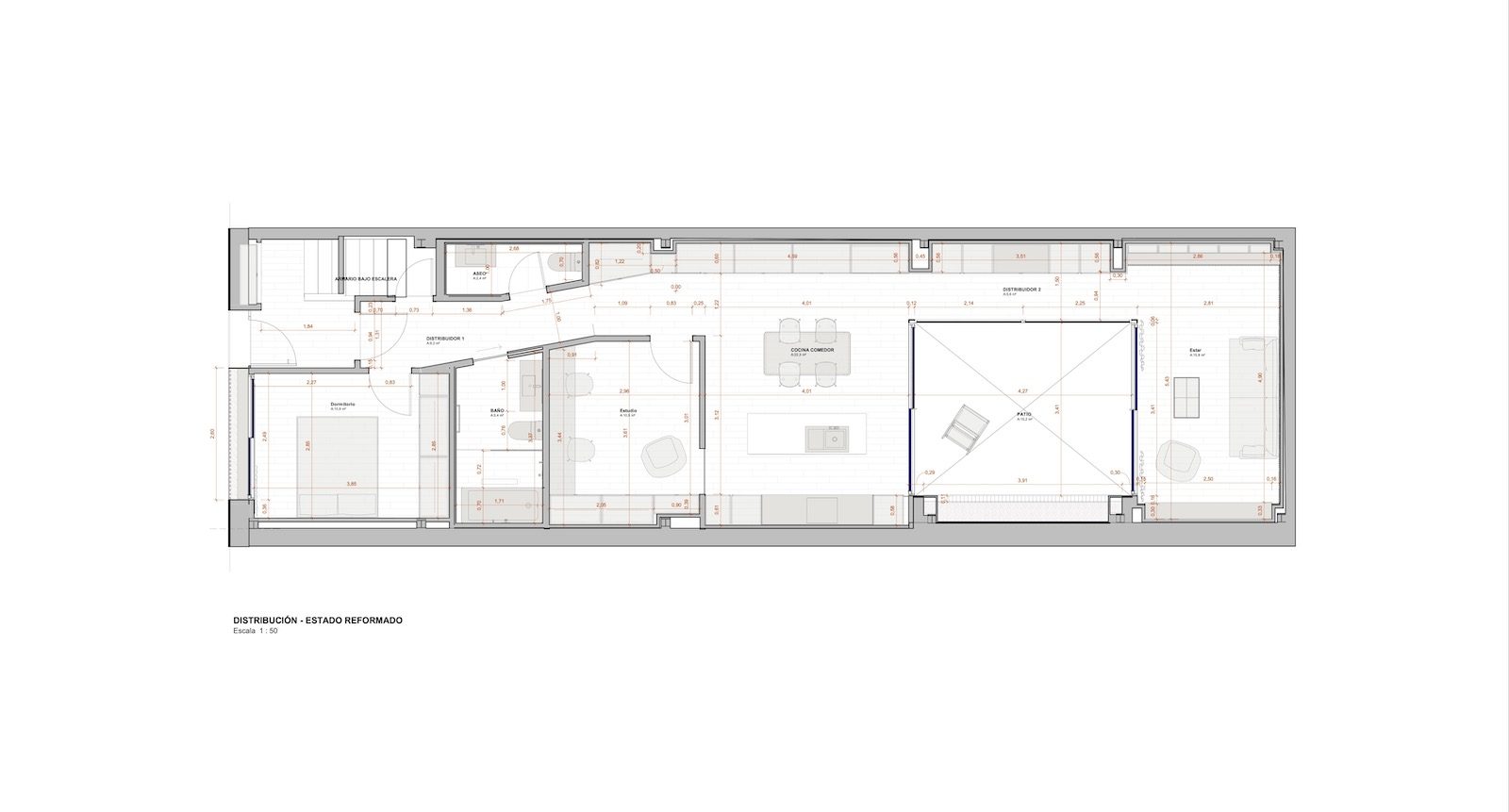
Designed by Chiralt Arquitectos, Canongeta is a 107 m² house renovation located in Moncada, Valencia, Spain. The aim was to transform the narrow, elongated ground floor of a multi-family building into an intimate, functional living space with plenty of character.
The challenge was to design a comprehensive housing programme that made the most of the ground floor space, while ensuring that the communal areas of the house could be fully enjoyed.
The proposal focuses on maximising the performance of the living area by creating an open-plan space that opens completely onto the interior patio.
The patio, deeply linked to personal memories, becomes the narrative principle of the new design.
While its appearance has changed, its location and meaning remain the same, preserving the memories of the past. Strategically positioned between the living room and kitchen, the patio connects the rooms in the day area. Thanks to its glass enclosures, it becomes part of the interior, both functionally and visually.
The reddish skin of contemporary ceramic that forms the patio cladding is a symbol that honours the area’s traditional pottery, creating a link between modernity and tradition.
The interplay of ceramic, vegetation and light produces a distinctive feature at the heart of the house’s design.
The comb-shaped layout comprises two parallel longitudinal volumes that enhance the feeling of fluidity.
One volume contains the various rooms of the house, while the other, resembling a stem, provides access via a slightly zigzagging corridor running from the entrance to the living room.
This corridor is accompanied by multifunctional built-in cupboards that can be adapted to suit the storage needs and hidden functions of each room.
The sleeping area is located at the entrance, while the living area is tucked away inside the house.
The latter is clearly defined by colour: the kitchen is black, the patio is red, and the living room is sepia-coloured. This chromatic differentiation both unifies and divides the various elements of the project.
The kitchen stands out for its solid design. The black ensemble is perceived as a compact volume, which is perfectly balanced by the green and red tones of the patio. The woodwork surrounding the glass window maintains material continuity, serving as a frame that emphasises the exterior view.
The façade offers a subtle glimpse of the interior. The design uses the same brick language, but in this case it is employed to promote discretion through the use of white tiles.
The sardinel bond creates a play of vertical lines, combining textured tiling in the centre with smooth tiling at the edges. The shadows cast by the street trees create an interplay of sinuous textures, volumes and perceptions.
The project highlights the importance of intelligently reusing existing spaces.
The new design creates a home that is more organic and functional. It values its origins and the memories associated with them, and will accompany the owners in this new stage of their lives.
Drawings
Facts & Credits
Title Canongeta
Typology Architecture, Renovation
Location Moncada, Valencia, Spain
Area 107 m2
Status Completed, 2024
Architecture Chiralt Arquitectos
Team Jaume Chiralt and Camilo Cabrera (Chiralt Arquitectos studio)
Interior design Jaume Chiralt and Camilo Cabrera (Chiralt Arquitectos studio)
Photography Alberto Chiralt
Text by the authors
READ ALSO: ISLAND ARCHITECTURE // LOFOS Residence in Paros by React Architects















