(2020–2025) BEST OF: Micro-Living Architecture by Archisearch presents a five-year retrospective examining micro-living as a critical domestic response to the inherent pressures of the megacity.
As the private realm contracts, the city itself increasingly becomes its extension.
Micro-living tells a story of domesticity unfolding within contemporary metropolises, where intensity replaces abundance. Within this ferocious urban complexity, the minimum housing unit—the apartment—is drastically compressed. One fundamental question arises: How small is too small? And how far can reduction go while a space still remains a home?

Japanese philosophy offers a crucial lens through which these questions can be re-examined. In a tradition long accustomed to density and constraint, smallness has never been synonymous with lack. Instead, it is articulated through Ma—one of the most subtle and powerful concepts in Japanese philosophy and spatial culture, often translated as gap, interval, or pause. Unlike Western notions of space as something to be filled or occupied, Ma understands space as active, relational, and alive.
“We need architecture that can accept change, growth, and decay,” observed Japanese architect and founding member of the Metabolist Movement, Kisho Kurokawa, a conviction that echoes today in micro-living as an adaptive architectural strategy; one that negotiates individuality and collective urban coexistence.
Ma becomes a deliberate architectural strategy through which architects resist the over-determination of space, allowing openness, versatility, and everyday life to shape the dwelling beyond its physical limits.
Contemporary micro-living operates at this threshold, compressing function to its limits while preserving space for memory, ritual, and intimacy.

Reduction in micro-living is not deprivation; it is an epicurean act.
Between 2020 and 2025, the minimum dwelling has come to be understood as an inseparable component of post-modern urban life, with micro-living emerging as a prototypical mode of inhabitation within the fragmented and pluralistic collage city. Here, growth happens through subtraction.
Distances and surfaces shrink, while closeness, creativity, and hidden yet deeply meaningful pleasures are intensified.
As Shigeru Ban reminds us, “architecture should be able to improve people’s lives, even in small ways.” Micro-living embodies this ethos through modest interventions with meaningful everyday impact. Within micro-interiors, small luxuries surface quietly: light filtered through a narrow opening, a carefully crafted joint, a surface shaped by daily use. Echoing Ryue Nishizawa’s observation that “small spaces can create richer experiences than large ones,” micro-living unfolds as a playful succession of disclosures. Sliding panels, foldable furniture, layered thresholds—space reveals itself gradually, in time rather than in scale. The small becomes intensely personal, reflecting the Japanese domestic tradition in which rooms adapt to life rather than dictate it. Yet paradoxically, this personal intensity can be standardized: micro-living sets an example for how construction excellence and low-budget constraints can coexist without diminishing quality.

Were this the Renaissance, these tiny rooms would register as cabinets de curiosités; microcosms of meaning curated through precision and restraint.

A micro-home fits the body before it conforms to the plan.
To inhabit today’s postmodern—fragmented, multicultural, and multilayered—cities, marked by contradiction and discontinuity, requires an immersion in assemblages of moments, materials, desires, and needs, all negotiated within limited time and space. As Michel de Certeau reminds us, “to inhabit is to practice space.”



Micro-homes, therefore, are not defined merely by their dimensions but by a heightened domestic awareness; one that recognizes the body as our first dwelling, and architecture as the careful calibration of its rhythms.


2025
Basilica Micro-House in Chania, Crete by inDetail Architecture
This 35.00 m² renovation of a three-storey Venetian building in the Old Town of Chania reimagines domestic comfort within an exceptionally constrained interior. The design strategy minimizes intervention in the existing shell, carefully preserving the original wooden mezzanine floors and roof structure, while introducing new living spaces that balance spatial efficiency with material continuity.
Read more here!



2024
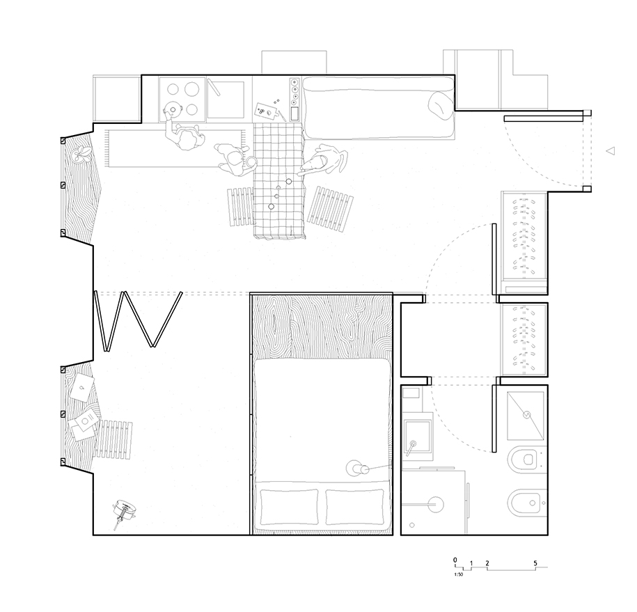
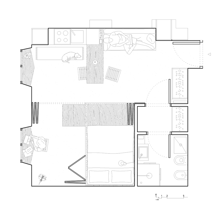
Violetta Apartment in Athens by threshold
The Violetta Apartment is a complete renovation of a 25 m² first-floor flat defined by a carefully designed, mono-material furniture element that organizes the entire space. Through minimal yet precise interventions, threshold team creates a sense of home within restrained conditions. Every element is multifunctional—the corridor becomes the kitchen, storage integrates into surfaces, and the sleeping area occupies the space above the cooking zone—allowing the apartment to feel larger than its footprint.
Read more here!


2023
The Cabanon of Rotterdam or The World’s “Biggest” Smallest Apartment, by STAR & BOARD
Measuring just 6.89 square meters, this micro-dwelling in Rotterdam distills architectural charm to its purest form. It speaks the unspoken: the city pulses through the home as a body pulses through the muscle we call the heart. Conceived by architects and owners Beatriz Ramo and Bernd Upmeyer—founders of STAR strategies + architecture and BOARD (Bureau of Architecture, Research and Design) respectively—Cabanon operates as a shared spatial experiment. At once a second home and a floating refuge for two, it is imagined as a bed beneath the stars, a living room with a view, and an intimate spa—compressing urban life into a singular, carefully calibrated interior.
Read more here!



TINY HOUSE in Athens by Loculus Design Architecture Studio
TINY HOUSE, a project by Loculus Design Architecture Studio, proposes a radical transformation of a 30 m² ground-floor retail space in central Athens into a contemporary residence. Organized around—and within—a wooden box placed at the heart of the interior, the design reimagines domestic space as a layered inhabitation. Although unrealized, the study prompted an emphatically “out-of-the-box” approach, challenging conventional models of compact living.
Read more here!

Box-in-a-box tiny duplex apartment in Pagkrati, Athens by AR03412 STUDIO
AR03412 STUDIO transformed an existing apartment into a vertically articulated domestic environment. The intervention generates three distinct areas: a shared reception space with a staircase, a 40 m² studio on the first floor, and a 20 m² studio on the second. The architectural approach balances flexibility with autonomy, allowing shared circulation to coexist with independent living units.
Read more here!



A colorful tiny micro-apartment renovation in Athens by Oikonomakis Siampakoulis Architects
This project renovates a 35 m² micro-apartment in Athens by Oikonomakis Siampakoulis Architects, designed for dual use as a short-stay home for its two owners and as a guest space for friends and family. Reflecting the owners’ creative backgrounds in the arts, the interior employs a bold palette of colours and materials to create a distinctive, characterful atmosphere within an otherwise typical 1980s residential building.
Read more here!


Paulina and Gustaw’s Micro-Apartment in Warsaw, Poland by Mistovia Studio
Within a listed residential complex of 1950s Soviet-era architecture in Warsaw, Poland, a diminutive 45 m² apartment rejects the modernist austerity of Less is More in favor of the exuberant pluralism of postmodern fantasy—where Less is a Bore. Radically personal and bordering on eclecticism, the new design weaves together bold and unexpected combinations of color and material, psychedelic patterns, and classical references into a continuous mosaic of domestic life. Conceived by Marcin Czopek of Mistovia Studio, the interior juxtaposes vintage furnishings and design classics—such as Bruno Rey’s iconic Rey Chair, the most widely produced Swiss chair of all time—with contemporary objects by emerging Polish studios, alongside bespoke fixed and movable furniture. The result is a richly layered interior that celebrates individuality, narrative, and spatial exuberance.
Read more here!



2022
Casa Gialla in Puerta del Sol by gon architects
A 47 m² apartment in Madrid, renovated by GON Architects, translates the philosophy of il dolce far niente into spatial form. By removing internal partitions and introducing continuous perimeter storage, the design ensures light, ventilation, and flexibility. This strategy liberates the center into a multifunctional 7 × 2.5 m room connected to a south-west terrace, where cooking, working, resting, and sleeping unfold—favoring a contemplative, unprogrammed domestic life.
Read more here!



2021
A tiny rooftop flat in Alimos by Federica Scalise
Locally known as δώμα, small rooftop flats are a defining feature of the Athenian urban landscape. Architect Federica Scalise renovated a compact 23 m² rooftop dwelling on the coast of Alimos, pursuing maximum spatial optimization through multifunctional, custom-designed furniture while carefully restoring the apartment’s original architectural features.
Read more here!

Project 11: a patchwork domestic landscape in Pangrati, Athens, by Orestis Sakellariou
Project 11 is a compact 49 m² apartment in the Pangrati district of Athens, shaped by the continuous property subdivisions that characterized Athenian modern buildings in the second half of the 20th century. Architect Orestis Sakellariou refurbished the dwelling into a fluid, playful domestic landscape, animated by a distinctive sunflower-yellow palette.
Read more here!

2020
Example #1: Tiny Flat Renovation in Vouliagmeni, Athens by Oblique
Oblique renovated a 36 m² apartment within a 1970s residential building in Vouliagmeni, Athens, proposing an archetypal approach to interior transformation. Employing a furniture-as-architecture methodology, the project redefines furniture as a spatial instrument—one that actively produces, organizes, and reinterprets domestic space.
Read more here!


Lycabettus Hill Micro-Apartment by SOUTH Architecture
SOUTH Architecture transformed a 40 m² residual basement within an Athenian polykatoikia on the northern slope of Lycabettus Hill into a sequence of pocket-sized spaces, articulated around a sculptural partition wall.
Read more here!


SAP Microapartments in Kallithea, Athens by Barespace
SAP Microapartments, by Barespace, transform a series of former office and industrial buildings into compact residential units. Commissioned to adapt properties that varied widely in shape, size, height, orientation, and context, the design team sought to establish a consistent standard of comfort and functionality across all apartments. Their solution was the development of a system of three Essential Living Units (ELUs): a kitchen unit for cooking, a bed unit for sleeping and storage, and a bathroom unit for restoration. The remainder of each apartment is conceived as an open, flexible space, capable of accommodating multiple modes of living.
Read more here!


Seroro microhouse in Seoul, South Korea by Smaller Architects
Seroro Microhouse, designed by Smaller Architects, is a compact tower dwelling in Seoul, South Korea, constructed on a 33 m² plot. Confronted with extreme spatial constraints, the house develops vertically, stacking rooms floor by floor to form a slender domestic tower in which each level accommodates a single, distinct function.
Read more here!


READ ALSO: (2020-2025) BEST OF: (Unbuilt) Architecture by Archisearch




