CoA arquitectura & Estudio Macias Peredo designed CASA CHACALA, a rest coastal family house in Chacalilla, in México.

ESTUDIO MACIAS PEREDO, Chacalilla, México, casa chacala, emparquitectosESTUDIO MACIAS PEREDO, Chacalilla, México, casa chacala, emparquitectosESTUDIO MACIAS PEREDO, Chacalilla, México, casa chacala, emparquitectosESTUDIO MACIAS PEREDO, Chacalilla, México, casa chacala, emparquitectos ESTUDIO MACIAS PEREDO, Chacalilla, México, casa chacala, emparquitectos

Casa Chacala, as well as the entire property, is surrounded by a jungle of native vegetation. 

ESTUDIO MACIAS PEREDO, Chacalilla, México, casa chacala, emparquitectos ESTUDIO MACIAS PEREDO, Chacalilla, México, casa chacala, emparquitectos ESTUDIO MACIAS PEREDO, Chacalilla, México, casa chacala, emparquitectos


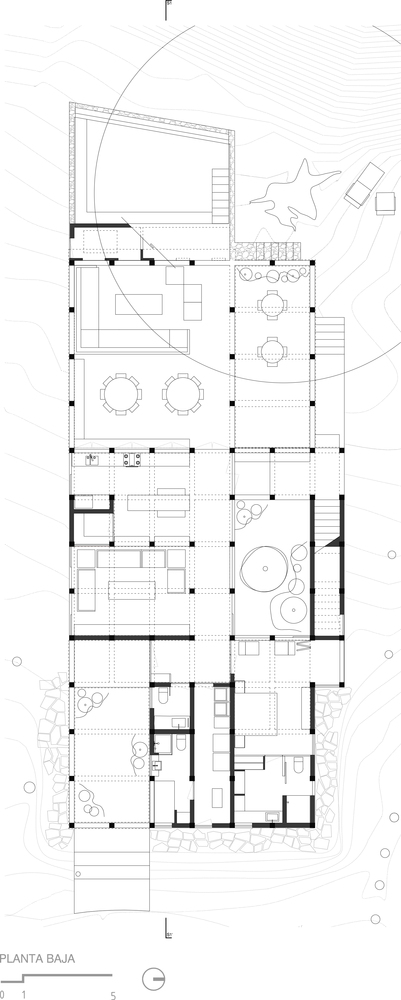
Plans


Facts & Credits
Project title   CASA CHACALA
Type  Casa de Playa
Location  Chacalilla, México
Year  2012-2014
Architecture  CoA arquitectura & ESTUDIO MACIAS PEREDO  / Salvador Macías, Magui Peredo, Francisco Gutiérrez
Team  Carlos Mendiola, Raúl Miranda, Oscar Maciel, Antonieta O’Farril
Photography  Francisco Gutierrez, Jaime Sicilia, Onnis Luque


RELATED ARTICLES