The following dissertation deals with the concept of housing and its changing status, proposing a new model of housing with the aim of changing the urban landscape. Building culture is influenced by patterns and lifestyles and produces an interaction between man and place.
In particular, the concept of housing was and is, one of the primordial problems that every people was called upon to solve, adapt and engineer in order to survive. Constantly changing societies, impose the urgent need for housing to adapt to the social and spatial developments of each period.
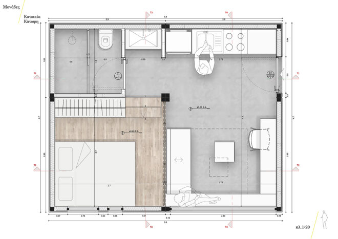
Today, the demand for an economical housing model, functionally and aesthetically sound, that will listen to the lack of space in relation to the need to create it, seems more intense than ever. So, in the fast paced cities, where the living conditions of the people living in them are constantly changing, small houses come to provide a solution.

By separating and standardizing each function that you require in a house as a unit, each user has the ability to choose and configure the space in which he will live, according to his personal character, his financial ability and the time of stay.

With the help of digital media, he has the ability to design his own home as well as to order it immediately, thus calculating the financial amount that he will be able to allocate. All these houses, which will be selected by the user, are adapted to a system of custom metal frame, which has the ability to add and remove floors and common areas, emphasizing the value of the ephemeral and ever-changing urban landscape.

Facts & Credits
Project name Jigsaw houses
Year 2020
Typology Diploma thesis project
Students Menia Kampouri, Nikos Tsioulianos
Supervisor Spiros Papadimitriou
University School of Architecture, Aristotle University of Thessaloniki
READ ALSO: Αρχιτεκτονική της επανάχρησης: εννοιολογικές συνθέσεις στο χώρο & το χρόνο | Ερευνητική εργασία από την Μαρία Φουστάνου









