Η πολυκατοικία είναι ίσως το πιο «ελληνικό» στοιχείο της εγχώριας, μεταπολεμικής, μοντέρνας αρχιτεκτονικής κληρονομιάς που έμελλε να καθορίσει, μέχρι σήμερα, την εικόνα, την αισθητική και τον χαρακτήρα των ελληνικών πόλεων με έμφαση στην Αθήνα. Άλλοτε με την εμπλοκή αρχιτεκτόνων και άλλοτε όχι, η ελληνική πολυκατοικία αποτυπώνει, πάνω στο μπετονένιο της κορμί, την εξελικτική αστικοποίηση της ελληνικής κοινωνίας και το στοίχημα μετατροπής του αγρότη σε αστού.
Αν αυτός είναι ο απτός ρεαλισμός της αντιπαροχής, ποιο είναι το όραμα; Τι φαντάζονταν οι μοντέρνοι αρχιτέκτονες για το μέλλον των πόλεων και πως αυτά τα σενάρια μπορούν να αξιοποιηθούν, δημιουργικά, και να ενσωματωθούν στη σύγχρονη AI-powered πραγματικότητα; Στα πλαίσια του Εργαστηρίου Αρχιτεκτονικού Σχεδιασμού 8 του Τμήματος Αρχιτεκτόνων Μηχανικών του Πανεπιστημίου Πατρών, ο Πάνος Δραγώνας ακολουθεί τη σκέψη του Τάκη Ζενέτου, του μεγαλύτερου οραματιστή του ελληνικού μοντερνισμού, και σηκώνει το βλέμμα ψηλά, προς τον ουρανό, στο δώμα – εκεί όπου η πόλη ελευθερώνεται από το έδαφος και αιωρείται, ανάμεσα από τις κεραίες και τα πουλιά, πάνω από τα δέντρα, τον επίγειο πολιτισμό, την αυτοκίνηση, και την ιστορία.
Θρόισμα Ησυχίας
Εργαστήριο Αρχιτεκτονικού Σχεδιασμού 8, Τμήμα Αρχιτεκτόνων Μηχανικών, Πανεπιστήμιο Πατρών.
Διδάσκοντες: Πάνος Δραγώνας, Γιάννης Καρράς (υποψήφιος διδάκτορας)
-κείμενο από τον Πάνο Δραγώνα
Τη δεκαετία του 1960 οι αρχιτέκτονες αντιμετώπιζαν με ριζοσπαστική διάθεση το μέλλον των πόλεων. Ο Yona Friedman με τη Ville Spatiale, οι Archigram με την Plug-In City, ο Constant Nieuwenhuys με τη Νέα Βαβυλώνα και ο Τάκης Χ. Ζενέτος με την Ηλεκτρονική Πολεοδομία μοιράζονταν ένα κοινό όραμα: μια πόλη που δεν θα καταλάμβανε το έδαφος αλλά θα αιωρούνταν πάνω από τις ιστορικές δομές και το φυσικό περιβάλλον.






Η έρευνα του Ζενέτου για την πόλη του μέλλοντος ξεκίνησε με την ολοκλήρωση των σπουδών του και εξελίχθηκε μέχρι το τέλος της ζωής του. Η Ηλεκτρονική Πολεοδομία προδιαγράφει ένα μέλλον στο οποίο οι άνθρωποι, αξιοποιώντας τις δυνατότητες των ηλεκτρονικών δικτύων και της αυτοματοποίησης των τηλε-ενεργειών, περιορίζουν στο ελάχιστο τις μετακινήσεις τους.

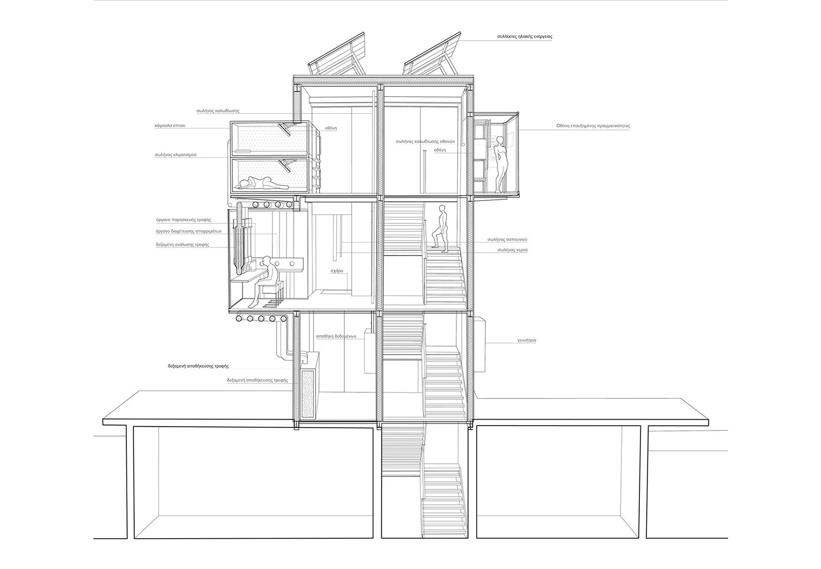
Ο Ζενέτος σχεδίασε την κατοικία του μέλλοντος ως ένα δυναμικό περιβάλλον αποτελούμενο από προκατασκευασμένες μονάδες: την κάψουλα τηλε-ενεργειών, τον θάλαμο ατομικής υγιεινής, το στοιχείο παροχής τροφής, το συγκρότημα τηλε-εκπαίδευσης, το όργανο σωματικής άσκησης και άλλες υποδομές. Στο νέο αυτό περιβάλλον, οι κάτοικοι εργάζονται, σπουδάζουν και επικοινωνούν μέσω δικτύων, χωρίς να χρειάζεται να μετακινηθούν – ένα όραμα που παρουσιάζει εντυπωσιακές ομοιότητες με τον σύγχρονο ψηφιακό τρόπο ζωής.
Το Εργαστήριο Αρχιτεκτονικού Σχεδιασμού 8ου εξαμήνου στο Τμήμα Αρχιτεκτόνων Μηχανικών του Πανεπιστημίου Πατρών διερεύνησε το όραμα του Ζενέτου υπό το πρίσμα της τρέχουσας τεχνολογικής και κοινωνικής πραγματικότητας. Οι σπουδαστές ανέπτυξαν νέες σχεδιαστικές προσεγγίσεις αντλώντας έμπνευση από την έρευνα για την πόλη και την κατοικία του μέλλοντος, όπως αυτή αποτυπώνεται στο υπό έκδοση βιβλίο των Πάνου Δραγώνα και Λυδίας Καλλιπολίτη, Θρόισμα Ησυχίας.
Αντικείμενο σχεδιασμού ήταν η μελέτη αυτόνομων μονάδων διαβίωσης που αναπτύσσονται πάνω από τον ιστό της σύγχρονης ελληνικής πόλης.
Το νέο περιβάλλον βασίζεται στην ιδέα της διαρκούς ψηφιακής διασύνδεσης, η οποία επιτρέπει στους κατοίκους να εργάζονται, να εκπαιδεύονται και να διεκπεραιώνουν τις καθημερινές τους δραστηριότητες εξ αποστάσεως, σε ένα αυτοματοποιημένο πλαίσιο.
Η πρόταση «Αποικία στα σύννεφα» των Θανοπούλου και Ξένου προσεγγίζει το δώμα των πολυκατοικιών όχι ως υπόλειμμα αλλά ως πεδίο κατοίκησης στο όριο, επιχειρώντας μια χωρική ακροβασία ανάμεσα στο κενό και το πλήρες, ανάμεσα στη σωματική υλικότητα και την άυλη εμπειρία της πόλης. Οι σφαιρικές μονάδες κατοίκησης δημιουργούν διαφορετικές βιωματικές συνθήκες όπως η αιώρηση, η βύθιση, το άλμα και η ακροβασία, προκαλώντας νέες σχέσεις του ανθρώπου με τον αστικό χώρο και τον ίδιο του τον εαυτό.






Η «Απομόνωση σε μυκήλιο» των Βακρόπουλου και Μανδύλα διερευνά τη χρήση του μυκηλίου ως δομικού υλικού. Η «μούχλα», ένα φαινόμενο που παραδοσιακά αντιμετωπίζεται ως αρνητικό στο εσωτερικό των κτιρίων, επανανοηματοδοτείται ως θετική αστική συνθήκη που επιτρέπει ένα διαφορετικό είδος οργανικής ανάπτυξης της πόλης πάνω από τον ορίζοντα των πολυκατοικιών.



Στο «parasit_y», οι Μπαριάμη και Σαλευρή δημιουργούν παρασιτικές μονάδες κατοίκησης που προσκολλώνται στις απολήξεις των κλιμακοστασίων των πολυκατοικιών. Οι μονάδες ενσωματώνουν συστήματα ενεργειακής αυτονομίας – όπως ανακύκλωση νερού, κομποστοποίηση αποβλήτων και ηλιακή ενέργεια – και συνθέτουν μια σχέση παρασίτου και ξενιστή με το υφιστάμενο οικοδομικό τετράγωνο.




Η πρόταση «Ανάμεσα στα δικτυώματα» των Ταμπάκη και Τράκα δημιουργεί ένα νέο τεχνητό έδαφος, σε απόσταση από τα δώματα, το οποίο φιλοξενεί έναν ανοιχτό χώρο διαβίωσης. Πρόκειται για μια δομή παρόμοια με camping, όπου η κατοίκηση εκτυλίσσεται μέσα σε φούσκες και πάνω σε μια εύκαμπτη επιφάνεια – ένα «φουσκωτό» δάπεδο το οποίο αποτελεί εξέλιξη αντίστοιχων ερευνών του Ζενέτου. Τεχνητοί βραχίονες, κατευθυνόμενοι από συστήματα τεχνητής νοημοσύνης, αναλαμβάνουν την εξυπηρέτηση των καθημερινών αναγκών των κατοίκων.






Τέλος, στη πρόταση «Data Habitat» οι Δημακοπούλου και Χαμμούτα εξετάζουν την έννοια της κατοίκησης μέσα σε ένα πλαίσιο διαρκούς συλλογής και επεξεργασίας βιομετρικών δεδομένων. Η μονάδα κατοίκησης διαμορφώνει έναν μικρόκοσμο που σαρώνει, φιλοξενεί και μεσολαβεί στη σχέση του σώματος με την πόλη. Ο κάτοικος του μέλλοντος ζει στο μεταίχμιο: σε έναν πύργο δεδομένων που ελέγχει το σώμα του και ταυτόχρονα επιτρέπει την εποπτεία του περιβάλλοντος αστικού χώρου.




READ ALSO: Microtopia: assemblages of coexistence and exploration | Diploma Thesis by Maria Aikaterini Freskaki