Σχεδιασμένο από την Atmos Studios για μία Αγγλίδα ηθοποιό και μουσικό, το ρετιρέ Woven Nest (`Υφασμένη Φωλιά`) στο Λονδίνο είναι ένα κυματιστό έργο τέχνης με καμπύλες, άφθονο φως, και αναδιπλούμενα εντοιχισμένα έπιπλα σε κάθε διαθέσιμη επιφάνεια. Το έργο αντανακλά τη φιλοσοφία της Ιαπωνικής αρχιτεκτονικής, με τελικό αποτέλεσμα μια αναπάντεχη αίσθηση ευρυχωρίας παρά τους μικρούς χώρους, με το κάθε δωμάτιο να προσφέρει ποικίλες απόψεις. Η στέγη σε σχήμα V πεταλούδας επίσης έχει μεγάλο ενδιαφέρον. Το κέντρο της κλίνει σε έναν κρυστάλλινο φεγγίτη, ο οποίος πλαισιώνεται προς τα κάτω με διαδοχικά τμήματα δαπέδου που προεξέχουν.
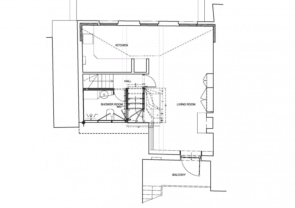
Archisearch - ΚάτοψηΚΑΤΟΨΗ
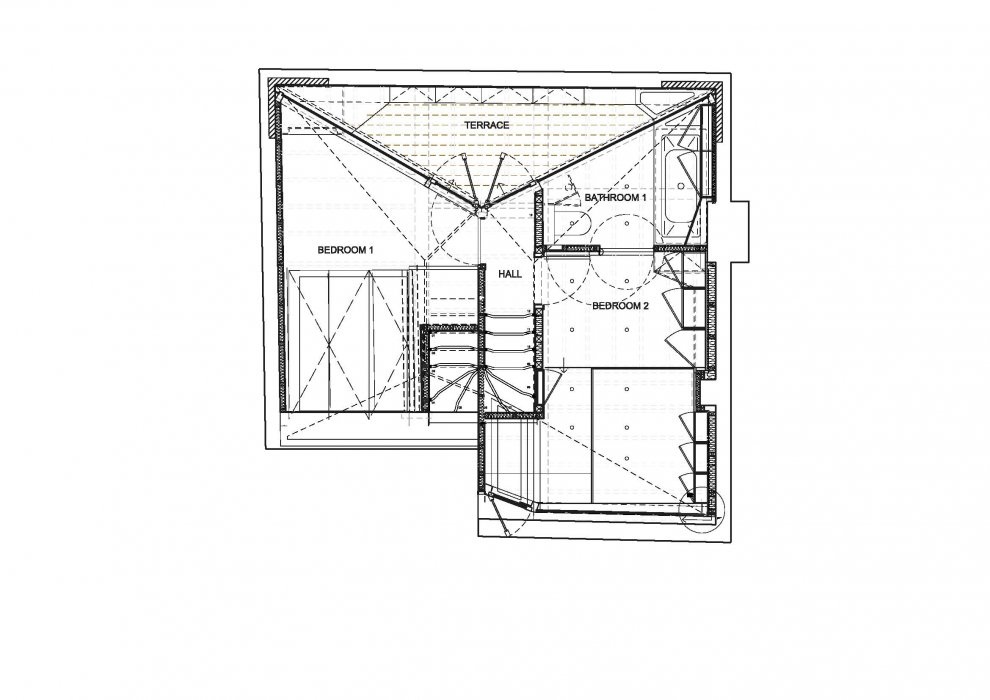
Archisearch - ΚάτοψηΚΑΤΟΨΗ
Archisearch - Woven NestWOVEN NEST
Archisearch - Woven NestWOVEN NEST
Archisearch - WOVEN NEST / Atmos StudiosWOVEN NEST / ATMOS STUDIOS
Archisearch - Woven Nest / Atmos StudiosWOVEN NEST / ATMOS STUDIOS
Archisearch - Woven Nest / Atmos StudiosWOVEN NEST / ATMOS STUDIOS
Archisearch - Woven Nest / Atmos StudiosWOVEN NEST / ATMOS STUDIOS
Archisearch - Woven Nest / Atmos StudiosWOVEN NEST / ATMOS STUDIOS
Archisearch - Woven Nest / Atmos StudiosWOVEN NEST / ATMOS STUDIOS

RELATED ARTICLES