MAKRIDIS ASSOCIATES and CASATEC SA completed a study about an existing residential apartment’s functional, aesthetic and energy upgrade.
– text by the authors
The residence is located on the last floor of a typical 70s multi-storey residential building. Constructed in the 1970s, the city-center residence presented severe wear and tear and had to be radically renovated.
The owners’ intention was to radically alter the space both aesthetically and functionally and their main requirement was to create a modern environment that could cover their increasing needs.
The proposal was shaped around the following guidelines:
- Optimization of the layout’s functionality
- Flexibility and adaptability of the interiors
- Creation of spaces with high aesthetic quality
- Highlighting of the residence’s views over the city
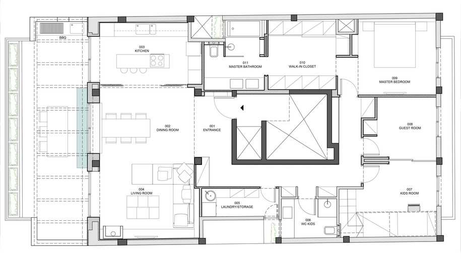
In terms of functional arrangement, the proposal introduced a radical alteration of the flat’s circulation, placing it around the volume of the building’s vertical communication core. The volume was clad with adequately processed walnut timber, creating an interesting path through the residence. Perimetrical illumination on the walnut-clad surface was applied to enhance its texture and natural characteristics.
Regarding the apartment’s overall design, one of the main challenges was the placement and organization of the kitchen, which was eventually conceived as an extension of the living room and dining area. This resulted in the creation of a uniform space that enjoys natural light all day long.
Dominant element of the living room is the custom furniture that was designed to accommodate the owners’ books and collectibles as well as technological equipment.

Another important challenge of the overall design process was the master bedroom area, which was conceived as a large space incorporating the master bathroom and dressing room. The wardrobe area was placed between the bedroom and bathroom spaces, creating a functional in-between space. Large surfaces of dark tinted glass were selected to enhance the space’s sense of depth.
By combining timber furniture and dark accessories with black, custom-made heating pipes and forged cement flooring, the design team managed to compose a unique space with particularly fine qualities.
In the bathroom, the window opening’s widening along with the placement of plants in the light shaft provided the space with an improved sense of visual comfort.
In the kids’ bedroom, a large sliding door connects the space with the adjacent auxiliary room, uniting them and creating a large, open playroom.
Earth tones and natural material finishes are dominant all around the residence.

The renovation works also included the energy upgrade of the apartment. All external wall surfaces were clad with strong insulating materials and adequate coatings. High-efficiency window frames and panes were selected for all the residence’s openings, many of which were also complimented with corresponding shading elements.
Facts & Credits
Project title The Raw Apartment
Type Residence renovation
Client Private
Architectural & Interior Design MAKRIDIS ASSOCIATES
Construction CASATEC SA
Photography © Nikos Vavdinoudis – Christos Dimitriou / studiovd.gr
Location Ag.Sofia, Thessaloniki city center
Date 2017 – Completion
Total Area 190m2
–
Η μελέτη αφορά στην ενεργειακή, λειτουργική και αισθητική αναβάθμιση διαμερίσματος στην περιοχή Αγία Σοφίας, στη Θεσσαλονίκη από το αρχιτεκτονικό γραφείο MAKRIDIS ASSOCIATES. Οι ιδιοκτήτες θέλοντας να αλλάξουν ριζικά την αισθητική αλλά και την λειτουργία των χώρων, ζήτησαν από τους μελετητές να δημιουργήσουν ένα σύγχρονο, μοντέρνο περιβάλλον που θα μπορεί να καλύψει τις νέες τους ανάγκες.
-κείμενο των δημιουργών
Το διαμέρισμα βρίσκεται σε τυπική πολυκατοικία της δεκαετίας του 1970 και αναπτύσσεται στον τελευταίο όροφο. Το διαμέρισμα, λόγω παλαιότητας, παρουσίαζε έντονες φθορές, με αποτέλεσμα να είναι αναγκαία η ριζική ανακαίνισή του.
Οι σημαντικότεροι στόχοι του σχεδιασμού ήταν η εξασφάλιση της βέλτιστης λειτουργικότητας των χώρων καθώς και η ευελιξία και προσαρμοστικότητα εσωτερικών χώρων.

Η ξύλινη επιφάνεια παρέλαβε όλες τις εσοχές της παλιάς κατασκευής με αποτέλεσμα να δημιουργηθούν χώροι αποθήκευσης. Η ξύλινη επιφάνεια καρυδιάς φωτίστηκε περιμετρικά ώστε να αναδειχθεί το ανάγλυφο και η φυσικότητά της.
Βασική επιδίωξη ήταν η δημιουργία χώρων με υψηλή αισθητική ποιότητα και η ανάδειξη της θέας του διαμερίσματος.
Σχεδιαστικά μεγάλη πρόκληση αποτέλεσε η επιλογή χωροθέτησης και οργάνωσης της κουζίνας.
Επιλέχθηκε να χωροθετηθεί κατ’επέκταση του καθιστικού και της τραπεζαρίας δημιουργώντας έναν ενιαίο χώρο με άπλετο φυσικό φωτισμό για όλη την ημέρα.
Στο χώρο του καθιστικού μία αναδιπλούμενη επιβλητική μεταλλική μαύρη επιφάνεια αναπτύσσεται και δημιουργεί τη βιβλιοθήκη, το τζάκι και ράφια για αντικείμενα. Η οροφή του ενιαίου μεγάλου χώρου επενδύθηκε με κατάλληλα επεξεργασμένη φυσική ξυλεία δημιουργώντας έναν ζεστό και άνετο χώρο. Σε όλα τα δάπεδα των κοινόχρηστων χώρων καθώς και των μπαλκονιών εφαρμόστηκε πατητή τσιμεντοκονία δίνοντας την αίσθηση ενός συνεχόμενου χώρου όπου χάνονται τα όρια του εσωτερικού με τον εξωτερικό χώρο.

Για το master bathroom ο συνδυασμός της πατητής τσιμεντοκονίας, των ξύλινων επίπλων, των μαύρων custom-made σωλήνων θέρμανσης και των μαύρων αξεσουάρ, δημιουργεί έναν ιδιαίτερο και μοναδικό χώρο. Παράλληλα η διεύρυνση του παραθύρου και η τοποθέτηση φυτών στον φωταγωγό δίνει μία διαφορετική αίσθηση στο λουτρό.

Σε όλους τους χώρους κυριαρχούν τα γήινα χρώματα και τα φυσικά υλικά (καρυδιά).

Οι εργασίες ανακαίνισης περιλάμβαναν και την ενεργειακή αναβάθμιση του διαμερίσματος. Οι εξωτερικές τοιχοποιίες επενδύθηκαν με ισχυρά μονωτικά υλικά και ειδικά επιχρίσματα. Σε όλα τα ανοίγματα τοποθετήθηκαν νέα κουφώματα θερμοδιακοπής με ενεργειακούς υαλοπίνακες, ενώ τέλος, τοποθετήθηκαν και κατάλληλα συστήματα σκίασης.
Σχέδια / Plan
Στοιχεία έργου
Τίτλος έργου The Raw Apartment
Τύπος ανακαίνιση διώροφου διαμερίσματος
Εργοδότης Ιδιώτης
Αρχιτεκτονική μελέτη- διακόσμηση MAKRIDIS ASSOCIATES
Κατασκευή CASATEC SA
Φωτογραφίες © Nikos Vavdinoudis – Christos Dimitriou
Τοποθεσία Aγία Σοφία, Θεσσαλονίκη
Έτος 2017 – ολοκλήρωση
Έκταση 190m2
Προμηθευτές
Κατασκευή CASATEC SA / Χριστιανόπουλος Λ.
Μονωτικά υλικά, χρώματα, κόλλες, ρητίνες ISOMAT
Γυψοσανίδες KNAUF, Βασιλούδης NOVA VITARE
Ψευδοροφές KNAUF
Δάπεδα MATERIA – ELECTA
Πλακίδια MATERIA
Κουφώματα ALUMIL, INTERNO
Ξύλινες επενδύσεις Αργυτόπουλος
Προμηθευτής ξύλινων επενδύσεων Rountos Wooden Floors
Αλουμινοκατασκευές ALUMIL, ALMEN
Συστήματα κλιματισμού/ αερισμού DAIKIN, IDEAL, KLIMA
Είδη Υγιεινής MATERIA
Ηλεκτρολογικό υλικό & πίνακες ΚΑΥΚΑS
Είδη φωτισμού / Συστήματα / Διακόπτες LUMINART






Σχεδιαστικά μεγάλη πρόκληση αποτέλεσε η επιλογή χωροθέτησης και οργάνωσης της κουζίνας. 



