The first two forerunners of the world’s largest network of Canadian bilingual schools in the Czech Republic: Maple Bear Kindergarten Olomouc and Maple Bear Elementary School Brno, designed by SOA architekti, thematically expresse the very link between the global brand and the uniqueness of the place.
The interior design was based on Maple Bear Schools’ unique approach to student-centered learning in a stimulating environment that instills a love of lifelong learning.
Thanks to the support of the Czech representative office, we created an original design to express the spirit of these schools and, at the same time, to meet the qualitative requirements of the global brand.
The interior design was based on Maple Bear Schools’ unique approach to student-centered learning in a stimulating environment that instills a love of lifelong learning.

Kindergarten Olomouc
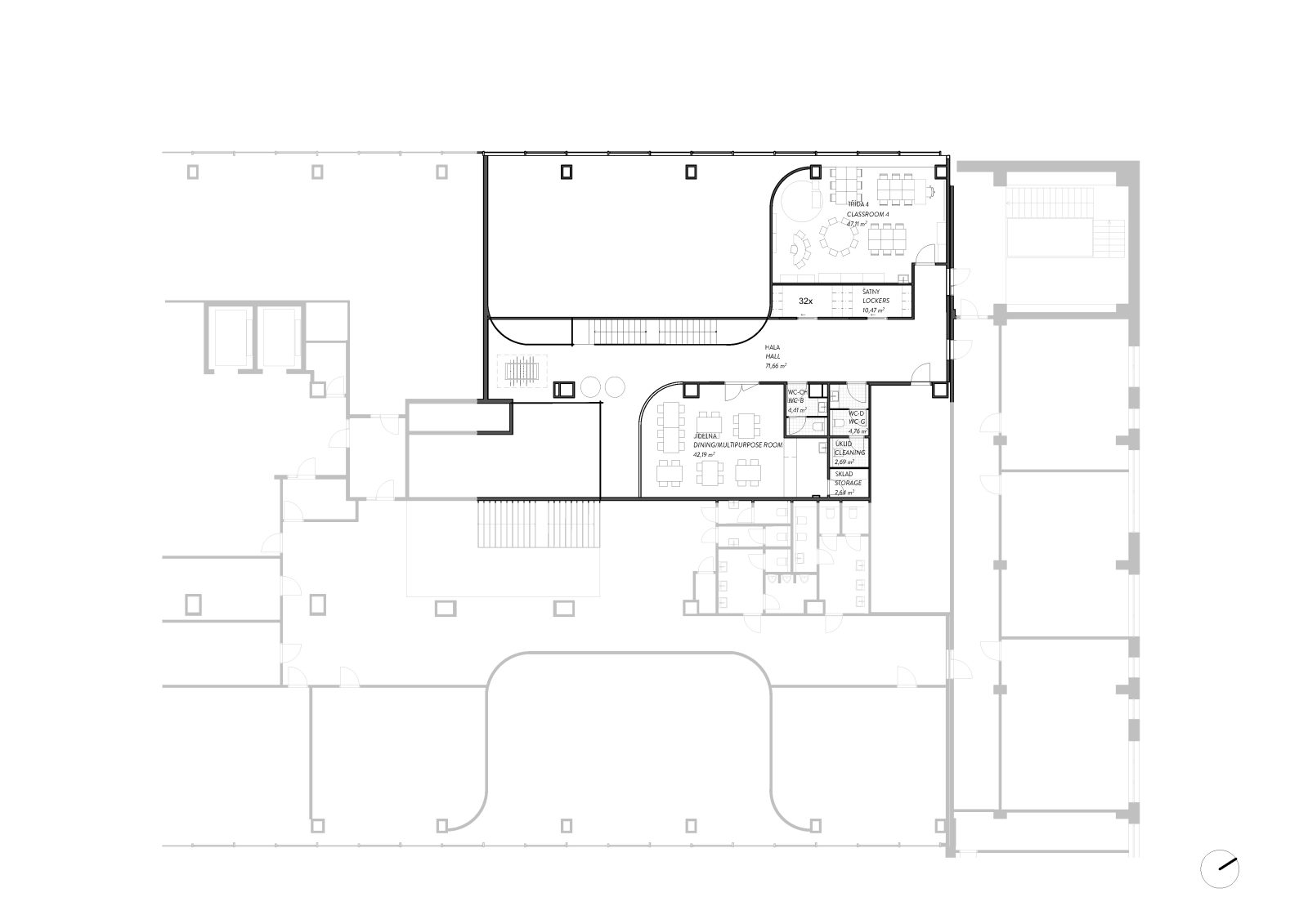
The layout of the kindergarten places the classrooms to the illuminated perimeter of the multifunctional building of the Olomouc BEA Centre so that a central space—the hall—is situated in the middle. This solution virtually eliminated the institute of a single-purpose corridor in favor of a multifunctional space.
The central hall provides space for children and parents. The lobby, an indoor playground, a small amphitheater, and a relaxed seating area with a library and toys were placed in the hall. The cylindrical volume of the meeting room forms a visual landmark of the space. The different classrooms are thematically separated, which is conveyed through the design of the furniture, the color scheme, and the graphics on the walls.

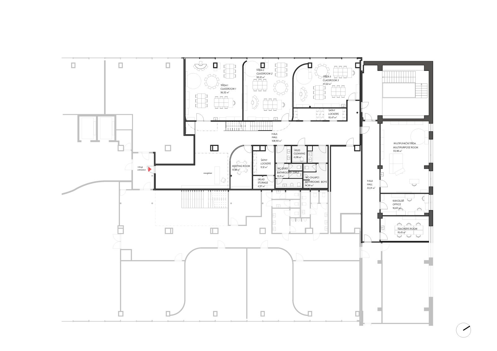
Elementary School Brno
The Brno primary school is a fit-out of the ZET office building in the Nová Zbrojovka development area. A reference to the original industrial character of the building is the central entrance hall elevated over two floors with exposed steel beams.
It includes a lobby, reception, and a multipurpose library. Aside from being a library, it provides space for displaying school merchandise and uniforms, and has storage areas for the reception area, or a play and reading corner for children.
Both schools feature original graphics designed for these specific spaces.
This unifies the design of the schools and thematically expresses the very link between the global brand and the uniqueness of the place.
SOA architekti
We are three partners and one team of architects. We enjoy our work. Creation is a dialogue. Dialogue with the client and within the team.

It is not always calm or constructive, but we know that everyone brings a new quality to the project. We like economical and clever customized solutions. We push our own boundaries with every project and are delighted when the client experiences the same with us. For us, the client is another member of the team.

We consider a successfully completed project to be one from which, in addition to quality implementation, a friendly relationship emerges.

We deal with the design of interiors, buildings and smaller urban units. We like to experiment. We compete. For us, work begins with a careful drafting of a brief. We offer the preparation of all stages of project documentation from study to author’s supervision during implementation, including securing the necessary permits. We cooperate with a permanent circle of specialists.
Awards
Grand Prix Architects National Award for Architecture 2024 , Landscape Architecture and Garden Design
Grand Prix Architects National Award for Architecture 2020 , Green Building
Public Interior of the Year 2020
Building of the Year 2020 Award of the Ministry of Regional Development of the Czech Republic
Building of the Year of the Central Bohemian Region 2020
Facts & Credits
Project title Maple Bear Schools
Typology Educational, Interior Design
Location Brno, Olomouc | Czech Republic
Architecture SOA architekti
Author Ondřej Laciga, Petra Valdman
Project year 2023
Completion year 2024
Usable floor area 650 m² Brno, 550 m² Olomouc
Client Maple Bear Czechia
Collaborators and suppliers Graphic design: Graphite Studio [Mona Bublová, Tomáš Buble, Klára Maršíčková]
Photography Studio Flusser
Text provided by the architects




















