As the beginning of the year, Mezzo Atelier returned to The Netherlands, the country where both partners have started their careers at young age, to create Locanda’s interiors, an Italian Bistro at Jordaan’s neighbourhood in Amsterdam.


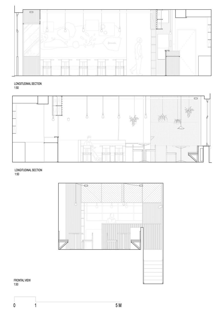
The architects have created and self built most of Locanda ’s furniture and architectonical elements at their studio in northern Italy and then assembled it on site.


Traditionally, Locanda was the next door restaurant where travellers were also welcome to spend the night. It translated into simple and honest food, always made with the best ingredients, respect for tradition and a cozy and familiar like atmosphere.


The architects of Mezzo Atelier say: “Our re-visitation of Locanda in Jordaan’s neighbourhood, turned out to be that place where people can feel at home in a relaxed environment, tasting the best Italian delicacies and valuing the excellency of its hand-made culture, from slow-food, passing trough crafted furniture and gestural graphic design.


Despite being a small area the architects wanted to create different zones in order to achieve greater flexibility of uses, from the classic dining room to a casual bar at night.”


Facts & Credits:
Project: Locanda
Typology: Bistro, Bar, Dining
Client: Locanda
Year: 2016 / 2017
Location: Jordaan, Amsterdam, The Netherlands
Surface: 50m2
Team: Joana de Oliveira, Giacomo Mezzadri
Collaborators: Ilaria Morcia
Visual Design and Wall Painting: No Rocket
Photography: Filippo Poli





