Filmmaker Wes Anderson’s distinctive visual style provided the inspiration for The Budapest Café in Chengdu, China. Biasol‘s design draws on Anderson’s meticulous, memorable and magical worlds to create an inviting destination with whimsical character and international appeal.

The client specifically engaged an Australian design practice to create an international hospitality experience, and requested a space that would appeal to social media-savvy females who enjoy café culture. The result demonstrates Biasol’s international capabilities fused with our local design style.
“We began by understanding Anderson’s style: his symmetrical, precise and quirky set designs; vivid and nostalgic colour palettes; and the sentiment that infuses his films. He tends towards one-point perspectives and peering down from above; gives attention to the edges of a set as much as the middle; and frames stories with proscenium arches.”

Biasol’ s modern, minimalist and refreshing interpretation is defined by design, materiality and brand. The building façade projects a sense of grandeur with an arch framing the entrance and welcoming patrons to The Budapest Café.
Once inside, customers are invited to engage with the physical design of the café, much like a stage set for patrons to play out their own story.

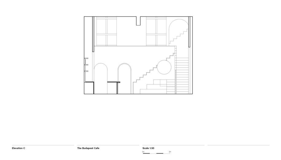
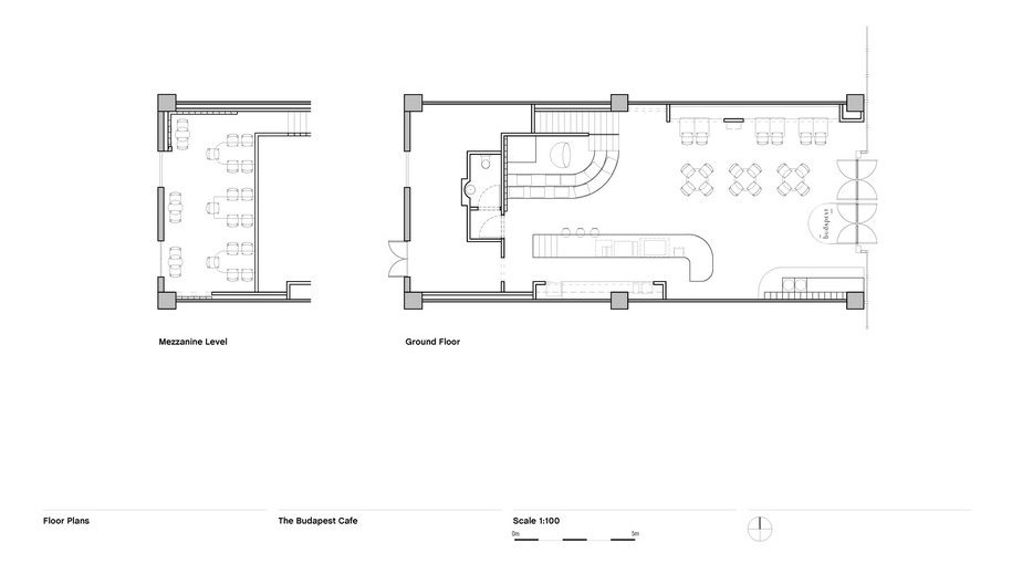
Layers, elevations and design features encourage customers to explore the space. A mezzanine level provides a view from above; symmetrical arches frame recessed seating and shelving; and stairs and steps lead upstairs, lead nowhere, and are integrated into shelving, fireplaces and the long marble bar.

The Budapest Café is designed to feel feminine, light and fun, despite its loftiness and exposed structure. A pink ball pool, neon signage and original Eero Aarnio Bubble chair inspire playfulness, and the bathrooms surprise with speckled pink terrazzo to complement and contrast with the nostalgic-green hues of the café.

The contrasting hard and soft colours and design details reflect the personalities of Anderson’s characters in The Grand Budapest Hotel, enhanced by branding integrated into the café through signage, menus and printed collateral.
Biasol’s modern, minimalist and refreshing interpretation is defined by design, materiality and brand.



Inspired by Wes Anderson’s distinctive visual style and Melbourne’s café culture, Biasol’ s fresh and modern interpretation is defined by design, materiality and brand.
Concept, colours and details continue through the branding, which is integrated into the design of the café to contribute to the imaginative and evocative space.
Plans


Facts & Credits
Project title: The Budapest Café
Location: Chengdu, China
Completion (Month/Year): October 2017
Architecture: Biasol
Area (sqm): 178sqm
Category: Hospitality – Cafe
Photography: James Morgan
Materials & Finishes
Signorino – Terrazzo
Artedomus – Marble
Furniture
Meizai – Hang Tall Stools in White
Eero Aarnio Originals Bubble Chair
Muuto Nerd Dining Chairs
Do you love all projects related to Wes Anderson as we do? Here’ s a cafe in Milano designed by Wes Anderson himself!
READ ALSO: Opening House is inspired by Star Wars and Rubik's cube | Kipseli Architects













