To γραφείο Minas Kosmidis Architects απέσπασε βραβείο στην κατηγορία “Κατοικία” στα GRAIL Awards 2025. Η αρχιτεκτονική ομάδα κλήθηκε να αναλάβει την αναδιαμόρφωση μιας παλιάς κατοικίας με κεραμοσκεπή στα Λιμενάρια της Θάσου. Το έργο αφορά μια κατοικία 150 τ.μ., η οποία καλύπτει τις ανάγκες μιας τριμελούς οικογένειας, συνδυάζοντας λειτουργικότητα και αισθητική αρμονία.
Στο υπάρχον κέλυφος της κατοικίας, μια αυθεντική πέτρινη κατασκευή που διατηρήθηκε αναλλοίωτη, προστέθηκε μεταλλικός σκελετός ώστε να υποστηριχθεί το υπάρχον κτίσμα και να δημιουργηθεί το δεύτερο επίπεδο.
Αυτή η πρόσμιξη παραδοσιακών και σύγχρονων δομικών στοιχείων αποδίδει ισορροπία μεταξύ του παλιού και του νέου, με σεβασμό στην αρχιτεκτονική κληρονομιά του τόπου και ταυτόχρονα αποτελεί έμπνευση για την αισθητική προσέγγιση του εσωτερικού.
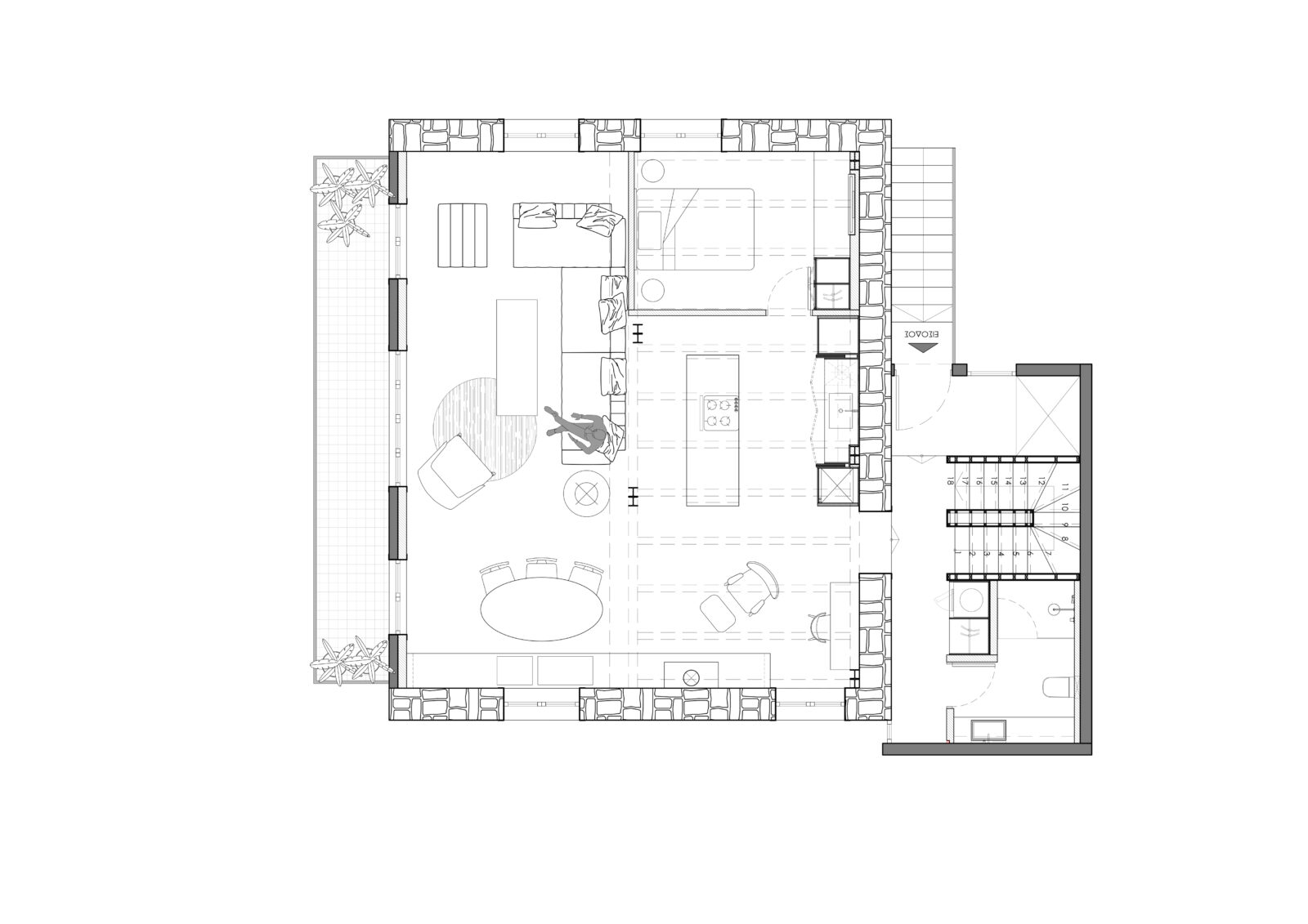
Η κάτοψη του πρώτου επιπέδου οργανώνεται σε ελεύθερη διάταξη, όπου οι χώροι επικοινωνούν άμεσα μεταξύ τους χωρίς διαχωριστικά τοιχώματα, επιτρέποντας την απρόσκοπτη ροή του φωτός και της κίνησης.
Ο καθιστικός χώρος προσφέρει ανεμπόδιστη θέα προς τη θάλασσα, η οποία αποτελεί κεντρικό στοιχείο της αισθητικής εμπειρίας του σπιτιού. Το κλιμακοστάσιο, οι αποθηκευτικοί χώροι και άλλες βοηθητικές λειτουργίες τοποθετούνται διακριτικά στο πίσω μέρος, ώστε να μην επηρεάζουν τη λιτότητα του βασικού χώρου. Χαρακτηριστικό στοιχείο της κατοικίας αποτελεί ο σχεδιασμός της κουζίνας. Αποσκοπώντας στην διακριτική ενσωμάτωσή της στον χώρο, χρησιμοποιούνται αναδιπλώμενες πόρτες οι οποίες επιτρέπουν την πλήρη απόκρυψη της, μετατρέποντάς την σε ένα ξύλινο box που λειτουργεί ως αισθητικό στοιχείο, ενισχύοντας τη λιτή αισθητική του χώρου.
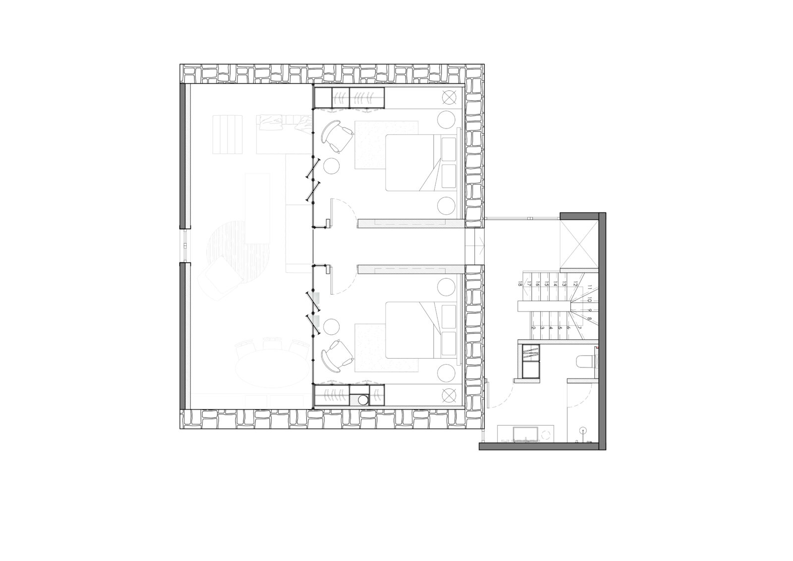
Στον πάνω όροφο βρίσκονται τα υπνοδωμάτια, τα οποία είναι ελαφρώς απομονωμένα για περισσότερη ιδιωτικότητα, διατηρώντας όμως μια αίσθηση σύνδεσης με το περιβάλλον, χάρη στα γυάλινα διαχωριστικά που επιτρέπουν την οπτική επικοινωνία με το εξωτερικό τοπίο.
Το φυσικό φως διαχέεται μέσα από αυτά, προσδίδοντας μια αίσθηση ευρυχωρίας και διαπερατότητας στα δωμάτια.
Αυτή η επιλογή δίνει τη δυνατότητα στους κατοίκους να απολαμβάνουν την ηρεμία των προσωπικών τους χώρων χωρίς να χάνουν την αίσθηση της σύνδεσης με την υπόλοιπη κατοικία.
Η παλέτα των υλικών βασίζεται σε φυσικά στοιχεία όπως η πέτρα, το ξύλο και οι γήινοι τόνοι, αποπνέοντας μια ζεστή και γαλήνια ατμόσφαιρα. Αυτή η επιλογή όχι μόνο ενισχύει τη σύνδεση του εσωτερικού με το φυσικό περιβάλλον του νησιού, αλλά και δημιουργεί ένα καταφύγιο που αποπνέει ηρεμία και χαλάρωση, σε πλήρη αρμονία με το τοπίο και το κλίμα της περιοχής.
Στοιχεία έργου
Τίτλος έργου Summer Loft in Thasos
Τυπολογία Κατοικία
Τοποθεσία Θάσος
Αρχιτεκτονική μελέτη Minas Kosmidis Architects
Εσωτερικός Σχεδιασμός Minas Kosmidis Architects
Αρχιτέκτων του έργου Χρήστος Καλίγκος
Σχεδιαστική ομάδα Αντιγόνη Σουλιτσιώτη
Έτος Mάιος 2024
Έκταση 150 m2
Μελέτη φωτισμού Minas Kosmidis Architects
Φωτογραφία Kim Powell
Kείμενο από τους δημιουργούς
The architectural firm Minas Kosmidis Architects was called upon to design the interior of a summer house in Thasos. It is a 150 square meter house that meets the needs of a family of three.
In the existing shell, a stone structure which was preserved, a metal structure was added to support the second level of the house.
The layout of the first level is organized in an open plan, with the staircase and secondary functions positioned at the back, leaving an unobstructed view of the sea from the living area. The kitchen is designed with folding doors, allowing it to be completely hidden as a wooden box.
On the second level, the bedrooms are found, slightly more isolated, but with visual escape provided by the glass partition.
Stone, wooden surfaces, and earthy tones summarize the material palette, aiming to integrate the design with the island’s natural environment and enhance the serene aura of the surrounding atmosphere.


Facts & Credits
Project title Summer Loft in Thasos
Typology Residential, Interior Design
Location Thasos
Architecture Minas Kosmidis Architects
Interior Design Minas Kosmidis Architects
Project Architect Christos Kaligos
Design Team Antigone Soulitsioti
Lighting Design Minas Kosmidis Architects
Year May 2024
Area 150 m2
Photography Kim Powell
Text provided by the architects
READ ALSO: Astral weeks - Μετατροπή βιοτεχνικού χώρου σε διαμέρισμα/χώρο εκθέσεων | by Oblique

























