‘Stories of contemporary domesticity or HOMEland’, a series curated by Archt., explores different interpretations of the notion of home through an open dialogue with contemporary architectural approaches to housing.
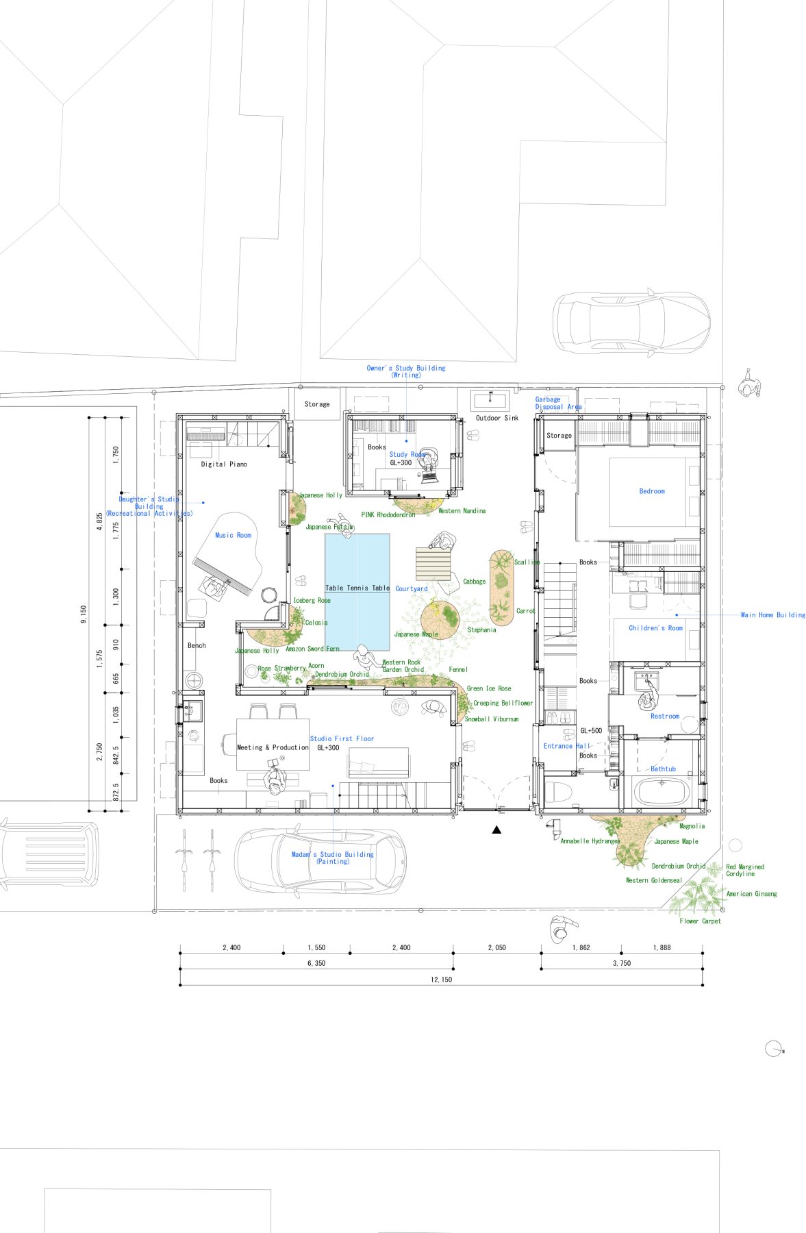
The sixteenth episode traces how Takeshi Hosaka Architects shape a Japanese house into a constellation of creative worlds for a family of three artists. Composed of four interconnected volumes, each crowned with a distinct roof, the house negotiates autonomy and togetherness around a central courtyard. Smaller gardens, elevated terraces, secret nooks, and narrow paths weave a village-like domestic landscape—an environment that invites play, curiosity, and quiet wonder.

Kaku-Kaku Kanadel—literally meaning to write (kaku, 書く), to draw (kaku, 描く), and to play (kanadel, 奏でる)—emerges as a poetic ecosystem with its own logic, emotional intelligence, and interrelated rhythms. Here, home is as much a shelter for the body as it is a refuge for the soul and daily life unfolds creatively in the gentle interplay between cooking and sleeping, writing and drawing, playing the piano, talking while sharing snacks, reading old favourites and new, exciting books.

In Japanese culture, home is less about fixed rooms and more about a flexible, atmospheric system shaped by light, seasonality, and ritual.

Starting from there, Kaku₋Kaku Kanadel unfolds in the urban landscape of Tokyo as an intimate ecosystem tailored for an everyday life that fosters creativity, self-expression, and playfulness. Takeshi Hosaka’s architectural narrative springs from a family that has learned to live autonomously in order to share life together, forming a permeable home that allows them to exist—and evolve—like this. A father who is also a scriptwriter; a mother who is also an illustrator; and their daughter Haru, an emerging pianist and multidisciplinary talent, inhabit Kaku-Kaku Kanadel through a deliberate dispersal of dwelling into distinct yet interconnected volumes.

Here, individuality is linked to collectivity through constant movement, perception, and proximity.

Three independent wings—each dedicated to an individual creative practice—are arranged alongside a shared living space, forming a constellation of four distinct volumes around a central courtyard. Rather than consolidating the family’s everyday life into a unified interior, Hosaka constructs what he describes as a “small village” of domestic life, where separation and encounter coexist through gardens, terraces, and narrow passageways that blur the threshold between inside and outside.
Carefully choreographing individuality and togetherness, architecture allows its inhabitants to retreat into their own worlds while remaining visually and physically connected.

Circulation routes—particularly the second-floor terrace—encourage chance encounters, informal exchanges, and shared rituals.

Movement through the house becomes an experiential journey: from one threshold to another, one might sense a drawing taking shape on a terrace, a poem unfolding in a secluded room, or a piano melody drifting across the garden.

The project’s architectural language is further reinforced through the articulation of its roofs: each volume is crowned with a distinct form, expressing the character of its occupant.

Together, these varied rooflines compose a cohesive yet pluralistic silhouette, reinforcing the idea of a “Little Village” embedded within a single domestic setting.
The result is not a static object but a lived landscape of transitions, where architecture becomes legible as an embodied, everyday practice that sustains and reinforces creative production—expanding the question from how one inhabits space to where, and through which rhythms, creation unfolds each day. Space is not given in advance but unfolds through bodily movement, sensory perception, and daily habits.

The courtyard operates as an existential centre—a field of relations—where visual and auditory exchanges between the inhabitants continuously reconfigure spatial meaning.

As Norberg-Schulz (1980) argues, dwelling is fundamentally about the “concretization of existence,” where place acquires identity through lived experience rather than abstract form. In Kaku-Kaku Kanadel, this concreteness is intensified by the articulation of multiple temporal and sensory rhythms. Writing, drawing, and music are not merely activities housed within rooms; they become atmospheric conditions that permeate the architecture.

The house listens as much as it shelters: sounds travel across courtyards, glances traverse gardens, and presence is constantly negotiated through partial visibility and acoustic continuity.

In this sense, the architecture aligns with Pallasmaa’s (2005) understanding of phenomenological space as multisensory and embodied, where architecture is experienced through “hapticity, sound, and peripheral vision” rather than visual dominance alone. The permeability of the house therefore operates on both spatial and existential levels. Boundaries are softened not only through physical openings but through the lived interpenetration of solitude and togetherness.

Each family member inhabits a distinct spatial world, yet these worlds remain continuously accessible through shared thresholds and impromptu meetings. The home thus becomes a field of oscillation between autonomy and communion, echoing Heidegger’s notion of dwelling as being-in-the-world, where existence is always already relational and situated (Heidegger, 1971).

Kaku-Kaku Kanadel transcends conventional notions of domesticity, becoming instead a deeply personal landscape shaped by the rhythms of creative life: a constellation of partial enclosures, sensory passages, and lived intervals in which architecture does not impose order but reveals the fragile, evolving structure of everyday coexistence.

Through its fragmentation, connectivity, and expressive form, the project redefines the home as a spatial embodiment of coexistence—between autonomy and collectivity, routine and imagination—proposing a renewed paradigm of dwelling as an act of creative emancipation.

Drawings




Facts & Credits
Project title Kaku-Kaku Kanadel
Typology Stories of Contemporary Domesticity, House
Episode 16th
Location Tokyo, Japan
Site area 160.74 m2
Built area 137.24 m2
Architecture Takeshi Hosaka | Takeshi Hosaka Architects
Structural Engineering Kenji Nawa | Nawakenji-M
Photography MakotoYamamori