PROPOSAL FOR LIGHTHOUSE RESTORATION & NEW CAFÉ IN LESBOS, GREECE / TRICHONAS ARCHITECTURE

Text by the architects 

The location is known as Fanari and is in Mytilene, capital town of the island of Lesbos. The name Fanari, is derived from the Greek word `fanos` which means `lamp` and is directly connected with the Lighthouse – for what is a lighthouse if not a huge lamp – that can still be found on the northeast part of the port. In the past, this lighthouse together with its counterpart on the other end of the waterfront marked the entrance to the town`s port and constituted landmarks for the town`s citizens.

Today, the lighthouse and its position have lost their significance as a landmark. The core building of the lighthouse is obscured by the low quality structures of a canteen that has been attached to its side and take up most of the available space. These structures also don’t stand up to the standards of a contemporary canteen and relaxation area.

We suggest the redesign of the existing canteen and the restoration of the lighthouse building. With the aforementioned operations the expectations are: The open spaces area will be cleared up, the utilization of each space will become more defined, the flow of people will become much easier and finally, the lighthouse will be highlighted and once again become a point of attention as it will now be visible from all directions. At the same time, we propose the upgrade of all the open spaces across the waterfront with a unified design that includes pavements, lighting, resting points (benches) etc.

In conclusion, our suggestion aims towards an overall upgrade and highlighting of the area, taking advantage of its prime location and creating an attractive open space that will appeal to a wide audience living in or visiting the town of Mytilene. 

 
Facts & Credits:
Project: Lighthouse Restoration and new Café
Location: Right waterfront of port of Mytilene, Lesbos Island, Greece
Project year: 2016
Firm: Trichonas Architecture
Design Team: Alexis Trichonas, Taulant Tozaj
Status: Concept (Planned for construction)Size: 100 m2 
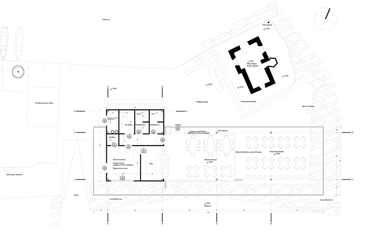
Archisearch - Floor planFLOOR PLAN
Archisearch - MaterialsMATERIALS
Archisearch - Construction detailsCONSTRUCTION DETAILS
Archisearch - Aerial view of the proposalAERIAL VIEW OF THE PROPOSAL
Archisearch - View from the cafeVIEW FROM THE CAFE
Archisearch - View of the cafeVIEW OF THE CAFE
Archisearch - New open spacesNEW OPEN SPACES
Archisearch - Meeting pointMEETING POINT
Archisearch - View of the inner portVIEW OF THE INNER PORT
Archisearch - Walkaway to the lighthouseWALKAWAY TO THE LIGHTHOUSE
Archisearch - EntranceENTRANCE
Archisearch - Site planSITE PLAN
Archisearch - Concept diagramsCONCEPT DIAGRAMS
Archisearch - Aerial view of the locationAERIAL VIEW OF THE LOCATION
Archisearch - View from the seaVIEW FROM THE SEA

RELATED ARTICLES