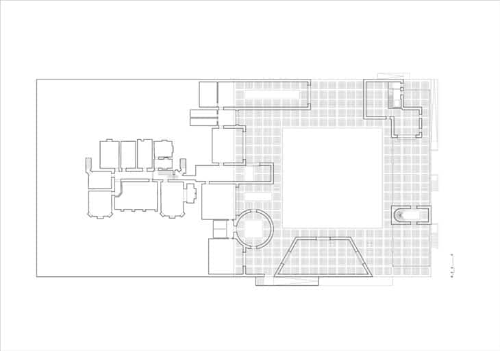
Grounded on the existing topography, Polyvalent Infrastructure, this new public facilities addresses the site quality by means of building up a new podium dedicated to one of the historical figure of the valley: the Castle of La Fraineuse (XIX c.). Through its infrastructural value, the project acts as an architectural artefact in contrast with the surrounding nature.
By offering large covered areas, complementary to inside spaces, the building goes beyond the specificity of its use, claiming at the same time that polyvalence is not necessarily synonym of neutrality. Organized around a patio, the composition of indoor and outdoor places provides generous porosity enabling various types of “choreographies”.

Polyvalent Infrastructure consists of two different construction process and languages: the organic retaining walls, made out of monolithic insulating in situ concrete, and, a single regular structural roof, built up with welded reconstituted steel profiles.


Facts & Credits:
Name of work in English: Polyvalent Infrastructure
Name of work in original language: Polyvalent Infrastructure
Placement: Shortlisted
Prize year: 2017
Location: Spa, Belgium
Year completed: 2016 (Year began 2014)
Studios: BAUKUNST
Authors: Adrien Verschuere (1976 Belgium)
Collaborators
Architect: Delpierre Benoit, Devergnies Justine, Pauperio Joao, Rebelo Maria, Devos Tomas
Photography: © Hélène Binet
Program: Food & Accommodation
Labels: Heritage, Visitors Centre
Total area: 25000
Usable floor area: 1850
Client: Fédération Wallonie-Bruxelles
Client Type: public



