Κατοικία στο Φάληρο / Αρχιτεκτονική μελέτη / Δημήτρης Θωμόπουλος

Οι περιορισμοί των όρων δόμησης της περιοχής και το μικρό μέγεθος του οικοπέδου οδήγησαν στη διαμόρφωση μίας κατοικίας σε πολλά επίπεδα. Κεντρική ιδέα της σύνθεσης ήταν η δημιουργία ενός γεωμετρικού στερεού από το οποίο αφαιρούνται κάθε φορά τμήματα μονού ή διπλού ύψους δημιουργώντας χώρους σε εσοχή που αφήνουν το φως να εισχωρήσει στο εσωτερικό του κτιρίου ενώ παράλληλα τα διαφορετικά επίπεδα αποκτούν εσωτερικές θεάσεις. Ο μονολιθικός εξωτερικά όγκος, καλυμμένος από  λευκό, λείο επίχρισμα παραμένει σχετικά κλειστός ως προς το εξωτερικό του περιβάλλον, δημιουργώντας μια εσωστρεφή κατοικία η οποία ανοίγεται προς τους εντός του όγκου της, εξωτερικούς χώρους.

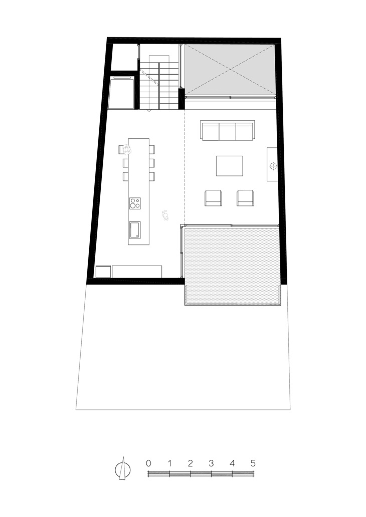
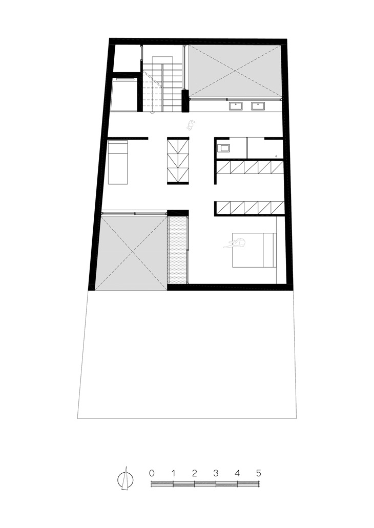
Κάθε στάθμη του κτιρίου στεγάζει διαφορετικές χρήσεις που συνδέονται κατακόρυφα μέσω κλιμακοστασίου και ανελκυστήρα, στη στάθμη του ισογείου βρίσκεται η είσοδος της κατοικίας και μια μικρή εσωτερική πισίνα, ενώ στη πρώτη στάθμη ένας αυτόνομος ξενώνας με μικρό wc και κουζίνα που εκτονώνονται σε ένα μεγάλο εξωτερικό ημιυπαίθριο που βλέπει προς τον διπλού ύψους χώρο της εισόδου, εξασφαλίζοντας το μέγιστο δυνατό ηλιασμό. Στο δεύτερο επίπεδο τοποθετούνται οι χώροι ύπνου της κατοικίας. Ένα μεγάλο υπνοδωμάτιο με λουτρό και γκαρνταρόμπα καθώς και ένα μικρότερο βοηθητικό δωμάτιο, που κοιτάζουν προς τον μεγάλο, διπλού ύψους κενό χώρο της pilotis. Οι χώροι διημέρευσης τοποθετούνται στο υψηλότερο επίπεδο της κατοικίας σε στάθμη με μεγαλύτερο ύψος από τις υπόλοιπες και ένα εσωτερικό πατάρι, για την εκμετάλλευση της θέας και του ηλιασμού αλλά και της υπαίθριας εκτόνωσης στα διαδοχικά δώματα, φυτεμένα και βατά.

Παράλληλα, στη πίσω μεσοτοιχία του κτιρίου δημιουργείται ένα αίθριο που διατρέχει όλους τους ορόφους επιτρέποντάς τους να αποκτήσουν διαμπερή φωτισμό και αερισμό, ενώ ο τυφλός  τοίχος του υλοποιείται ως κατακόρυφος κήπος που δροσίζει και παράλληλα προσφέρει μια ενδιαφέρουσα εσωτερική θέαση.

Το έργο συμπεριλήφθηκε στα δώδεκα κορυφαία έργα στην κατηγορία ‘Καλύτερη μελέτη των ετών 2008-2010’ του διαγωνισμού ‘ΒΡΑΒΕΙΑ ΔΟΜΕΣ 2011’, με κριτική επιτροπή τους κκ Steven Holl, Finn Geipel και Παναγιώτη Τουρνικιώτη.

ΣΤΟΙΧΕΙΑ ΕΡΓΟΥ

Ονομασία και θέση μελέτης:     Κατοικία στο Παλαιό Φάληρο

Αρχιτέκτων  Θωμόπουλος Δημήτρης

Μελέτη:    2009-2010

Εμβαδόν οικοπέδου:    167,97m²

Συνολική επιφάνεια:    234,84m²

Συνεργάτες αρχιτέκτονες: Ρούσσου Άννυ,  Κανέλλος Τάσος, Κανέλλου Νικολέττα


Archisearch - τομήΤΟΜΗ
Archisearch - κάτοψηΚΑΤΟΨΗ
Archisearch - κάτοψη 3ου ορόφουΚΑΤΟΨΗ 3ΟΥ ΟΡΟΦΟΥ
Archisearch - κάτοψη 2ου ορόφουΚΑΤΟΨΗ 2ΟΥ ΟΡΟΦΟΥ
Archisearch - κάτοψη 1ου ορόφουΚΑΤΟΨΗ 1ΟΥ ΟΡΟΦΟΥ
Archisearch - κάτοψη ισογείουΚΑΤΟΨΗ ΙΣΟΓΕΙΟΥ
Archisearch - φωτορεαλιστική απεικόνισηΦΩΤΟΡΕΑΛΙΣΤΙΚΗ ΑΠΕΙΚΟΝΙΣΗ
Archisearch - φωτορεαλιστική απεικόνισηΦΩΤΟΡΕΑΛΙΣΤΙΚΗ ΑΠΕΙΚΟΝΙΣΗ
Archisearch - φωτορεαλιστική απεικόνισηΦΩΤΟΡΕΑΛΙΣΤΙΚΗ ΑΠΕΙΚΟΝΙΣΗ
Archisearch - διάγραμμα λειτουργικής οργάνωσηςΔΙΑΓΡΑΜΜΑ ΛΕΙΤΟΥΡΓΙΚΗΣ ΟΡΓΑΝΩΣΗΣ
Archisearch - συνθετική ιδέαΣΥΝΘΕΤΙΚΗ ΙΔΕΑ

RELATED ARTICLES