Το αρχιτεκτονικό γραφείο ANAGRAM architecture & urbanism έλαβε μέρος στον αρχιτεκτονικό διαγωνισμό προσχεδίων για τους Πρώην Στάβλους Παπάφη στη Θεσσαλονίκη. Ορμώμενοι από το πολυποίκιλο πρόγραμμα, οι αρχιτέκτονες αναζήτησαν μια κτιριολογική τυπολογία, η οποία μπορεί να συνδυάσει τα διαφορετικά προγράμματα κάτω από την ίδια στέγη και την ίδια στιγμή να λειτουργεί ως ένα ενιαίο κτίριο.

“Η ένταξη του κτιρίου στον αστικό ιστό και στο χαρακτήρα της γύρω περιοχής ήταν ένα βασικό χαρακτηριστικό που νοηματοδότησε την πρόταση”, σημειώνουν οι αρχιτέκτονες.
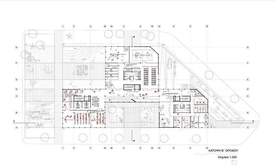
Η προσέγγιση της πρότασης έχει ξεκάθαρα αστικό χαρακτήρα. Αυτό γίνεται εμφανές από το γεγονός ότι ο κτιριακός όγκος σπάσει σε 3 μέρη ώστε να ενισχύσει τη μικροκλίμακα της περιοχής και να δημιουργήσει υπαίθριους χώρους-κατώφλια όπου μπορούν να χρησιμοποιηθούν από τη γειτονιά και από το κτιριολογικό πρόγραμμα. Οι τρεις όγκοι ενώνονται μεταξύ τους μέσω μια προγραμματικής πορείας-ράμπα η οποία ενισχύεται από τα διαφορετικά προγράμματα του κτιρίου και λειτουργεί ως ένας ενδιάμεσος χώρος. Η πορεία καταλήγει στην οροφή του κτιρίου όπου υπάρχει ένα υπαίθριο σινεμά για την πόλη και τη γειτονιά.

Ο στόχος της πρότασης είναι να δημιουργήσει όχι τόσο ένα μεγάλο ή μνημειώδη κτιριακό όγκο, όσο να προτείνει μια αυλή για όλους και ένα ανοικτό πεδίο συνδιαλλαγής μέσω διαφορετικών δημόσιων χώρων(υπαίθριων, υπαίθριων και κλειστών).
ΤΟ ΚΑΤΩΦΛΙ
Με την υποχώρηση και κατακερματισμό του κτιριακού όγκου δημιουργούνται αυλές- είσοδοι ανάμεσα στους όγκους. Στόχος είναι αυτοί οι υπαίθριοι χώροι να χρησιμοποιούνται από την πόλη και τους χρήστες του κτιρίου. Παράλληλα, οι χώροι αυτοί αποτελούν μέρος μιας μεταβατικής πορείας του περιπατητή από τη βουή της πόλης στο κτιριακό όγκο και καταλήγουν στην οροφή ενός από τους κτιριακούς όγκους όπου μπορούν να ατενίσουν την πόλη.

Η ΡΑΜΠΑ
Η προγραμματική ράμπα αποτελεί τον ιστό που συνδέει τους διαφορετικά προγραμματικούς όγκους. Προτείνεται μια αργή πορεία κατά μήκος των κτιριακών όγκων που επιτρέπει την εύκολη διέλευση ανθρώπων κάθε ηλικίας και ενισχύεται από τα κέντρα εισόδου στα διαφορετικά προγράμματα, καθιστικούς και εκθεσιακούς χώρους. Από τη στιγμή που ο περιπατητής μπαίνει στο κτίριο η πρόταση στοχεύει να παρατείνει την διαμονή του και να αλληλεπιδράσει με χρήστες διαφορετικών προγραμμάτων. Η ράμπα αποτελεί ένα μεταβατικό χώρο χωρίς ταυτότητα όπου ο καθένας μπορεί να νιώσει οικεία και να τον χρησιμοποιήσει. Τελικός στόχος είναι να εκφραστεί ο πολυπρογραμματικός χαρακτήρας του κτιρίου μέσω αυτής της όψης και η εξωστρέφεια του.
ΑΣΤΙΚΕΣ ΣΥΝΔΕΣΕΙΣ
Τρεις είναι οι βασικές είσοδοι του κτιρίου: ο νότιος υπαίθριος χώρος όπου προσφέρει ανεξάρτητη είσοδο στο χώρο μνήμης και στο κέντρο ημερήσιας φροντίδας ηλικιωμένων, ο ανατολικός υπαίθριος χώρος όπου διασφαλίζει την ανεξάρτητη είσοδο στο Κ.Ε.Π. Και τέλος, η είσοδος στη βόρεια πλευρά του κτιρίου όπου διασφαλίζει την ανεξάρτητη λειτουργία του βρεφονηπιακού σταθμού.
ΤΟΠΙΟ
Βασικός στόχος της πρότασης αποτελεί η ένταξη του κτιριακού όγκου στη γειτονία χωρίς να διαταράξει τις συνθήκες διαβίωσης στα γειτονικά κτίρια. Αυτό επιτυγχάνεται με την μείωση των επιμήκη κλειστών όψεων και με την εισαγωγή του στατικού περιστυλίου που στοχεύει να δώσει ένα ρυθμό στις όψης δίνοντας έμφαση στην ανθρώπινη κλίμακα. Παράλληλα, προτείνεται η επέμβαση στην υπάρχουσα παιδική χαρά ώστε να γίνει συνέχεια του προαυλίου χώρου του βρεφονηπιακού σταθμού.
Στοιχεία έργου
Τίτλος έργου Ανοικτός Αρχιτεκτονικός Διαγωνισμός προσχεδίων μελέτης, με τίτλο “Δημιουργία Χώρου Εγκαταστάσεων Κοινής Ωφέλειας στο Ο.Τ. που περικλείεται από τις οδούς Αλοννήσου- Μυκόνου- Άνδρου- Σιδηροκάστρου (πρώην Στάβλοι Παπάφη)
Αρχιτέκτονες ANAGRAM architecture & urbanism / Μαρίνα Κουνάβη, Κωνσταντίνα Λόλα)











