The athlete's apartment // Διπλωματική εργασία της Νίκης Γκοτσίδη

text in EN, GR

Η παρούσα διπλωματική εργασία πραγματεύεται τον  σχεδιασμό μιας τυπικής πολυκατοικίας σε επαρχιακή πόλη της Ελλάδας και ταυτόχρονα εμβαθύνει στις ειδικές απαιτήσεις διαμόρφωσης διαμερίσματος στα δύο τελευταία επίπεδα της πολυκατοικίας. 

-κείμενο της Νίκης Γκοτσίδη

Η ιδιοκτήτρια του διαμερίσματος είναι μια αθλήτρια παραολυμπιονίκης του στίβου σε αναπηρικό αμαξίδιο και δασκάλα του taekwondo που ασχολείται εξίσου και με άλλα αθλήματα όπως το badminton. Το θέμα βασίζεται σε πραγματικό χαρακτήρα, την αθλήτρια Δ.Κ. που διαμένει στην Αθήνα, με την οποία έχουν γίνει σχετικές συζητήσεις για να προσδιοριστούν οι ιδιαιτερότητες της καθημερινότητας της και οι σχεδιαστικές  απαιτήσεις που προκύπτουν από τις αθλητικές δραστηριότητες στις οποίες επιδίδεται.

Το υποθετικό μέρος του σεναρίου της πρότασης παίρνει αφορμή από την ιδέα της αντιπαροχής. Σύμφωνα με αυτό, η αναθέτρια ανταλλάσσει ένα οικόπεδο, το οποίο έχει κληρονομήσει, με ένα μέρος του ισογείου και ένα διαμέρισμα διπλού ύψους σε τυπική πολυκατοικία στο κέντρο της Κομοτηνής. Με αυτόν τον τρόπο στο ισόγειο τοποθετείται ο χώρος εργασίας της αθλήτριας, όπου διδάσκει Tae Kwon Do.

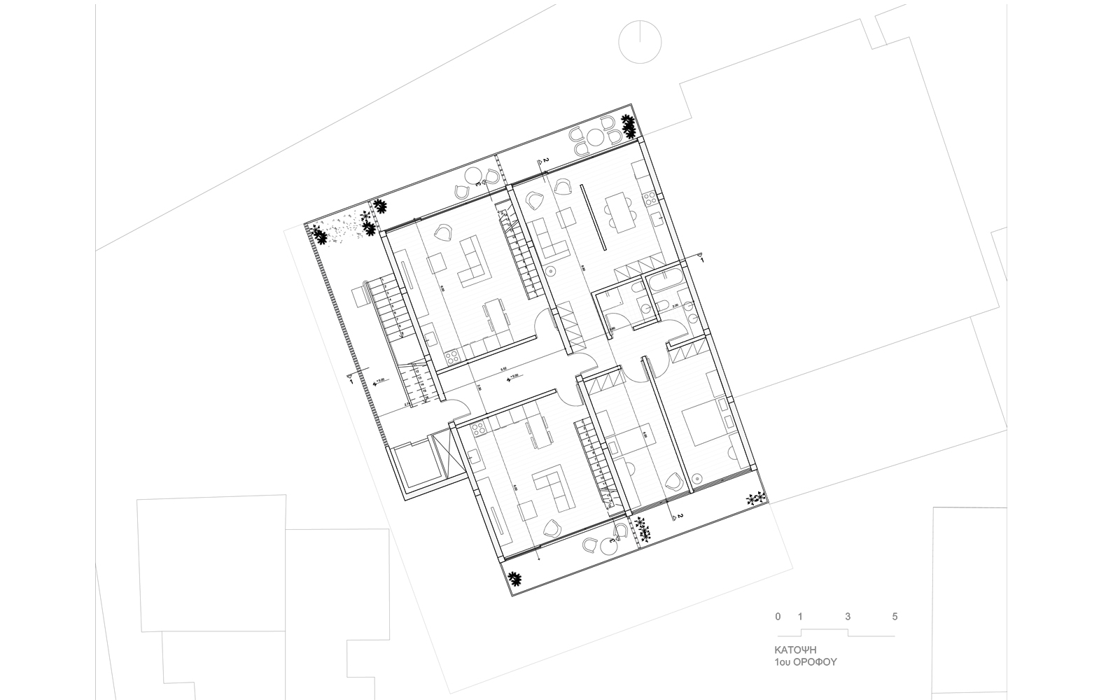
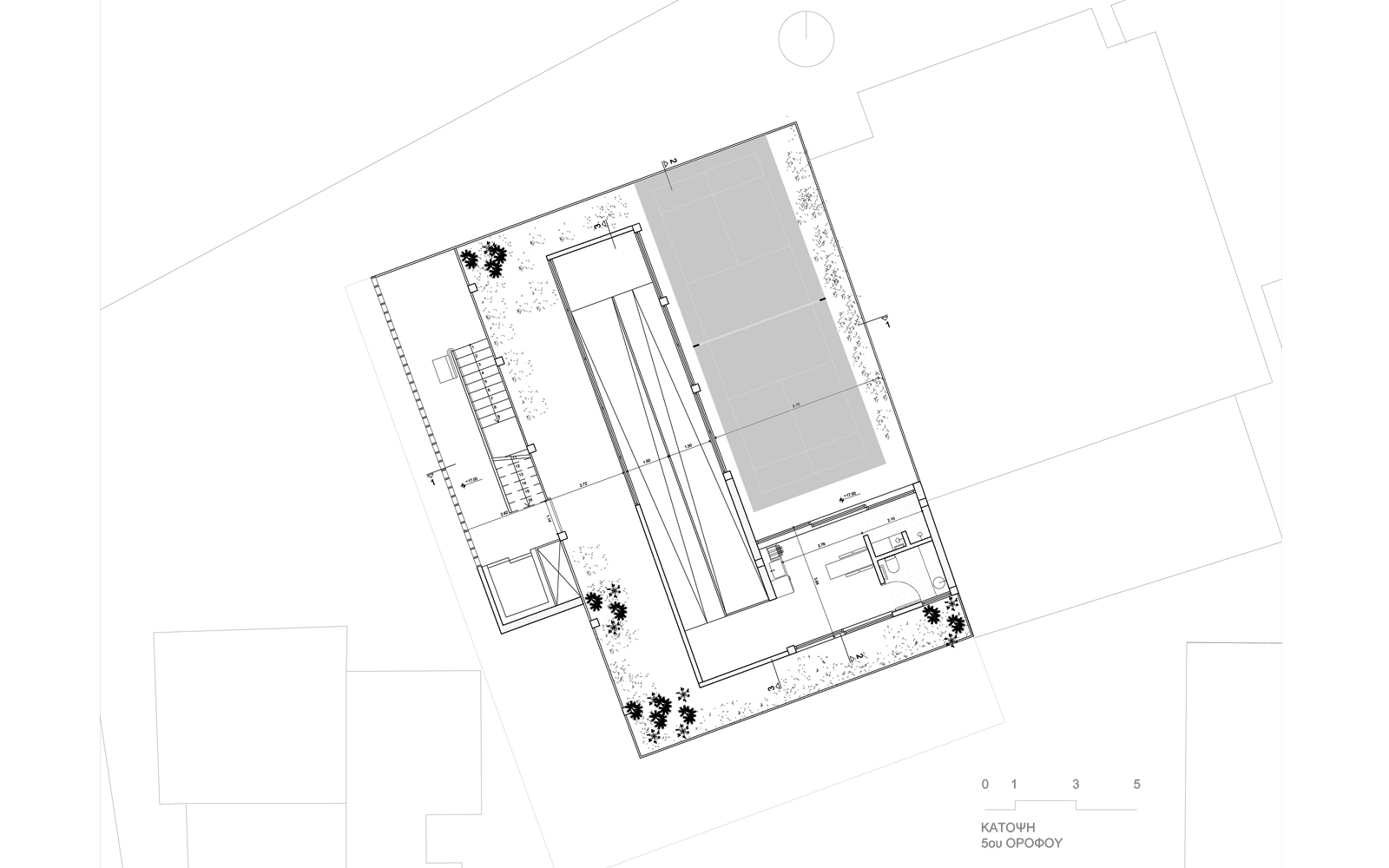
Στους υπόλοιπους ορόφους, σχεδιάζονται διαμερίσματα προς ενοικίαση και στον τελευταίο όροφο της πολυκατοικίας βρίσκεται η μονοκατοικία της αθλήτριας, η οποία καταλαμβάνει δύο επίπεδα.

Η μονοκατοικία μέσα από τον σχεδιασμό, πέρα των  απαραίτητων λειτουργικών χώρων που χρειάζεται για την πραγμάτωση των καθημερινών αναγκών, έχει ως στόχο την ενσωμάτωση αθλημάτων.

Έτσι, ο σχεδιασμός ξεκινά από την διαμόρφωση όλων των χώρων της πολυκατοικίας και τελικά εμβαθύνει στο interior design της κατοικίας.

 

Η ογκοπλασία του κτιρίου, σχεδιάστηκε με βασική αρχή την διαμόρφωση της μονοκατοικίας, ως αναπόσπαστο κομμάτι της πολυκατοικίας. Ένας όγκος διασπάται με βάση τις λειτουργίες που τοποθετούνται καθ’ ύψος, με την λογική “βάση – κορμός – στέψη”.

Η βάση της πολυκατοικίας, είναι χώροι καταστημάτων, ο κορμός είναι τα επιμέρους διαμερίσματα της πολυκατοικίας και τέλος, η στέψη είναι η μονοκατοικία της αθλήτριας.

Η κίνηση στο σχεδιασμό ολόκληρης της πολυκατοικίας λαμβάνει σημαντικό ρόλο, κάνοντάς την εμφανή και στην όψη. Έτσι, δίνεται μεγάλη σημασία στον πυρήνας κίνησης ο οποίος  αναπτύσσεται κάθετα στην δυτική πλευρά του κτιρίου και είναι ανοιχτός. Η επιλογή της, Κομοτηνής έγινε λόγω της προσβασιμότητας της, καθώς κατέχει το δεύτερο Βραβείο Προσβάσιμης Πόλης στην Ελλάδα.

Στοιχεία έργου:

Τίτλος :  The athlete’s apartment 
Κατηγορία: Διπλωματική εργασία 
Φοιτήτρια: Νίκη Γκοτσίδη
Επιβλέπουσα: Κορίνα Φιλοξενίδου
Εκπαιδευτικό ίδρυμα: Πολυτεχνική σχολή, Πανεπιστήμιο Ιωαννίνων


This thesis deals with the design of a typical apartment building in a provincial town of Greece and at the same time delves into the special requirements for the configuration of an apartment in the last two levels of the apartment building.

The owner of the apartment is a Paralympic athlete in a wheelchair and a tae kwon do teacher who also dabbles in other sports such as badminton. The theme is based on a real character, the athlete D.K. who resides in Athens, with whom relevant discussions have been held to determine the particularities of her daily life and the design requirements arising from the sports activities which she engages in.

The hypothetical part of this scenario is motivated by the idea of consideration. According to this, the assignor exchanges a plot of land, which she has inherited, for a part of the ground floor and a double-height apartment in a typical apartment building in the center of Komotini. Τhe athlete’s workplace is placed on the ground floor, where she teaches Tae Kwon Do.

On the remaining floors ,apartments for rent are planned and on the top floor of the apartment building there is the single house of the athlete, which occupies two levels.

The single-family house through the design, beyond the necessary functional spaces needed to fulfill daily needs, aims to integrate sports. Thus, the design starts with the configuration of all the spaces of the apartment building and finally goes deeper into the interior design of the residence.

The masonry of the building was designed with the basic principle of forming the single-family house as an integral part of the apartment building. A volume is divided based on the functions placed vertically, with the logic “base – trunk – crown”.

The base of the apartment building is a shop space, the trunk is the individual apartments of the apartment building and finally, the crown is the athlete’s single-family house.

Movement plays an important role in the design of the entire apartment building, making it visible in appearance. Thus, great importance is given to the movement core which develops vertically on the western side of the building and it is open. Komotini was chosen because of its accessibility, as it holds the second Accessible City Award in Greece.

Credits & Details

Project: The athlete’s apartment
Category: Diploma thesis
Student: Niki Gotsidi
Supervisor: Korina Filoxenidou
Polytechnic school, University of Ioannina


RELATED ARTICLES