Αυτή η ερευνητική εργασία από τον Γιώργο Γενοβέζο μελετά την ιστορία και τη χωρική συγκρότηση της φυλής των Ρομά, στο πλαίσιο μιας Νέας Νομαδικής Κατοίκησης.
Η αρχιτεκτονική έχει τη δύναμη να επηρεάσει θετικά μια μειονεκτική ομάδα της κοινωνίας. Μια τέτοια ομάδα αποτελεί η φυλή των Ρομά. Για να προτείνουμε σχεδιαστικές αλλαγές είναι πολύ σημαντικό να γνωρίζουμε για τον πολιτισμό και για τον τρόπο κατοίκησής τους. Η εργασία αυτή αποτελεί γνωστικό υπόβαθρο για το πρότζεκτ της διπλωματικής, Νέα Νομαδική Κατοίκιση.
Η ερευνά έχει χωριστεί σε ένα ιστορικό και πολιτισμικό κομμάτι με χωρικές αναφορές και σε ένα τμήμα μελέτης της σημερινής κατάστασης των καταυλισμών.
Κυρίως για την προσπάθεια επιβίωσης, οι πληθυσμοί Ρομά περιφέρονταν από τόπο σε τόπο, όπου το κλίμα ήταν πιο φιλικό προς αυτούς. Σιγά σιγά επεκτάθηκαν σε ολόκληρη την Ευρώπη. Η στέγαση των Ρομά στην αρχαία ιστορία, αποτελούνταν από κατοικίες που ήταν κυρίως σκηνές με στύλο και γενικότερα σκηνές σχήματος κώνου, συνήθως φτιαγμένες από καμβά. Αυτός ο τρόπος κατοίκισης ήταν βολικός αφού μπορούσε να κουβαληθεί από τόπο σε τόπο όσο ζούσαν νομαδικά.
Τη χειμερινή περίοδο πολλοί επέλεγαν την εγκατάσταση τους ακόμη και σε σπηλιές μέχρι να καλυτερεύσει ο καιρός. Παράδειγμα αποτελούν οι σπηλιές monte Sacro στην Ισπανία. Στα μέσα του 19ου αι. οι Ρομά στη Βρετανία άρχισαν να χρησιμοποιούν άμαξες, γνωστές ως Vardo, που ενσωμάτωναν χώρους διημέρευσης στο εσωτερικό τους. Μέχρι τα τέλη της δεκαετίας του 90 εμφανίζονταν στους καταυλισμούς πάνινες κατοικίες, που η Έφη Καραθανάση, ονομάζει Τσαντίρια.
Το 2008 στη Λάρισα μια ομάδα φοιτητών καταγραφεί ένα φορτηγό τροποποιημένο σε κατοικία, με τους κατοίκους του να μετακινούνται συνεχώς για τη πώληση των εμπορευμάτων τους. Μελετώντας τις καταγραφές της Έφης Καραθανάση και με βάση την καταγραφή μας στη Νέα Ζωή, καταλήγουμε σε αυτές τις τρεις πιο συνηθισμένες τυπολογίες καλύβας.
Μελετήσαμε ακόμα τρεις καταυλισμούς στην Ελλάδα, έναν από κάθε τύπο. Οι τοποθεσίες που επιλέξαμε είναι η Νέα Ζωή στον Ασπρόπυργο, το Δροσερό στη Ξάνθη και το Τέρμα Άβαντος στην Αλεξανδρούπολη.
Μεταξύ τους παρατηρείται διάφορα στο ποσοστό χτιστού χώρου και στα κυκλοφοριακά δίκτυα.
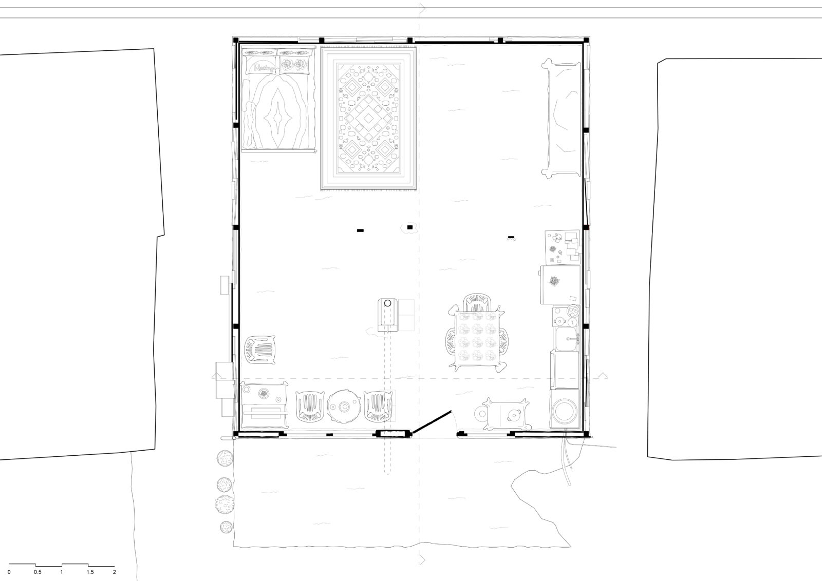
Τον Μάιο του 2024 εγώ και ο Λάμπρος Φαράτζ επισκεφθήκαμε το καταυλισμό Νέα Ζωή ώστε να καταγράψουμε το σπίτι της κυρίας ειρήνης που βρίσκεται βορειοδυτικά του οικισμού. Η είσοδος του σπιτιού βρίσκεται στη κυρία όψη, προσανατολισμένη προς τον νότο, με πρόσβαση απευθείας από τον χωμάτινο δρόμο της γειτονιάς. Διαθέτει δίριχτη σκεπή με τη κορυφή της να βρίσκεται περίπου στο 2.70m. Χαρακτηριστικό της όψης είναι τα σεμεδάκια που λειτουργούν ως φίλτρο φωτός πίσω από τις τζαμαρίες.
Η κατοικία είναι τυπικού μεγέθους (6.70×7.60m) σε σχέση με τα υπόλοιπα σπίτια του οικισμού και αναπτύσσεται ισόγεια. Η διαρρύθμιση εσωτερικά πρόκειται για «open-plan». Η επιλογή αυτή οφείλεται τόσο σε πρακτικούς λόγους κατασκευής, όσο και σε κοινωνικούς παράγοντες. Οι χώροι οριοθετούνται από την επίπλωση ή από την εναλλαγή μοτίβων.
Περιμετρικά έξω από το κέλυφος, καθώς και σε τρία σημεία στο κέντρο του εσωτερικού, βρίσκεται ο κύριος φέροντας οργανισμός. Πάνω στις κολόνες στηρίζονται τρία κατά μήκος του κτίσματος, ενώ κατά πλάτος εννέα αντίστοιχα δοκάρια συγκρατούν τη κάλυψη της στέγης. Τα υλικά επένδυσης του ξύλινου σκελετού, είναι κυρίως κομμάτια MDF και μοριοσανιδών, τα τοποθετημένα το ένα πάνω στο άλλο, σχηματίζουν την εξωτερική τοιχοποιία και την κάλυψη της στέγης. Όλα τα έπιπλα από το κρεβάτι μέχρι τα τραπεζάκια είναι καλυμμένα με πολύχρωμα ριχτάρια και σεμεδάκια. Στη διπλωματική μας εργασία θα ασχοληθούμε με τον χωρικό επαναπροσδιορισμό της σχέσης των Ρομά με τη πόλη.
Στόχοι του πρότζεκτ είναι η επίτευξη ειρηνικής αλληλεπίδρασης μεταξύ των Ρομά και τον υπόλοιπο πληθυσμό, η δημιουργία αξιοπρεπών συνθηκών διαβίωσης και η ανάδειξη της κουλτούρας τους.
Στοιχεία έργου
Τίτλος εργασίας: Ρομά: Ιστορία και Χωρική Συγκρότηση
Τυπολογία: Ερευνητική εργασία
Εξεταστική περίοδος: Ιούνιος 2024
Φοιτητής: Γιώργος Γενοβέζος
Επιβλέπουσα καθηγήτρια: Δήμητρα Κατσώτα
Σχολή: Τμήμα Αρχιτεκτόνων Μηχανικών, Πανεπιστήμιο Πατρών
Κείμενο: Γιώργος Γενοβέζος
This Diploma research thesis by George Genovezos, studies the history and spatial structure of Roma people, in an effort of finding ways for a New Nomadic Living.
Architecture has the power to positively impact a disadvantaged group in society. One such group is the Roma people. In order to propose design changes, it is essential to understand their culture and way of life. This work serves as a background for the diploma project, “New Nomadic Living”.
The research has been divided into a historical and cultural section with spatial references, and a section on the current situation of the settlements.
Primarily in their pursuit of survival, Roma populations roamed from place to place, seeking more favorable social conditions. Gradually, they spread throughout Europe. The housing of Roma people in ancient history consisted primarily of tents with poles and generally cone-shaped tents, typically made of canvas. This mode of habitation was convenient as it could be carried from place to place during their nomadic lifestyle. During the winter season, many chose to settle even in caves until the weather improved. An example is the Monte Sacro caves in Spain. In the mid-19th century, Roma people in Britain began using caravans, known as Vardo, which incorporated living spaces within their structure. Until the late 1990s, tent-like dwellings, which Efi Karathanasi calls “Tsandiria” were frequently found in the settlements. In 2008, a group of students in Larissa documented a truck modified into a dwelling, with its inhabitants constantly moving to sell their goods.
By examining Efi Karathanasi’s records and drawing upon our own documentation at Nea Zoi, we have identified the three most common hut typologies.
We also studied three settlements in Greece, one of each type. The locations we chose were Nea Zoi in Aspropyrgos, Drosgero in Xanthi, and Terma Avandos in Alexandroupolis. Variations can be spotted among them in terms of the percentage of built-up area and the road networks. In May 2024, I and Lambros Faraj visited the Nea Zoi settlement to record the house of Mrs. Eirini, which is located northwest of the settlement. The entrance to the house is located on the main facade, facing south, with direct access from the dirt road of the neighborhood.
It features a double-pitched roof with its peak at approximately 2.70m. A characteristic feature of the facade are the doilies that act as a light filter behind the windows. The house is of typical size (6.70×7.60m) compared to the other houses in the settlement and is developed on one floor. The interior layout is “open-plan”. This choice is due to both practical construction reasons and social factors. The spaces are defined by furniture or by the change of patterns. The main load-bearing structure is located around the perimeter outside the shell, as well as at three points in the center of the interior.
Three beams run along the length of the building supported by the columns, while nine corresponding beams across the width support the roof covering. The covering materials of the wooden frame are mainly MDF and particle board pieces, placed one on top of the other, forming the exterior walls and the roof. Every piece of furniture, from the bed to the little tables, is decorated with colorful throws and doilies.
In our thesis, we will deal with the spatial redefinition of the relationship between Roma and the city. The goals of the project are to achieve peaceful interaction between Roma and the rest of the population, to create decent living conditions while promoting their culture.
Facts & Credits
Project title: Roma: History and Spatial Structure
Typology: Diploma research thesis
Academic semester: June of 2024
Student: George Genovezos
Supervisor: Demetra Katsota
Institution: Department of Architecture, University of Patras
Text: George Genovezos
READ ALSO: Κέντρο Πολιτισμού στα Χανιά | Διπλωματική εργασία των Ζαχαράκη Μιχαέλα και Τζιρβελάκη Σοφία



















