text in EN, GR

Η Διπλωματική εργασία των Ιουλιανού Καράντζιο και Μιχαλάκη Ηλία εστιάζει στον σχεδιασμό ενός πολυλειτουργικού αγροτικού συγκροτήματος κονστά στον οικισμό Εμπορειό, στο νησί της Νισύρου. Έχοντας ως εκκίνηση και αναφορά τις αρχές της κυκλικής οικονομίας και τοπικοποιημένης παραγωγής, η πρόταση στοχεύει στην αναβίωση παραδοσιακών τοπικών αγροτικών πρακτικών, την αναζωογόνηση και αυτάρκεια των κοινοτήτων. 

Το έργο εστιάζει στον Εμπορειό, έναν ημιορεινό οικισμό στο νησί της Εμπορειό.

Στόχος του είναι η αναβίωση παραδοσιακών αγροτικών πρακτικών, διαμορφωμένων από το ηφαιστειακό τοπίο και την πλούσια πολιτιστική κληρονομιά του νησιού.

Αξιοποιώντας τις ιστορικές πεζούλες και το εύφορο ηφαιστειακό έδαφος, συνδυάζει καλλιέργεια, επεξεργασία και συμμετοχή επισκεπτών. Σκοπός του είναι η προώθηση της κυκλικής οικονομίας, της πολιτιστικής κληρονομιάς και της περιβαλλοντικής εκπαίδευσης.

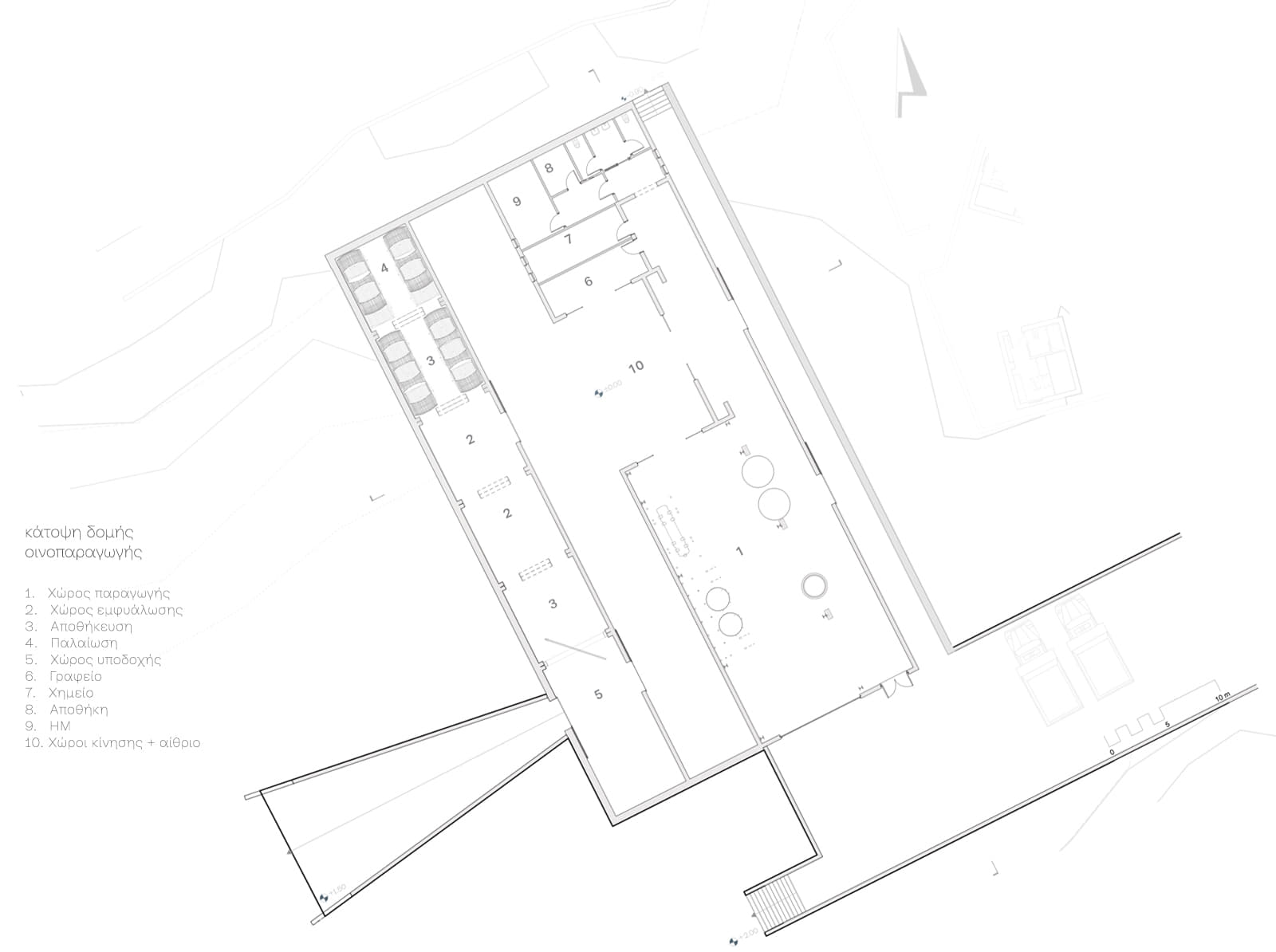
Η πρόταση αφορά την δημιουργία ενός πολυλειτουργικού αγροτικού συγκροτήματος που ενσωματώνει χώρους παραγωγής επεξεργασίας και αποθήκευσης τοπικών προϊόντων, εργαστήριο εκπαίδευσης για βιώσιμες πρακτικές καλλιέργειας και κοινοτικούς χώρους συνάντησης.

Το συγκρότημα που προτείνουμε, έχει ως επίκεντρο μια μονάδα οινοπαραγωγής η οποία καλύπτει την επεξεργασία ορισμένων εκτάσεων αμπελιών περιμετρικά της περιοχής. Συνδυαστικά χωροθετούνται και επιμέρους καλλιέργειες διαδεδομένων δέντρων και φυτών στην ευρύτερη περιοχή, οι οποίες από την πλευρά τους καθορίζουν και τις συμπληρωματικές δομές ανά το συγκρότημα για κατοίκιση, συνάθροιση και εμπλοκή με την γη.

Κλειδί στην προσέγγιση της πρότασης μας αποτελεί η έννοια της κυκλικής οικονομίας ως μία βιώσιμη προσέγγιση για την αναζωογόνηση τοπικών κοινοτήτων.

Αυτό θέλαμε να εξεταστεί με τους όρους και τις προϋποθέσεις που καθορίζει η γη στην οποία χωροθετείται η πρόταση μας, συγκεκριμένα στο πλαίσιο της αγροτικής ανάπτυξης για την οποία προσφέρεται το έδαφος της περιοχής.

Η εγγύτητα με τον Εμπορειό επιτρέπει την δημιουργία ενός συμπλέγματος το οποίο θα έχει μια δυναμική σχέση με τον οικισμό λειτουργώντας ως ένα κίνητρο το οποίο μπορεί να προσφέρει δυνατότητες δραστηριοποίησης τόσο για την τοπική κοινότητα όσο και για εξωτερικούς επισκέπτες.

Σκοπός δεν ήταν η δημιουργία ενός πλήρως αυτόνομου και ανεξάρτητου τοποθεσίας συγκροτήματος αλλά ένα σχέδιο το οποίο να συνομιλεί ενεργά με τον οικισμό στον οποίο έρχεται να συμπεριληφθεί.

Έτσι λαμβάνουμε υπόψη τις ευκαιρίες για στέγαση και πρόσβαση στις λοιπές υποδομές του οικισμού ενδυναμώνοντας τες με κατάλληλους χειρισμούς.

Σε επίπεδο οικονομικής ενδυνάμωσης τοπικοί παραγωγοί μπορούν να εμπλακούν με την οινοπαραγωγή, αυξάνοντας την οικονομική ανθεκτικότητα της περιοχής, ενισχύοντας τη δημιουργία θέσεων απασχόλησης.

Απώτερη επιδίωξη είναι η βελτίωση της αυτάρκειας του οικισμού ο οποίος φθίνει με το πέρασμα τον χρόνων με όρους περιβαλλοντικής βιωσιμότητας. Κάτι που για ένα τέτοιο τόπο να είναι εφικτό να συμβεί πέρα από τους καλοκαιρινούς μήνες, ενδυναμώνοντας με κατάλληλους χειρισμούς και τις λοιπές υποδομές του νησιού.

Λαμβάνοντας υπόψη τοπικές αρχιτεκτονικές πρακτικές και ανατρέχοντας σε αντίστοιχη βιβλιογραφία αναλύσαμε στοιχεία όπως η παραδοσιακές οροφές και λιθοδομές σε μια προσπάθεια να αποτελέσουν έπειτα κάποιο στοιχείο στον μετέπειτα σχεδιασμό.

Ουσιαστική επίσης ήταν και η άντληση παραδειγμάτων από τον οικισμό στον οποίο γίνεται εμφανής η χρήση των τόξων (στοιχείο που χρονολογείται από τα βυζαντινή περίοδο του νησιού), τα βατά δώματα και η συνδιαλλαγή μεταξύ πέτρας και ξύλου.

Η κλίμακα της παρέμβασης είναι τέτοια έτσι ώστε το αποτύπωμα στο περιβάλλον να είναι όσο το δυνατόν μικρότερο, καθώς κρίναμε πως μια προσέγγιση η οποία αποτελείται από επιμέρους σημειακές παρεμβάσεις ενδεχομένως να είναι αποτελεσματικότερη.

Συνολικά ο σχεδιασμός γίνεται με τέτοιο τρόπο ώστε να ενθαρρύνει το «έξω», την επαφή με το περιβάλλον, το τοπίο, την γη όχι μόνο της ευρύτερης περιοχής και του οικισμού αλλά ολόκληρου του νησιού.

Drawings

Στοιχεία έργου
Τίτλος έργου Συναρμογές αγροτικής δραστηριότητας και πρακτικών βιωματικής διαμονής
Τύπος έργου Διπλωματική Εργασία
Φοιτητές Ιουλιανός Καράντζιος, Μιχαλάκης Ηλίας
Επιβλέπον καθηγητής Στυλίδης Ιορδάνης

Ημερομηνία παρουσίασης Φεβρουάριος 2025
Πανεπιστημιακό ίδρυμα Σχολή Αρχιτεκτόνων Μηχανικών, Πανεπιστήμιο Θεσσαλίας
Κείμενο από τους δημιουργούς


The thesis project by Ioulianos Karantzios and Michalakis Ilias focuses on the design of a multifunctional rural complex near the settlement of Emporios, on the island of Nisyros. Grounded in the principles of circular economy and localized production, the project aims to revive traditional local agricultural practices while promoting community revitalization and self-sufficiency.

The project is set in Emporios, a semi-mountainous village on the island of Nisyros, Greece.

It aims to revive traditional agricultural practices shaped by the island’s volcanic landscape and rich cultural heritage.

Drawing upon the historic stone terraces and fertile volcanic soil, it combines cultivation, processing, and visitor engagement. The aim is to promote circular economy, cultural heritage, and environmental education.

The proposal concerns the creation of a multifunctional agricultural complex that integrates spaces for the production, processing, and storage of local products, an educational workshop for sustainable farming practices, and community gathering areas.

At the heart of the complex is a wine production unit, which processes grapes cultivated in surrounding vineyards. Additional widespread local crops are also incorporated, shaping complementary structures across the complex for habitation, gathering, and engagement with the land.

A key aspect of our approach is the concept of a circular economy, seen as a sustainable strategy for revitalizing local communities.

We sought to explore this within the specific context and conditions defined by the land itself, especially in terms of the rural development potential that the area’s soil offers.

Proximity to Emporios allows for the creation of a cluster that maintains a dynamic relationship with the village, serving as a catalyst for opportunities involving both the local community and external visitors.

The aim was not to create an isolated, self-sufficient facility, but rather a plan that actively engages with and complements the settlement it belongs to.

Therefore, we consider opportunities for housing and access to the village’s infrastructure, reinforcing them through targeted interventions.

On an economic level, local producers can participate in the wine production process, boosting the region’s economic resilience and contributing to job creation.

The ultimate goal is to improve the village’s self-sufficiency, which has been declining over time, in a manner that ensures environmental sustainability. This would allow the area to remain active beyond the summer months, while strengthening the island’s infrastructure as a whole.

By studying local architectural practices and related literature, we analyzed elements such as traditional roofs and stonework to incorporate them into the future design.

We also drew from examples within the village, where the use of arches (dating back to the Byzantine era), accessible flat roofs, and the interaction between stone and wood are prominent features.

The scale of the intervention has been carefully considered to minimize its environmental footprint. We determined that a strategy based on smaller, focused interventions would likely be more effective.

Overall, the design encourages outdoor living and interaction with the environment, the landscape, and the land—not just of the surrounding area or village, but of the entire island.

Facts & Credits
Project title Combinations of agricultural activity and experiential living practices
Type Design Thesis
Students Ioulianos Karantzios, Michalakis Ilias
Supervisor Iordanis Chatzistylis
Presentation Date February 2025
University School of Architecture, University of Thessaly

Text by the authors


RELATED ARTICLES