Spatial elements acting as theatrical backdrops in Caffè Nazionale in Arzignano | by AMAA

The Caffè Nazionale, designed by AMAA, embraces the city: the restoration of this historic venue in Arzignano, Northern Italy, is a multifaceted project that draws upon existing elements and memories to create a vibrant, living palimpsest, by establishing a direct relationship with the city of Arzignano, Italy and its public spaces.

PHOTO: MIKAEL OLSSON, COURTESY OF AMAA

The historical traces, with which the project engages in a deeply creative dialogue, generate a layered depth that AMAA has emphasized through a series of spatial elements acting as theatrical backdrops.

PHOTO: MIKAEL OLSSON, COURTESY OF AMAA
PHOTO: MIKAEL OLSSON, COURTESY OF AMAA

The studio, founded by Marcello Galiotto and Alessandra Rampazzo, envisioned an intense, collaborative intervention, with artist partnerships culminating in an open and multifaceted creation. Through the colonnade of the 19th- century City Hall, the public dimension of the square flows seamlessly into that of the new Caffè Nazionale.

PHOTO: MIKAEL OLSSON, COURTESY OF AMAA
PHOTO: SIMONE BOSSI, COURTESY OF AMAA

Within this space, the main hall, a vibrant mosaic of fragments of memory and original spatial devices, offers glimpses of the serene natural setting of the small inner courtyard.

PHOTO: MIKAEL OLSSON, COURTESY OF AMAA

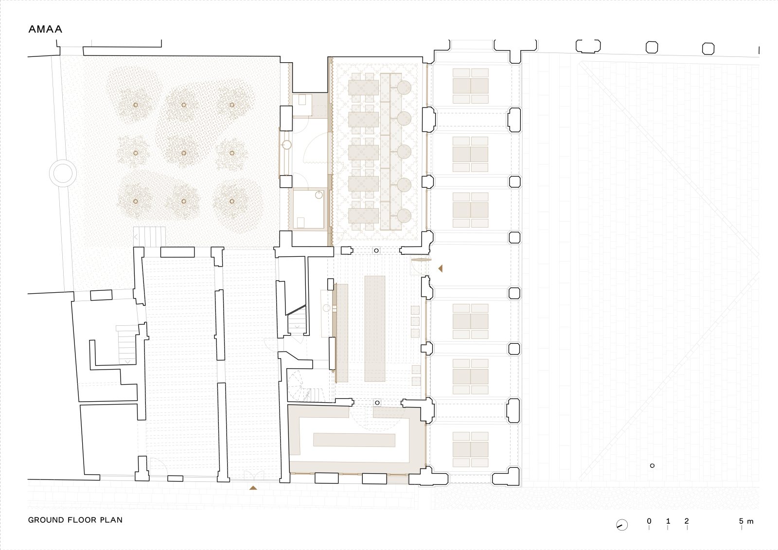
This marks the first in a series of design strategies employed by AMAA in the restoration of the historic Caffè Nazionale in Arzignano, Northern Italy. A demanding and complex project, it has been carried out by the studio founded by Marcello Galiotto and Alessandra Rampazzo in a city that already hosts some of their most significant works. Along an ideal axis that traverses the entire project, the space seamlessly connects interior and exterior, highlighting the concept of layered memories, urban moments, and the interplay of ancient and contemporary materials.

The design orchestrates a sequence of spaces, reminiscent of theatrical stages, establishing a visual dialogue between the square, the colonnade, and the interior hall.

PHOTO: MIKAEL OLSSON, COURTESY OF AMAA
PHOTO: MIKAEL OLSSON, COURTESY OF AMAA

Here, original scenographic elements guide the eye toward the vestibule and, ultimately, the inner courtyard, envisioned as a birch garden. This courtyard provides an open, perspective view that embraces the surrounding natural landscape. The entrance to the bar is located at the center of the colonnaded wing of the palazzo, designed by architect Antonio Caregaro Negrin and built in the late 19th century. In AMAA’s design, the entrance door is the only opaque element facing the square. Crafted from burnished iron with a pivot mechanism, the door features a distinctive diamond-shaped design, visible from both inside and outside.

PHOTO: SIMONE BOSSI, COURTESY OF AMAA
PHOTO: SIMONE BOSSI, COURTESY OF AMAA

The handle, made of green serpentine marble from Valmalenco, was custom-designed by the artist Nero/Alessandro Neretti. To the left of the entrance door, positioned at the corner and at the start of the colonnade, lies the open-concept kitchen, fully visible to patrons. A staircase located between the bar and the kitchen leads to the upper dining room, set up as a restaurant.

PHOTO: MIKAEL OLSSON, COURTESY OF AMAA

On the right, you enter the main room, where fragments of various historical interventions coexist.

This space centers around the theme of theatrical backdrops, amplifying the sense of transition already suggested by the entrance.

Historical traces evoke an almost boundless depth, which the design enhances through the placement of a wall conceived as a kind of curtain.

PHOTO: MIKAEL OLSSON, COURTESY OF AMAA
PHOTO: MIKAEL OLSSON, COURTESY OF AMAA

This feature, crafted from folded and perforated stainless steel sheets, creates an interplay of transparency, offering an almost illusory glimpse of the grand arches facing the inner courtyard. Temporary posters by artist Stefan Marx, pasted and illuminated behind the pleated metal wall, evoke the theatrical posters of the Belle Époque and seamlessly integrate into the room’s layered narrative and scenic artifice.

PHOTO: MIKAEL OLSSON, COURTESY OF AMAA
PHOTO: MIKAEL OLSSON, COURTESY OF AMAA
PHOTO: RORY GARDINER, COURTESY OF AMAA
PHOTO: RORY GARDINER, COURTESY OF AMAA

A refined polychrome mosaic floor is contrasted by an imposing coffered ceiling made of multilayered wood, designed to meet both lighting and acoustic needs. Adjacent to the main room, behind the perforated steel wall with its large pivot door, lies a vestibule—a space of transition and mediation.

This area establishes an unexpected connection between the interior of the café and the broader, almost dreamlike world of the birch garden, a space that feels both physical and metaphysical.

PHOTO: MIKAEL OLSSON, COURTESY OF AMAA

The Caffè Nazionale is furnished with an integrated system of wooden tables and benches, custom-designed by AMAA in collaboration with Nero/ Alessandro Neretti and meticulously developed through full-scale mockups. In the main room, the seating arranged in the more interior areas is paired with rectangular tables, larger and better suited for dining. In contrast, smaller round tables are positioned closer to the square and extend into the outdoor space in front of the bar. The seating design draws inspiration from the benches of the New York subway and the work of Donald Judd.

The contrast between the recovered historical elements and the interventions that redesign and reorganize the space is evident throughout Caffè Nazionale, as are the deliberately unfinished segments that seem to reflect an openness in the project’s concept.

In these exposed fragments, the temporality of the construction process feels almost suspended. A year and a half of work resulted in the creation of a delicate and complex piece through which AMAA has breathed new life into a significant part of Arzignano’s history.

PHOTO: SIMONE BOSSI, COURTESY OF AMAA

The project engages with the themes that the studio has been refining in its research: a space dense with layers of meaning, as layered as the memory of the place itself.

The restoration of the decorated surfaces, uncovered beneath the technical partition walls added over decades of previous activity, aligns with the intention to preserve these elements in their honest, worn, and sometimes compromised state. The consolidation acknowledges the passage of time, enriching the rooms with a raw and imperfect materiality that speaks to the idea of the unfinished and the continuous evolution of each element.

PHOTO: MIKAEL OLSSON, COURTESY OF AMAA

Similarly, the new functional partitions for services and technical rooms adhere to the same intention: to reveal the construction technique and its components, as well as the process of realization, frozen at the point where each element remains recognizable and does not simulate another meaning.

PHOTO: MIKAEL OLSSON, COURTESY OF AMAA

Caffè Nazionale marks an important step in the development of AMAA’s research and experimentation in the design process, which includes an innovative use of imagery.

These images are not seen as a final product but as a means to document the construction process as it unfolds. In this sense, they integrate the studio’s ongoing work with the physical model. It represents a further evolution of their research on the theme of the unfinished, as well as the development of an original process that the studio is advancing with Virna Rossetto on the use of imagery in the various phases of a project.

PHOTO: SIMONE BOSSI, COURTESY OF AMAA
PHOTO: SIMONE BOSSI, COURTESY OF AMAA
PHOTO: SIMONE BOSSI, COURTESY OF AMAA

“The Caffè Nazionale project is a living work that embraces existing materials and their stories to create a new architecture,” stated the architects of AMAA.

“The initial delicate intervention involved clearing the space of the incongruous additions and layers that had accumulated over the decades, obscuring its historical essence. This process of uncovering was a true act of discovery, guiding the subsequent phases of the project.”

Facts & Credits 
Project title Caffè Nazionale
Typology Interior, Renovation
Location Arzignano (Vicenza), Italy
Client MAM Srl (Marco Mettifogo – Andrea Poli – Marcello Galiotto), Municipality of Arzignano
Architecture AMAA Collaborative Architecture Office For Research And Development
Project architect – Partner in Charge Marcello Galiotto
Project management Francesca Fasiol
Design team Marcello Galiotto, Francesca Fasiol, Eleonora Folli, Virna Rossetto
Models Mara Tirapelle
Consultants Structural engineering: Simone Michelotti, Fire safety engineering and Electrical engineering: Nicola Rosa, Mechanical engineering: Riccardo D’Alessandro Safety coordinator: Simone Michelotti Acoustic planning: Luca Dal Cengio
Collaboration Identity and graphic design: Studio MUT, Graphic artist: Stefan Marx, Artist and mock-up maker: Nero / Alessandro Neretti, Dress code and details: Ottavia Mettifogo, Communication agency: BlaaUniverse
Site supervision AMAA – Marcello Galiotto, Alessandra Rampazzo, Francesca Fasiol
Contractor Moredile of Morabito Massimo Casillo Srl
Design June 2023 – October 2024
Construction January – October 2024
Opening November 2024
Total surface area 565 square meters
Photography Simone Bossi, Rory Gardiner, Mikael Olsson
Text provided by the architects 


About AMAA

Founded in 2012 by Marcello Galiotto and Alessandra Rampazzo in Venice, AMAA emerged as the culmination of their collaboration during their university studies. The studio leverages the personal sensitivity developed through architectural experience, gained alongside Massimo Carmassi and Sou Fujimoto. Their professional practice is supported by continuous research, bridging the academic world: both graduated in 2010 from the Iuav University of Venice, where they later each earned a PhD—Galiotto in Architectural Composition (2015) and Rampazzo in Architectural History (2017).

They have also held teaching positions at the University of Pennsylvania, Stuttgart’s HFT Hochschule für Technik, and the University of Genoa, enriching their extensive academic experience. Additionally, they participate in seminars and conferences at leading universities in Italy and abroad. Beyond the Venice office, Marcello Galiotto and Alessandra Rampazzo established AMAA Workshop in Arzignano, in the province of Vicenza, in 2015, and a pop-up office in New York in 2024.

The studio has gained national and international recognition. Among its numerous ongoing private and public projects, notable achievements include winning first prize in the design competition for the new “Giuseppe Verdi” Municipal Theatre in Terni, currently under construction, as well as the Schools in Mezzocorona and Campoformido as part of the major competition for 212 “Futura” schools initiated by the Ministry of Education in Italy. Completed works include the restoration of the Convento Santa Croce in Venice, which earned an honorable mention at the 2015 Barbara Cappochin Biennale Award (regional section), and the adaptive reuse of The [B] Zone, which was selected among the top 10 regional works at the 2017 Barbara Cappochin Biennale Award. In 2020, the “Final Outcome” project received first prize at the Young Italian Architects competition. AMAA also participated in the “10 Italian Architectures” exhibition curated by Matteo Ghidoni, Enrico Molteni, and Vittorio Pizzigoni at Triennale Milano (December 22, 2022 – January 29, 2023).

In 2023 AMAA was invited to participate in the 18th International Architecture Exhibition of La Biennale di Venezia curated by Lesley Lokko. In 2022, to mark its decade-long journey, the studio was featured in the book Seemingly Simple, published by Libria, with images, drawings, and words by Natalie Donat-Cattin and a graphic design by Lorenzo Mason Studio. During their participation in the Venice Architecture Biennale in 2023, they published the book “ON TIME, MEMORY, METHODS AND CRAFT” (Libria), curated by Alessandra Rampazzo and Marcello Galiotto. The March 2024 issue of the Portuguese magazine AMAG (number 34) is dedicated to the work of AMAA and two other emerging Italian studios (Associates Architecture and Studio Wok), marking the first issue to highlight the work of Italian architects.


RELATED ARTICLES