A29 Unstable project concerns the transformation of a flat located in a residential building in the city of Mataró. The architectural proposal by MACH unifies the spaces and miximises natural light by freeing up the façade areas and by centralising a core of services and storage in the middle of the open floor plan.
Between the hill of Cerdanyola and Verador beach, the city of Mataró is shaped by the traces of its historic streams and torrents.
Its streets are home to early 20th-century residential buildings, defined by their self-built nature and ongoing transformations, coexisting with an industrial fabric from the same era.
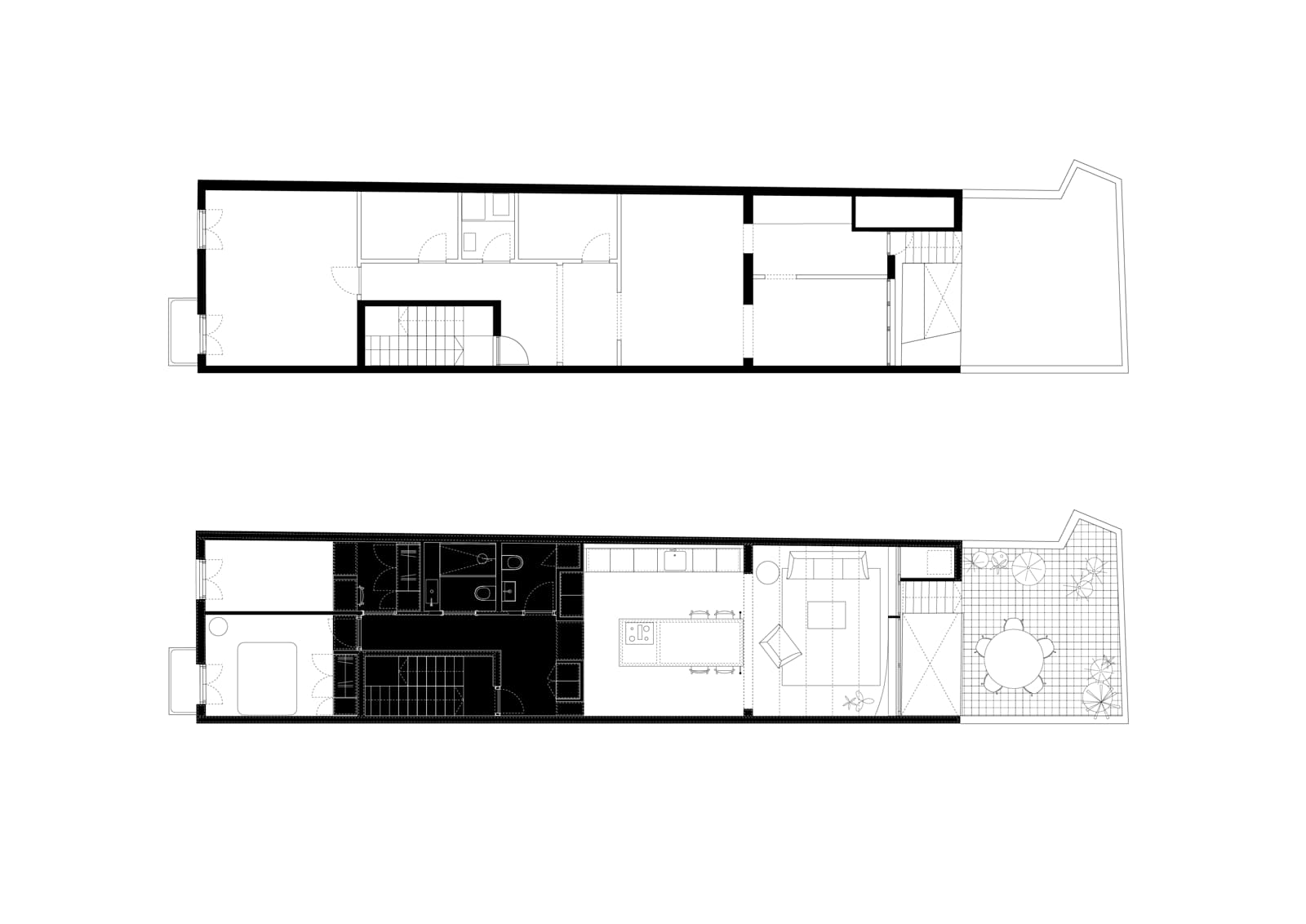
The A29 studio represents a new transformation of a flat located in a characteristic building of the area, nestled between party walls and marked by elongated proportions. The original layout was highly fragmented, a result of multiple extensions and renovations, featuring small rooms with limited natural light and ventilation.
The design proposal aims to reorganise and optimise the spaces to maximise natural light.
This is achieved by centralising a core of services and storage in the middle of the floor plan, freeing up the façade areas to accommodate the bedrooms, dining room, living room, and kitchen.
A key intervention involves demolishing the wall of the former façade that separated the living room from the kitchen and dining area, along with extending the old gallery.
This approach helps unify the space, creating an open and luminous environment. At the heart of this space, a suspended concrete structure is introduced. This distinctive piece acts as the sole integrated furniture element, taking centre stage and fostering a sense of gathering and interaction.
Finally, the studio, located at the rear of the plot with independent external access, is visually and spatially connected to the main flat through a newly added skylight and a patio clad in glazed ceramic, enhancing the sense of cohesion and light throughout the project.
Drawings



Facts & Credits
Title A29 Unstable
Typology Interior, Apartment
Location Mataró (Barcelona), Catalonia, Spain
Status Completed, 2024
Architecture MACH
Participants WINDMILL Engineering (Josep Ramón Sole) & DUO Barcelona Builders (Lluis Bosch y Sergio Ramos)
Photography Del Rio Bani
Text by the authors
READ ALSO: WAT? OBJECT - Gadget Shop in Athens, Greece | by A&O ARCHITECTS







