The proposed daycare facility by Constantine Bouras Studio, defines a delicate balance between openness and protection through the exterior façades which are treated in deployable perforated metal mesh panels, forming a “second skin” for the building.
This architectural gesture veils the building in a soft layer of semi-transparency and operates as a protective filter, providing shade and privacy, while preserving a strong sense of openness to the surrounding neighborhood.
At an urban scale, the building operates both as a subtle boundary and a threshold between a pedestrian street and a vehicular street.
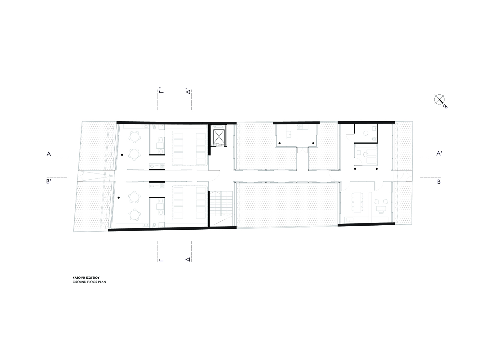
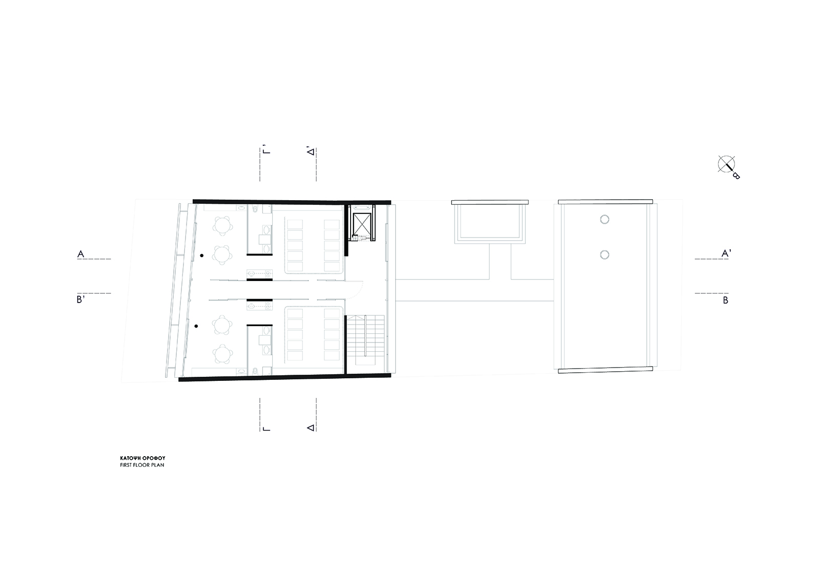
The project is conceived as three seperate concrete volumes, which host the daycare areas, the administration and the kitchen, and are all seamlessly linked by a light-structure metal corridor which acts as a spine, offering visual continuity across the complex and ensuring a fluid circulation between all spaces. This volume arrangement in the long and very narrow plot optimizes natural light exposure and creates protected courtyards.
The interior spaces are designed with warmth in order to maintain the essential intimacy for this kind of program. Natural light permeates through the perforated panels, creating ever-shifting patterns and animating the space. When the façade panels are retracted, the view of the outdoor spaces is framed. The ground floor activity areas open directly onto the garden, extending space beyond the building envelope. Modular furniture and vibrant colors create an atmosphere that encourages creativity.
Overall, the architectural design composes a daycare facility which is a safe and engaging early-age space, where children and their caretakers interact within an environment that feels playful yet structured, protective yet open, with visual buffers and connections to the outside world.
Facts & Credits
Project title Woven in transparency
Typology Daycare Facility
Location Colonus, Athens
Architecture Constantine Bouras Studio
Render Constantine Bouras Studio
Text provided by the architects
Η προτεινόμενη δομή προσχολικής αγωγής από το γραφείο Constantine Bouras Studio, επιτυγχάνει μια λεπτή ισορροπία ανάμεσα στο ανοιχτό και το προστατευμένο, μέσα από τις εξωτερικές όψεις που διαμορφώνονται με κινούμενα διάτρητα μεταλλικά πανέλα, σχηματίζοντας μία δεύτερη επιδερμίδα για το κτήριο.
Η αρχιτεκτονική αυτή χειρονομία περιβάλλει το κτίριο με ένα ελαφρύ στρώμα ημιδιαφάνειας και λειτουργεί ως προστατευτικό φίλτρο, προσφέροντας σκίαση και ιδιωτικότητα, ενώ ταυτόχρονα διατηρεί μια έντονη αίσθηση εξωστρέφειας προς τη γειτονιά.
Σε αστική κλίμακα, το κτίριο δρα ταυτόχρονα ως διακριτικό όριο και ως κατώφλι ανάμεσα σε έναν πεζόδρομο και έναν δρόμο με κίνηση οχημάτων.
Το κτηριακό σύνολο οργανώνεται σε τρεις ανεξάρτητους όγκους από σκυρόδεμα, οι οποίοι στεγάζουν αντίστοιχα τους χώρους φιλοξενίας των παιδιών, τη διοίκηση και την κουζίνα. Οι όγκοι συνδέονται αρμονικά μέσω ενός ελαφρού μεταλλικού διαδρόμου, που λειτουργεί ως ραχοκοκαλιά, προσφέροντας οπτική συνέχεια και εξασφαλίζοντας ομαλή κυκλοφορία μεταξύ όλων των χώρων.
Η διάταξη αυτή, προσαρμοσμένη στο μακρόστενο και ιδιαίτερα στενό οικόπεδο, βελτιστοποιεί τον φυσικό φωτισμό και διαμορφώνει προστατευμένες αυλές.
Οι εσωτερικοί χώροι σχεδιάζονται ώστε να διατηρούν την απαραίτητη οικειότητα που απαιτείται για ένα τέτοιο πρόγραμμα. Το φυσικό φως διαπερνά τα διάτρητα πανέλα, δημιουργώντας συνεχώς μεταβαλλόμενα μοτίβα και ζωντανεύοντας το χώρο. Όταν τα πανέλα της όψης σύρονται, η θέα προς τους εξωτερικούς χώρους πλαισιώνεται. Οι αίθουσες δραστηριοτήτων του ισογείου ανοίγουν απευθείας στον κήπο, επεκτείνοντας τον χώρο πέρα από το περίβλημα του κτηρίου. Η χρήση αρθρωτής επίπλωσης και έντονων χρωμάτων συνθέτει μια ατμόσφαιρα που ενθαρρύνει τη δημιουργικότητα.
Συνολικά, η αρχιτεκτονική σύνθεση αποδίδει μια δομή προσχολικής αγωγής που προσφέρει ασφάλεια και ερεθίσματα, ένα χώρο πρώιμης μάθησης όπου τα παιδιά και οι παιδαγωγοί τους αλληλεπιδρούν σε ένα περιβάλλον που είναι ταυτόχρονα ευέλικτο αλλα δομημένο, προστατευτικό αλλά ανοιχτό, με οπτικά φίλτρα και συνδέσεις με τον έξω κόσμο.
Στοιχεία έργου
Τίτλος έργου Υφασμένο με διαφάνεια
Τυπολογία Δομή Προσχολικής Αγωγής
Τοποθεσία Κολωνός, Αθήνα
Αρχιτεκτονική μελέτη Constantine Bouras Studio
Φωτορεαλισμός Constantine Bouras Studio
Kείμενο από τους δημιουργούς
READ ALSO: Plywood House: local manufacturing in a raw interpretation | by Feina Studio











