Extensions to The Norwegian School of Economics – a new building that will unite the entire School around the main building.

Link Arkitektur, Sweco engineers and Smedsvik Landskapsarkitekter won the tender for the architectural and engineering planning for a new building in 2006, and began planning the new building.

The site is spectacular, on the shores of Bergen City. The existing campus rising up from the hills by the sea. The perfect site for an architect to express himself!

It soon became very clear that this was a complex task with many planning restrictions. The original high-rise building is registered and protected. Τhe new building itself was prohibited, from either competing visually with it or disturbing the perception of the landscape.

Our solution has been to create a “hidden gem”. The building is placed between the rocky formations and made as compact and low as possible.

The material of the facades is glass, to reflect the landscape and light, that changes during the day and through the seasons. It functions as a gigantic reflecting canvas that is ever changing. The rhythm of the glass aims to reflect and emphasize the expression of the listed buildings.
Later in the process, Link Arkitektur won the tender for the interior work. This gave us the opportunity to create an overall concept for the building. Giving it a youthful, bold, elegant and yet simple expression.

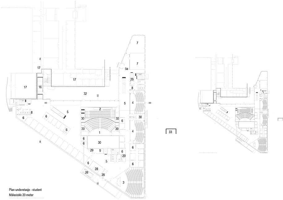
The layout of the building is compact and logical. In the student areas there is a core of large lecturehalls with study areas around towards the light. The faculty areas on the two top floors have offices with spectacular views and plenty of light.

The engineers from Sweco have worked closely with the architect through the total design process and achieved creative solutions to keep everything flexible and environmentally friendly.


The Landscape Architect, Smedsvig Landskapsarkitekter, has taken the idea of simplicity into their design and strengthened the concept with a beautiful and durable solution.

The project recived an honorable mention in Bergen Municipalities architecture and Urban Design award 2014.

Text by the architects
Facts & Credits:
Project: The Norwegian School of Economics
Architects: Link Arkitektur
Project Engineers: Sweco
Landscape Architects: Smedsvig Landskapsarkitekter
Art Consultants for Koro: Jeremy Welsh, Harald Fenn
Artists: Anders Sletvold Moe, Kurt Johannesen, Bjørn Kowalski Hansen, Lello//Arnell
Photography: Hundven-Clements
READ ALSO: House Z22 and Warehouse F88 by Gus Wüstemann Architects
