KN Group transformed a previously office space to a holiday apartment. Maja apartment, is located in Athens, at a central neighbourhood with unique view towards the Acropolis. The architects wanted to preserve the character of the modernist block of flats and added some greek and ottoman features combined with contemporary furniture.
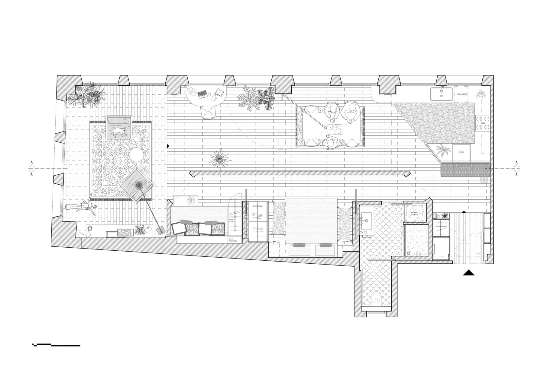
The main gesture, was the separation of the interior to the full of light public spaces from the quiet private areas. The apartment is furnished by a series of custom-designed furnishing constructed by local manufacturers.
-text by the architects
Maja was transformed from an office to a holiday apartment. It is sited at a modernist block of flats in Athens city center, Greece, with a unique view towards the Acropolis and a variety of historical buildings such as the Benizelos mansion, under the Athenian sky.
These characteristics inspired us to bring together some of the most important movements in architecture and arts present today in Athens, in order to sum up the culture of the city inside the apartment in the heart of it.
The floor plan consists of a master bedroom, a small second bedroom and comfortable lounge area dressed with a series of custom-designed furnishing constructed by local manufacturers based on the needs of the guests.
The main idea was a creation of a divider/partition in the middle of the apartment smartly separating the full of light public spaces from the quiet private areas.
At the entrance, a detailed designed wooden Box is constructed, referring to the 30’s “polikatikia” luxurious entrances. In the kitchen, the divider is of vital significance giving value to the old houses’ glass doors through the precise use of various type of glass parts, while the furniture with contemporary design, blue color and the marble finishing combine some of the basic Greek elements.
Arches and bricks on the central divider correlate the apartment with the Ottoman era building across the street. In the second bedroom we created a functional built-in furniture with bed for the sleep zone, storage space and a small library referring to the traditional “sophas”. Old fashioned cement tiles in modern shapes were selected for the kitchen and bathroom floor.
Attention was paid for the overall color and aesthetic pallet to enhance the Athenian experience.
Last but not least, materials and colors create a modern main lounge zone and work as a frame that highlights the unique view creating a welcoming and uplifting feeling for the guests.
Credits & Details
Project: Maja
Location: Athens
Typology: Apartment renovation
Design Team: Konstantinos Stratantonakis, Ioanna Alexi, Dimitris Kollaros, Stamos Michael, Ioanna Chortogianni
Photographer: Giorgos Sfakianakis
Το γραφείο ΚΝ Group _ Design that Works ανέλαβε τη μετατροπή ενός γραφειακού χώρου σε διαμέρισμα διακοπών. Το 97τ.μ. διαμέρισμα “Maja”, βρίσκεται στην Αθήνα, σε μια κεντρική γειτονιά με μοναδική θέα προς την Ακρόπολη. Οι αρχιτέκτονες ήθελαν να διατηρήσουν το χαρακτήρα της πολυκατοικίας στην οποία βρίσκεται το διαμέρισμα, και να το συνδυάσουν με ελληνικά και οθωμανικά στοιχεία, ενώ η κατοικία επιπλώνεται από μια σειρά πιο σύγχρονων, custom-made επίπλων από τοπικούς τεχνίτες. Βασική σχεδιαστική χειρονομία αποτελεί ο διαχωρισμός του εσωτερικού σε κοινόχρηστους, φωτεινούς χώρους και τους πιο ήσυχους, ιδιωτικούς.
-text by the architects
Το Maja αφορά ένα διαμέρισμα διακοπών 97m2 στο κέντρο της Αθήνας. Σε ένα γωνιακό συγκρότημα, το οποίο στέγαζε μέχρι πρότινος γραφειακούς χώρους, κάτω από τον βράχο της Ακρόπολης και απέναντι από το αρχοντικό του Μπενιζέλου, διαμορφώνεται, σε μία ελεύθερη κάτοψη, μια μικρή κατοικία διακοπών.
Στις δύο από τις τέσσερις πλευρές του διαμερίσματος επικρατούν μεγάλα παράθυρα, τα οποία λειτουργούν ως κάδρα που αναδεικνύουν τη κτιριακή πολυμορφία της ιστορικής διαστρωμάτωσης της πόλης των Αθηνών.
Όλα αυτά τα διαφορετικά στοιχεία που εντοπίζονται σε όλο τον περιβάλλοντα χώρο του διαμερίσματος αποτέλεσαν πηγή έμπνευσης και αναπαραγωγής για εμάς. Βασιζόμενοι στα χαρακτηριστικά της κουλτούρας που συνθέτουν την πόλη, τόσο στο χώρο όσο και στο χρόνο, δομήσαμε το εσωτερικό του διαμερίσματος στην καρδιά αυτής.
Η κάτοψη αποτελείται από έναν ανοιχτό χώρο κουζίνας – τραπεζαρίας, ο οποίος διαχωρίζεται από το σαλόνι με υπερυψωμένο δάπεδο, και δύο κλειστούς χώρους διανυκτέρευσης με λουτρό. Επιθυμία μας ήταν η δημιουργία των ελάχιστων δυνατών χωρισμάτων στον χώρο. Αποτέλεσμα ο διαχωρισμός της κάτοψης στη μέση μέσω ενός κεντρικού διαχωριστικού το οποίο απομονώνει τους κοινόχρηστους χώρους από τους ιδιωτικούς.
Στην είσοδο, εμπνευσμένοι από τις πολυτελείς εισόδους της «πολυκατοικίας» της δεκαετίας του ‘30, μια ξύλινη κατασκευή με μαρμάρινο δάπεδο υποδέχεται τον επισκέπτη.
Το διαχωριστικό της κουζίνας συντίθεται από μια μεταλλική κατασκευή με τζάμια από παλιές γυάλινες πόρτες σπιτιών προσδίδοντας κάποια ιδιωτικότητα στο χώρο. Ο σχεδιασμός τα χρώματα αλλά και τα υλικά στην κουζίνα συνδυάζονται με στόχο την δημιουργία μιας μοντέρνας κουζίνας με την αίσθηση της παλαιάς Αθήνας.
Το κεντρικό διαχωριστικό που τρέχει κατά μήκος του διαμερίσματος κοσμούν αψίδες και κλωστρά σε διάλογο με το κτίριο της Οθωμανικής εποχής απέναντι.
Στη δεύτερη κρεβατοκάμαρα δημιουργείται μια λειτουργική, χτιστή κατασκευή με κρεβάτι για χώρο ύπνου, αποθηκευτικό χώρο και μια μικρή βιβλιοθήκη, αναφορά στον παραδοσιακό «σοφά».
Όλες οι κατασκευές των επίπλων καθώς και ο μεγαλύτερος αριθμός των υλικών προήλθαν από εγχώριους τεχνίτες και κατασκευαστές. Παλαιά τσιμεντοπλακάκια και λεπτομέρειες μάρμαρου επιλέχθηκαν για το πάτωμα της κουζίνας και του μπάνιου.
Ιδιαίτερη προσοχή δόθηκε στην συνολική αισθητική παλέτα των χώρων με στόχο την ενίσχυση της Αθηναϊκής εμπειρίας και τη δημιουργία μιας ευχάριστης και φιλόξενης ατμόσφαιρας.
Στοιχεία έργου:
Έργο: Maja
Σχεδιασμός: ΚΝ Group _ Design that Works
Τυπολογία: Ανακαίνιση διαμερίσματος
Τοποθεσία: Αθήνα
Τμήμα Μελέτης: Κωνσταντίνος Στραταντωνάκης, Ιωάννα Αλέξη, Δήμητρης Κολλάρος, Στάμος Μιχαήλ, Ιωάννα Χορτογιάννη
Φωτογράφος: Γιώργος Σφακιανάκης
READ ALSO: Villa H – a residence in Kotroni Mani, designed by 3harchitects

















