ΘΕΡΙΝΟ ΕΡΓΑΣΤΗΡΙ ΣΥΛΛΟΓΟΥ ΑΡΧΙΤΕΚΤΟΝΩΝ ΚΥΠΡΟΥ
14-28 ΙΟΥΝΙΟΥ 2017 – ΛΕΥΚΩΣΙΑ, ΚΥΠΡΟΣ
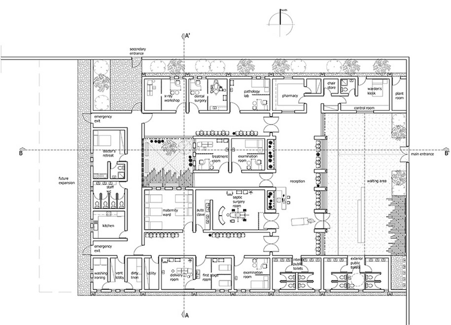
ΣΧΕΔΙΑΣΜΟΣ ΙΑΤΡΙΚΟΥ ΚΕΝΤΡΟΥ ΦΡΟΝΤΙΔΑΣ ΠΑΙΔΙΩΝ ΣΤΟ ΝΑΪΡΟΜΠΙ ΤΗΣ ΚΕΝΥΑΣ
Ο Σύλλογος Αρχιτεκτόνων Κύπρου με τη συνεργασία των Σχολών Αρχιτεκτονικής: Πανεπιστήμιο Κύπρου, Πανεπιστήμιο Λευκωσίας, Πανεπιστήμιο Frederick, Πανεπιστήμιο Νεάπολις Πάφος, Πανεπιστήμιο Πατρών και τη στήριξη των Εθελοντών Γιατρών Κύπρου, ολοκλήρωσαν με επιτυχία τις εργασίες του Θερινού Εργαστηρίου 2017.
Οι εργασίες του Εργαστηρίου πραγματοποιήθηκαν στις εγκαταστάσεις του Τμήματος Αρχιτεκτονικής Πανεπιστημίου Κύπρου και στην αίθουσα Δήμου Λευκωσίας «Ειρήνη», επί της οδού Λήδρας, Λευκωσία.
Με συλλογική προσπάθεια, με έντονη την ανθρωπιστική διάσταση, η ολοκλήρωση του σχεδιασμού αφορούσε τη δημιουργία ενός Ιατρικού Κέντρου (κέντρου υγείας) για να εξυπηρετεί παιδιά και εγκυμονούσες γυναίκες στη μεγαλύτερη παραγκούπολη της Κιμπέρα, στο Ναϊρόμπι της Κένυας.
Οι αρχιτεκτονικές προτάσεις μελετήθηκαν και χωροθετήθηκαν σε υφιστάμενο τεμάχιο ιδιοκτησίας της Μητρόπολης Κένυας στην περιοχή Woodley.
Οι Εθελοντές Γιατροί Κύπρου, που προτίθενται να αναλάβουν την κατασκευή και λειτουργία του Ιατρικού Κέντρου είχαν σημαντική συμβολή και ουσιαστικό ρόλο στη διοργάνωση και υλοποίηση του Εργαστηρίου.
Ο μεγάλος αριθμός συμμετοχής, από φοιτητές, νέους αρχιτέκτονες και Καθηγητές αρχιτεκτονικής, επέβαλαν μια ευέλικτη μεθοδολογία με δύο σταθερούς στόχους.
Ο πρώτος στόχος αφορούσε τον συμμετοχικό σχεδιασμό με ουσιαστική και συνεχή εμπλοκή του χρήστη σε όλες τις φάσεις της σύνθεσης.
Ο δεύτερος στόχος, τον ρεαλισμό και τη δυνατότητα υλοποίησης του έργου, σε περιοριστικές συνθήκες, ως προς τους πόρους και τις κατασκευαστικές δυνατότητες.
Μέσα από τη μεταφορά εμπειριών από προσκεκλημένους ομιλητές από Κύπρο, Ελλάδα και την Κένυα, οι συμμετέχοντες είχαν τη δυνατότητα να βοηθηθούν και να κατανοήσουν το κοινωνικό και πολιτισμικό πλαίσιο του Ναϊρόμπι και της παραγκούπολης, αλλά και την πρακτική και λειτουργική σημασία του σχεδιασμού του Ιατρικού Κέντρου, σε οριακές συνθήκες ένδειας και ανασφάλειας.
Με τη δημιουργία 12 ομάδων, οι συμμετέχοντες ξεκίνησαν την επεξεργασία των κεντρικών ιδεών με την κατεύθυνση να συνενωθούν στην πορεία μεταξύ τους, ανάλογα με τη συγγένεια των λύσεών τους και την προοπτική, ούτως ώστε να ολοκληρώσουν σε μικρότερο αριθμό ή ακόμα και σε μία λύση.
Στο τέλος, οι συμμετέχοντες παράχθηκαν σε 6 ομάδες με 6 αρχιτεκτονικές προτάσεις, οι οποίοι με την καθοδήγηση των Εθελοντών Γιατρών Κύπρου αντιλήφθηκαν πώς μετουσιώνονται χωρικά οι καθημερινές ανάγκες των Κενυατών.
Το φετινό Εργαστήρι ήταν ένα δύσκολο εγχείρημα και μπορεί να χαρακτηριστεί ως μάθημα ζωής καθώς οι συμμετέχοντες, πέραν της αρχιτεκτονικής δημιουργίας, βρέθηκαν αντιμέτωποι και με τον ανθρώπινο παράγοντα. Ήταν μια ρεαλιστική εφαρμογή θεωριών και θέσεων για τη συμμετοχικότητα και το ρόλο του χρήστη και της κοινωνίας στην αρχιτεκτονική παραγωγή και στη διαδικασία της αρχιτεκτονικής σύνθεσης.
Παράλληλα, σοβαρές παράμετροι όπως η ανασφάλεια, η εγκληματικότητα, οι κακές συνθήκες υγιεινής, ο υπερβολικά μεγάλος όγκος προσερχόμενων ασθενών, οι ακραίες καιρικές συνθήκες κατά την περίοδο βροχόπτωσης, αλλά και η δυνατότητα υλοποίησης των προτεινόμενων λύσεων, έκαναν τη συνθετική διαδικασία ακόμα πιο επίπονη.
Ο ενθουσιασμός και η αγάπη που υπέδειξαν οι συμμετέχοντες, αλλά και η προσμονή για την υλοποίηση του έργου στην Κένυα είναι αυτά που ο κάθε συμμετέχοντες παίρνει μαζί του με τη λήξη του Εργαστηρίου.
Η συνέχεια θα δοθεί στο Woodley το 2018 για την υλοποίηση της αρχιτεκτονικής μελέτης, όπως αυτή επιλέχθηκε μετά από αξιολόγηση των 6 προτάσεων από τους Εθελοντές Γιατρούς Κύπρου.
Επιλεχθείσα πρόταση I-kio-ti-ta – Οικειότητα:
Ο τίτλος της επιλεχθείσας πρότασης όπως αυτή δόθηκε από την ομάδα εργασίας είναι “I-kio-ti-ta” (Οικειότητα) με το Kio-ta να σημαίνει φωλιά στα Σουαχίλι, μια λέξη- κεντρική ιδέα της ομάδας που εργάστηκε για τη συγκεκριμένη αρχιτεκτονική πρόταση.
Πρόταση Ομάδας 1:
Πρόταση Ομάδας 2:
Πρόταση Ομάδας 3:
Πρόταση Ομάδας 4:
Πρόταση Ομάδας 6:
Συμμετέχοντες Διδάσκοντες (Επιστημονική – Οργανωτική Ομάδα):
Αντωνιάδου Ελεωνόρα (Πανεπιστήμιο Frederick)
Αντωνίου Δημήτρης (Πανεπιστήμιο Πατρών)
Δόβα Ευανθία (Πανεπιστήμιο Νεάπολις)
Θραβάλου Σταυρούλα (Πανεπιστήμιο Κύπρου)
Ιωάννου Bύρων (Πανεπιστήμιο Frederick)
Καλνής Γρηγόρης (Πανεπιστήμιο, Frederick)
Κλεάνθους Άδωνις (Πανεπιστήμιο Λευκωσίας)
Κυριαζής Γιώργος (Πανεπιστήμιο Κύπρου)
Κυριακίδης Ανδρέας (Πανεπιστήμιο Κύπρου)
Μενοίκου Μαρκέλλα (Πανεπιστήμιο Λευκωσίας)
Μιχαήλ Αιμίλιος (Πανεπιστήμιο Κύπρου)
Οικονομίδης Δημήτρης (Πανεπιστήμιο Frederick)
Παλατέ Σάβια (Πανεπιστήμιο Κύπρου)
Παναγιωτίδης Χρίστος (Σύλλογος Αρχιτεκτόνων Κύπρου)
Πάρπα Δέσποινα (Πανεπιστήμιο Κύπρου)
Σαββίδης Ανδρέας (Πανεπιστήμιο Κύπρου)
Σολωμού Χάρης (Σύλλογος Αρχιτεκτόνων Κύπρου / Πανεπιστήμιο Frederick)
Swiny Alessandra (Πανεπιστήμιο Λευκωσίας)
Χατζηχρίστου Γιώργος (Πανεπιστήμιο Λευκωσίας)
Χατζηχρίστος Χρήστος (Πανεπιστήμιο Κύπρου)
Συμμετέχοντες νέοι Αρχιτέκτονες:
Τάκη Αναστασία, Αγαθοκλέους Λουκία, Αναστασίου Σάββας, Βοσκού Δήμητρα, Γαλακτίου Κατερίνα, Δημητρίου Χριστόδουλος, Κάννα Καρολίνα, Κερασοβίτη Κωνσταντίνα, Κωνσταντή Έλενα, Κυρισάββα Μαρία, Λέκου Αικατερίνη, Μαγνήτη Φωτεινή, Μακεδόνα Έμιλυ, Νεοπτόλεμου Κυριάκος, Παπασωζομένου Γεωργία, Πετρουλάκη Ροδάνθη, Πλάτωνος Παυλίνα, Προδρόμου Αναστασία, Σιμιλλίδου Σαββίνα, Τριχά Ειρήνη, Χατζηκωστή Ρουμπίνη
Συμμετέχοντες Φοιτητές Αρχιτεκτονικής:
Αθανασίου Δέσποινα, Αναστασιάδη Ερμιόνη, Αναστασίου Λουίζα, Ανδρέου Κατερίνα, Αντωνίου Πάολα, Αποστόλου Απόστολος, Βενιζέλου Ευαγγελία, Γαλανού Χριστίνα, Γερογιαννάκη Μαρία, Γεωργίαδη Ναστασία, Γιάλλουρου Μαρίλια, Γιαννακόπουλος Κύρκος-Παύλος, Γιαννακού Μαρία, Ευαγγέλου Χριστίνα, Ζέρβου Ζαχαρένια, Θεοφάνους Άντρη, Ιωαννίδη Άντρια, Καραμανής Στέφανος, Κλειδαρά Ειρήνη, Κυριακοπούλου Παναγιώτα, Κυριζής Νίκος, Κωνσταντίνου Ανδρέας, Λεριού Μαργαρίτα, Λυκούδης Φιλοποίμης, Μάη Μαρίνα, Μπούρα Μαριάννα, Νικολάου Χριστίνα, Ξάνθου Ξένια, Ξενοφώντος Ελένη, Παπαϊωάννου Ανδρεανή, Παπάλλου Ερασμία, Παπασωτηρίου Βασιλική, Παύλου Κατερίνα, Πάυλου Μαρία, Παχουλλαρά Γεωργία, Περιβολάρης Κωνσταντίνος, Πολυβίου Παύλος, Σαββίδης Αγαμέμνων, Σπυράκος Χριστόφορος, Σταυρινίδου Άνδρεα, Στυλιανού Άννα-Μαρία, Τζιούρρου Παναγιώτα, Τόσκας Φίλιππος, Τσαγγάρη Μαριάννα, Φαρμάκης Στέφανος, Χαριλάου Άντρια, Χατζηνικόλα Χαρά, Χατζηπετρή Ιωάννα, Χρυσοστόμου Αντιγόνη, Ψαράς Μιχάλης, Ψωμά Αναστασία
























