Η σειρά ‘Σύγχρονες Ιστορίες Οικιακότητας ή ΚατΟΙΚΕΙΝ’, σε επιμέλεια της πλατφόρμας Archt. για το Archisearch, διερευνά διαφορετικές ερμηνείες κι εκδοχές της έννοιας σπίτι σε ανοιχτό διάλογο με σύγχρονες αρχιτεκτονικές προσεγγίσεις στο πεδίο της κατοικίας.
Στο 13ο επεισόδιο, η αρχισυντάκτρια του Archisearch, Μελίνα Αρβανίτη-Πολλάτου, συνομιλεί με την Μαριτίνα Διαμαντοπούλου, ιδρύτρια του Di Architecture Studio, για την κατοικία Interwoven Voids στην Πάτρα που καταφέρνει να είναι ταυτόχρονα σπίτι–μια πυκνή οικιακή εμπειρία με ρίζες στη μεσογειακή υλικότητα, την βιοκλιματική λειτουργία του αιθρίου, και τον ελληνικό μοντερνισμό.
Κάθε καινούργιο σπίτι είναι μια νέα αρχή που η αρχιτεκτονική καλείται να μορφοποιήσει σαν άσκηση ενορχηστρωμένης συνύπαρξης με τα υλικά του σύμπαντος. Με αφετηρία «μια αρχιτεκτονική ως το θαυμαστό παιχνίδι των όγκων στο φως» σύμφωνα με την περίφημη φράση του Λε Κορμπυζιέ, η μονοκατοικία Interwoven Voids στην Πάτρα αναπτύσσεται σε διαρκή διάλογο με τα στοιχεία της φύσης και το περιβάλλον τοπίο. Μέσα στο επιμήκες οικόπεδο, το σπίτι ξαπλώνει ως ισόγειος, λευκός μονώροφος όγκος, κάτω από τον ήλιο, σαν μια συμπυκνωμένη εμπειρία κατοίκησης σμιλεμένη από την αλληλοσυσχέτιση κενού-πλήρους, φωτός-σκιάς, υπαίθριου και εσωτερικού οικοτοπίου.

Σχεδιαστικές αναφορές από την ιδιόλεκτο του ελληνικού μοντερνισμού και την χειροποίητη υλικότητα της μεσογείου, προσδίδουν στην κατοικία την αφοπλιστική γοητεία της απλότητας και την ανεπιτήδευτη έλξη του οικείου.

Κεραμικά κλωστρά και πλακίδια κόττο, παράθυρα-κατώφλια, σκιασμένα αίθρια-αυλές και υπερυψωμένοι διάδρομοι για γάτες, συνυφαίνουν την οικιακή εμπειρία της νέας κατοικίας που ήρθε στον κόσμο για να στεγάσει την κοινή επιθυμία δυο ανθρώπων να φτιάξουν μαζί μια καινούργια ζωή.

Μελίνα Αρβανίτη-Πολλάτου: Τι σημαίνει για εσάς «σπίτι» και τι «κατοικία»; Εντοπίζετε κάποια ειδοποιό διαφορά και αν ναι, πώς επηρεάζει την αρχιτεκτονική σας προσέγγιση;
Μαριτίνα Διαμαντοπούλου: Πολύ ωραία ερώτηση.
Η κατοικία για εμένα είναι η υλική υπόσταση, το δοχείο της ιδιωτικής ζωής.
Είναι η αρχιτεκτονική σύνθεση, το σύνολο των στοιχείων της κάτοψης, των συμπαγών και διαπερατών επιφανειών και όγκων, των κλειστών και αίθριων χώρων που απαντούν στα λειτουργικά, κοινωνικά και περιβαλλοντικά δεδομένα. Το σπίτι είναι κάτι πιο ουσιαστικό. Είναι η βιωματική εμπειρία του χώρου, η αίσθηση του γνώριμου και του ασφαλούς περιβάλλοντος, οι μυρωδιές, οι ήχοι ακόμα και οι στιγμές που μοιραζόμαστε με αγαπημένους ανθρώπους ή κατοικίδια που μας συντροφεύουν σ’ ένα χωρικό πλαίσιο.


Το σπίτι δεν ορίζεται μόνο από τη μορφή του, αλλά από το πώς κατοικείται.


Στο κομμάτι της αρχιτεκτονικής μου προσέγγισης, αγαπώ να σχεδιάζω περισσότερο σπίτια, παρά κατοικίες. Μέσα από τη ζύμωση της σχέσης με τον πελάτη επιχειρώ να κατανοήσω όχι μόνο τις λειτουργικές του ανάγκες, αλλά το σύνολο των στοιχείων που συγκροτούν την καθημερινότητά του: τις συνήθειες, τους ρυθμούς, τις παύσεις, τις επιθυμίες, τις σιωπές. Πριν σχεδιάσω το «δοχείο», οραματίζομαι τον τρόπο που θα κατοικηθεί —το φως της καθημερινότητας, τις διαδρομές, τις στιγμές που δεν αποτυπώνονται στο πρόγραμμα.

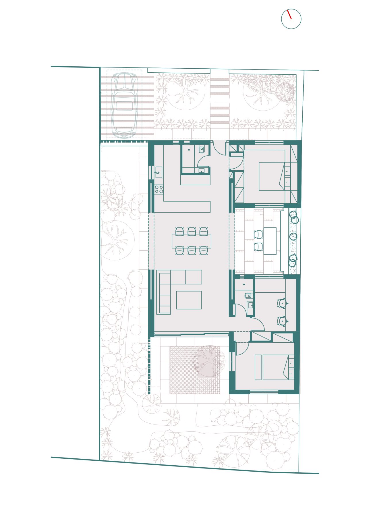
ΜΑΠ: Η κατοικία στη Πάτρα είναι ένα ισόγειο σπίτι για ανθρώπους και γάτες που οργανώνεται, σχεδιαστικά, γύρω από δύο βασικά αίθρια εκτόνωσης της καθημερινότητας που καθορίζουν τη μορφή του κτηρίου και την βιοκλιματική λειτουργία του ως πυρήνες φυσικού φωτισμού και αερισμού. Αν σας ζητήσω να σκεφτείτε την κατοικία σαν σώμα, πού θα εντοπίζατε τα αίθρια πάνω του;

ΜΔ: Το βασικό αίθριο θα ήταν το στόμα.
Η κύρια δίοδος για τον αέρα, το νερό και την τροφή αλλά και το ηχείο που μορφοποιεί τη φωνή. Το όριο που ο εσωτερικός μας κόσμος συναντά το περιβάλλον.

Το δεύτερο αίθριο θα ήταν οι πνεύμονες.

Ένας απολύτως εσωτερικός χώρος που διαχειρίζεται το οξυγόνο και συγχρονίζεται με το συναίσθημα —τη χαρά, την αγωνία, την ένταση, τη γαλήνη.
ΜΑΠ: Εξωτερικά, η ογκοπλασία της κατοικίας και τα κλωστρά θυμίζουν τα ανώνυμα μονώροφα σπίτια του πρώιμου ελληνικού μοντερνισμού που συναντάμε μέχρι σήμερα στις γειτονιές ανάμεσα σε πολυκατοικίες της μετέπειτα αντιπαροχής. Συμφωνείτε με αυτό τον παραλληλισμό και αν ναι, πώς μεταφράσατε με σύγχρονους όρους το μοντέρνο σε αυτή την κατοικία;
ΜΔ: Με μια λίγο πιο αφαιρετική ματιά θα συμφωνήσω. Οι προστατευμένες αυλές με πλακόστρωτα μοτίβα, οι διαβαθμίσεις ορατότητας μέσα από κλωστρά και μικρές οπές, τα γενναιόδωρα εσωτερικά ύψη και η χρήση φυσικών υλικών που στο πέρασμα του χρόνου αποκτούν απτικότητα και μνήμη είναι μερικά από τα στοιχεία που θαυμάζω στα σπίτια του ελληνικού μοντερνισμού.

Το Interwoven Voids, σε ένα στενόμακρο και περιορισμένο οικόπεδο, διαμορφώθηκε ως ένας μονολιθικός όγκος με καθαρές επιφάνειες στις όψεις που αφήνει τις απαραίτητες «ανάσες» από τα όρια, προστατεύοντας ταυτόχρονα την υπαίθρια ιδιωτικότητα. Όσον αφορά το αρχιτεκτονικό λεξιλόγιο ήθελα να βρω μια σχεδιαστική ισορροπία όπου τα σύγχρονα υλικά, που μας συνοδεύουν στην τεχνολογική εξέλιξη της κατασκευής μεταξύ των οποίων η θερμοπροσόψη και οι μεγάλων διαστάσεων πλάκες, να συνομιλούν και να συνυπάρχουν αρμονικά με φυσικά και διαχρονικά υλικά, όπως το ξύλο, τα κεραμικά κλωστρά, και τα μικρά πλακίδια κόττο.

Οι μεγάλες αφαιρετικές επιφάνειες εναλλάσσονται με πιο λεπτοδουλεμένες, μικρής κλίμακας υφές, στοιχείο σχεδιασμού που θα μπορούσε κάποιος να πει ότι έχει ως σημείο αναφοράς τα ισόγεια σπίτια του πρώιμου μοντερνισμού.

ΜΑΠ: Στην εμπειρία κατοίκησης που συζητάμε, σημαντικό ρόλο διαδραματίζει η χορογραφία φωτός-σκιάς. Πώς αυτή η σχέση λειτούργησε ως συνθετικό εργαλείο στο σχεδιασμό του Interwoven Voids;
ΜΔ: Στην πρώτη μου επίσκεψη, το οικόπεδο έμοιαζε στενό και περιορισμένο· μια συμπαγής ισόγεια λύση θα κατέληγε εύκολα σε έναν ακόμη χώρο που «διψά» για ήλιο. Όμως, το ανατολικό του όριο άνοιγε προς μια όμορφη θέα πρασίνου στο βουνό, ενώ στο βάθος υπήρχε μια εντυπωσιακή ελιά. Οργανώνοντας τις βασικές σχέσεις με το τοπίο και τον τόπο —τις θέες προς την περιβάλλουσα φύση, τη διεύθυνση του ανατολικού και νότιου φωτός, τις σχέσεις με τα γειτονικά κτήρια και τους νομοθετικούς περιορισμούς— ξεκίνησα να επεξεργάζομαι τη σύνθεση του όγκου, της κάτοψης και των αιθρίων.

Παράλληλα, πειραματίστηκα με ένα δίκτυο πολλαπλών, παράλληλων, διαμπερών ανοιγμάτων διαφορετικών προσανατολισμών, με στόχο το διαρκές «κυνήγι» του ήλιου, της σκιάς και της θέας.

Η ογκοπλασία και η διάταξη των χώρων, σε συνδυασμό με τα διαμπερή ανοίγματα, επιτρέπουν στον ίδιο χώρο να δέχεται διαδοχικά φως και σκιά σε διαφορετικές ώρες της ημέρας, ακόμη και έμμεσα. Το πρωινό φως εισέρχεται από τα βορειοανατολικά ανοίγματα του υπνοδωματίου· ακολουθεί μια σύντομη σκιά, έως ότου ο ήλιος εμφανιστεί στο κέντρο του αιθρίου. Καθώς κινείται νότια, η σκιά του ίδιου του κτηρίου διεισδύει σταδιακά στο κύριο υπνοδωμάτιο και έπειτα καλύπτει το αίθριο και την τραπεζαρία, ενώ το φως επανέρχεται από τα νοτιοδυτικά ανοίγματα του καθιστικού και του δεύτερου υπνοδωματίου, φιλτραρισμένο μέσα από δέντρα και το κτήριο στα νότια. Στη δύση, το φως εισχωρεί πλάγια από τα βορειοδυτικά ανοίγματα της τραπεζαρίας και της κουζίνας.

Η διάτρητη σκιά από τα κλωστρά απλώνεται στο δάπεδο της αυλής και αναρριχάται στον τοίχο του καθιστικού, πριν αποτυπωθεί για λίγο στο κύριο υπνοδωμάτιο μέσα από γενναία ανοίγματα.
Στους υπαίθριους χώρους, το κύριο αίθριο, η εσοχή στην επέκταση του καθιστικού και οι μικρότερες, πιο οργανικές διαμορφώσεις του τοπίου ακολουθούν αντίστροφα τη σκιά. Κάθε σημείο σκιάζεται σε διαφορετικές ώρες της ημέρας, αποκτώντας έναν χαρακτήρα που συνδέεται άμεσα με τη χρήση του και τις δραστηριότητες κάθε στιγμής.

Το σπίτι συγχρονίζεται με την κίνηση του ήλιου, μετατρέποντας το φως και τη σκιά σε ενεργά στοιχεία της καθημερινής κατοίκησης.

ΜΑΠ: Στη κατοικία στη Πάτρα κάθε άνοιγμα μετατρέπεται σε χώρο στάσης, παρατήρησης και σύνδεσης του εσωτερικού με το εξωτερικό οικοτοπίο. Συμπεραίνω, λοιπόν, πως μετατρέπεται σε κατώφλι. Τι σηματοδοτεί για εσάς «το κατώφλι» στην αρχιτεκτονική;
ΜΔ: Το «κατώφλι» είναι ένα σημείο μετάβασης για τις αισθήσεις που προετοιμάζει το μυαλό και το σώμα για την είσοδο σε μια νέα χωρική εμπειρία ή την επιστροφή σε μια οικεία και ασφαλή κατάσταση. Μπορεί να είναι ένα βιαστικό πέρασμα, μια στιγμή παρατήρησης ή παύσης, μια μικρή έκπληξη.

Το αρχιτεκτονικό «κατώφλι» βιώνεται και αναγνωρίζεται ακόμα και με κλειστά μάτια.

Ο τρόπος που απορροφάται ή αντανακλάται ο ήχος στις επιφάνειες, η μυρωδιά του αέρα, η θερμοκρασία που αντιλαμβάνεται το σώμα, όλα αυτά συμμετέχουν στην εμπειρία δίχως να κατευθύνονται από την όραση.

ΜΑΠ: Στο εσωτερικό του σπιτιού, ο σχεδιασμός διαμορφώθηκε έτσι ώστε να συμπεριλαμβάνει τις γάτες του ζευγαριού. Ποιες θα λέγατε ότι είναι οι βασικές ποιότητες που ενσωματώνει στην αρχιτεκτονική της κατοικίας η ιδιαίτερη φύση της γάτας;
ΜΔ: Οι γάτες αγαπούν το ύψος και την παρατήρηση. Αναζητούν ψηλά σημεία όπου νιώθουν ασφάλεια και έλεγχο του περιβάλλοντος. Απολαμβάνουν προσβάσιμα παράθυρα και ανοίγματα για να ζεσταθούν στον ήλιο και για να παρακολουθήσουν το εξωτερικό περιβάλλον: περαστικούς ανθρώπους, δέντρα, πουλιά, άλλα ζωάκια και μικρές κινήσεις. Τις ελκύει η διασύνδεση ψηλών και χαμηλών επιπέδων· οι επιφάνειες που επιτρέπουν αναρρίχηση, άλματα και παιχνίδι καθώς και οι ενιαίες διαδρομές σε πιο ψηλά επίπεδα.


Το ξύλο, οι φυσικές επιφάνειες και η ποικιλία στις υφές ενεργοποιούν τις αισθήσεις τους και ενισχύουν την εμπειρία του χώρου.

Στο Interwoven Voids, η εναλλαγή ανοιχτών και κρυφών σημείων όπου οι χαμηλές ποδιές των παραθύρων μετατρέπονται, εσωτερικά, σε ενσωματωμένες χαμηλές βιβλιοθήκες και πάγκους–κρεβάτια, δημιουργεί υπερυψωμένα σημεία θέας και πολλαπλά αισθητηριακά ερεθίσματα. Ο μακρύς πάγκος της κουζίνας, τα διαδοχικά επίπεδα στο μπάνιο, το γραμμικό αιωρούμενο έπιπλο του καθιστικού, η πολυεπίπεδη σύνθεση στο γραφείο με τον συνεχή γραμμικό πάγκο και το στρογγυλό άνοιγμα στην άκρη, λειτουργούν ως διακριτικές «διαδρομές» σε ύψος.

Ο σχεδιασμός συγκροτεί μια συνθήκη ταυτόχρονης απασχόλησης και συντροφικότητας ανθρώπων και γατών.

Καθώς ο περιβάλλων χώρος σχεδιάζεται ως συνέχεια του εσωτερικού, με πάγκους και αιωρούμενες επιφάνειες, η κατοικία γίνεται προσβάσιμη και σε γάτες της γειτονιάς. Η αλληλεπίδραση των οικόσιτων κατοικίδιων με τους χνουδωτούς «επισκέπτες» ενεργοποιεί έναν ακόμη, απρόβλεπτο, διάλογο — έναν χώρο που δεν κατοικείται μόνο από ανθρώπους, αλλά μοιράζεται.

ΜΑΠ: Η επιλογή των υλικών και των χρωμάτων της κατοικίας καθορίστηκε από την προσωπικότητα, τα ταξίδια, και τις βιωματικές εμπειρίες των ιδιοκτητών. Με άλλα λόγια κάθε υλικό λέει μια ιστορία. Αφηγηθείτε μας μια από αυτές περιγράφοντας πώς μια ανάμνηση αποτυπώνεται και αποθηκεύεται στο χώρο.
ΜΔ: Δεν πρόκειται για μία συγκεκριμένη ιστορία, αλλά περισσότερο για ένα σύνολο αναφορών και εμπειριών που έχουν συσσωρευτεί μέσα στα χρόνια. Οι ιδιοκτήτες έζησαν για μεγάλο διάστημα στην Αγγλία, και κάποιες από τις καθημερινές χωρικές ποιότητες που είχαν συνηθίσει εκεί επανεμφανίζονται στο σπίτι, όπως για παράδειγμα τα ξύλινα δάπεδα που αποτελούσαν βασικό στοιχείο των διαμερισμάτων στα οποία κατοικούσαν. Παράλληλα, σημαντικό ρόλο έπαιξαν και τα ταξίδια τους, ιδιαίτερα στον νότο και στην Ισπανία.

Από αυτές τις εμπειρίες προέκυψαν στοιχεία όπως τα έντονα μοτίβα στα πλακάκια, τα κλωστρά και γενικότερα μια πιο θερμή, μεσογειακή αίσθηση στους χώρους.

Με αυτόν τον τρόπο, τα υλικά και τα χρώματα της κατοικίας λειτουργούν σαν φορείς μνήμης: δεν αναπαριστούν κυριολεκτικά έναν τόπο, αλλά συνθέτουν μια ατμόσφαιρα που συγκεντρώνει στιγμές, εικόνες και εμπειρίες από διαφορετικές περιόδους της ζωής των ιδιοκτητών.
ΜΑΠ: Κλείνοντας, ποια πιστεύετε ότι είναι η επόμενη μέρα στο σχεδιασμό κατοικίας ή με άλλα λόγια τι δεν έχει δώσει ακόμα στην κατοικία η αρχιτεκτονική;
ΜΔ: Οι αρχιτέκτονες διαχρονικά καλούμαστε να αποτυπώσουμε ένα στιγμιότυπο, να «μεταφράσουμε» το προφίλ ενός πελάτη, μιας οικογένειας, μιας κοινωνικής συνθήκης τη συγκεκριμένη χρονική στιγμή σε μια αρχιτεκτονική σύνθεση.

Όμως, τα κοινωνικά μοντέλα μεταβάλλονται ταχύτερα από τον κτιριακό κύκλο ζωής.

Η κάποτε πολυμελής οικογένεια έδωσε τη θέση της στα μικρότερα νοικοκυριά, το διπλό οικογενειακό εισόδημα αναδιαμόρφωσε την καθημερινότητα και το μέγεθος της οικογένειας, και πλέον η εργασία από το σπίτι και η κινητικότητα των ψηφιακών νομάδων επαναπροσδιόρισαν τη σχέση προσωπικού και επαγγελματικού χώρου αναζητώντας μια διακριτή χωρική οριοθέτηση μέσα στη σύγχρονη κατοικία.
Κάθε φορά, οι κατοικίες μιας προηγούμενης εποχής καλούνται να υποδεχθούν έναν νέο τρόπο ζωής που δεν είχαν προβλέψει.
Σχεδιάζουμε προσπαθώντας να αφήσουμε ένα διαχρονικό αποτύπωμα με αρχιτεκτονική αξία, προβλέποντας μελλοντικές επιθυμίες κι ανάγκες, αλλά η αρχιτεκτονική δεν έχει απαντήσει ακόμα στο πρόβλημα της χωρικής ανθεκτικότητας, πώς δηλαδή η κατοικία θα αντέχει στις μεταμορφώσεις του μέλλοντος.

Ίσως χρειάζεται να σχεδιάζουμε όχι μόνο για έναν δεδομένο τρόπο ζωής αλλά και για την πιθανότητα ανατροπής του.

Μένει να ορίσουμε πώς θα μπορούσε ένας τόσο ρευστός σχεδιασμός να συμβαδίσει με την καθημερινότητα των ανθρώπων ενώ η κατοικία εξακολουθεί να βιώνεται και να παραμένει σπίτι.
Στοιχεία Έργου
Τίτλος έργου Interwoven Voids
Τυπολογία Ιστορίες Σύγχρονης Οικιακότητας, Κατοικία
Επεισόδιο 13ο
Τοποθεσία Πάτρα, Αχαΐα, Ελλάδα
Εμβαδόν 120τ.μ.
Κατάσταση Υλοποιημένο, 2026
Αρχιτεκτονική μελέτη Μαριτίνα Διαμαντοπούλου, Di Architecture Studio
Στατική μελέτη Θάνος Συνοδινός
Μηχανολογική μελέτη Γιώργος Φραγκάκης
Κατασκευή Atergon Constructions
Φωτογραφία Alessandro Kikinas, Ηρώ Σταλίκα
READ ALSO: ESO 2026 presents "Negotiation, Not Compromise. Design as Dialogue Between Earth, Technology, and Humanity" | SAVE THE DATE MAY 13, 2026

