The New Workplace explores how contemporary offices balance flexibility, craft, and identity. From adaptive reuse to bespoke interventions, each project rethinks spatial hierarchy, materiality, and light, framing work as an experience rather than a routine. Steel, concrete, timber, and glass converge to create environments that are simultaneously resilient and human, reflecting evolving professional cultures while celebrating texture, tactility, and the quiet poetry of everyday occupation.
In the open fields of Cuenca, the Agrosemillas offices by Madrid-based Impepinable Studio emerge as both infrastructure and artefact, negotiating the thresholds between production, research and landscape. The project takes shape as a characterful building where the brand’s signature yellow and green colours merge with reused shipping containers and polished concrete into a tectonic assembly that borders on the anthropomorphic: at once machine and body, rigid and expressive. Animated by the tacit knowledge of local craftsmen for a vast anthropogeography of users, from workers and engineers to researchers and scientists, the project resists neutrality, asserting instead a deliberate, almost performative presence within Spain’s agro-industrial terrain.
Set within an agro-industrial landscape calibrated to the scale of logistics rather than that of the human body, the Agrosemillas offices occupy a territory shaped by heavy vehicles, infrastructural flows and cycles of production.
Positioned along a national road that separates them from the small municipality of El Peral, the complex stands in a condition of near-isolation, surrounded by vast agricultural fields and scarce urban references. Here, climate and territory assert equal force: intense seasonal contrasts and episodes of torrential rain define both the environment and the rhythms of work, which oscillate between periods of latency and phases of continuous, almost relentless activity.

Within this context, the project introduces a counterpoint — a calibrated interiority capable of supporting concentration, exchange and technical development amid an otherwise harsh and demanding setting of noise, dust and logistical intensity. The building accommodates a broad spectrum of users, from warehouse workers to engineers and researchers, whose temporalities and modes of occupation shift throughout the year.

Flexibility becomes not an abstract principle but a necessity, embedded within a clear spatial order that allows different forms of work to coexist. At the same time, the offices maintain a direct and deliberate relationship with the surrounding warehouses, extending the industrial logic while subtly reframing it.

The new building emerges as both instrument and statement within a moment of transition.


Agrosemillas, historically rooted in seed production, is repositioning itself towards technological innovation and environmental awareness. The architecture engages this shift without rupture, balancing continuity with the assertion of a more open, youthful and informal identity. This stance materialises in the unapologetic deployment of the company’s green and yellow, inscribed across the building as both signal and surface.

The façades, punctuated by a limited number of large circular openings, incorporate manually operated shutters that behave almost as mechanical devices — elements that allow the building to alternately expose or withdraw itself from its surroundings.

Constructed in parallel with over 4,500 square metres of new production and storage facilities, the offices share systems, materials and processes with the wider industrial complex. The project is rooted in the capacities of its immediate context, relying on local craftsmen — the village blacksmith, the plumber — alongside formwork carpenters from nearby towns and industrial construction teams accustomed to the region’s building practices.

This reliance on situated knowledge informs the project’s technical resolution and underpins an architecture of deliberate austerity, where means and ends remain closely aligned.

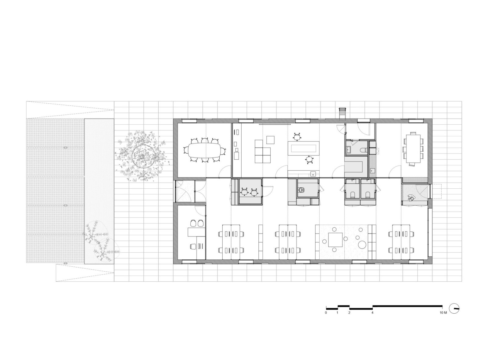
Spatially, the building is organised through a clear and repeatable system. Four reused shipping containers, opened along two sides, rest on a concrete plinth continuous with that of the adjacent warehouses.

Their configuration generates a saw-tooth roof profile, operating as a sequence of skylights that draw diffuse, controlled daylight deep into the interior, producing an unexpectedly nuanced spatial atmosphere. The north-facing orientation of these planes ensures a consistent and measured entry of light. Steel frames articulate both interior and exterior, their slender geometry providing structural clarity, while oak surfaces—applied as interior cladding and custom furniture—introduce a rich, organic counterpoint. Underfoot, polished concrete slabs extend a cool, reflective plane, unifying the interior spaces with quiet sophistication.

Perpendicular to this section, three bands structure the plan with almost diagrammatic clarity: open workspaces, service areas, and meeting rooms with laboratory functions. Entrances are differentiated according to logistical flows, while the intermediate roof surfaces accommodate strips of experimental crops, collapsing the distance between research, production and architecture into a single operative field.

What emerges is a precise and restrained piece of working infrastructure — an architecture that does not seek autonomy but rather derives its form from systems, from use, and from the knowledge embedded in the labour that sustains it.


Mini Cv
Impepinable is a Madrid-based spatial design studio led by architect Gabriela Barrera. The practice develops thoughtful and refreshing responses to architectural challenges across contexts of living, working, and production. With a balanced mix of rigor and humor, the studio creates expressive spaces that help people move towards a better future.

Gabriela Barrera studied architecture in Madrid and Vienna, graduating with honors from the Escuela Técnica Superior de Arquitectura de Madrid.
She has been a research member at Tsukamoto Lab at the Tokyo Institute of Technology and an associate professor at Technische Universität Berlin. Since 2013, she has collaborated with internationally renowned firms, including Kengo Kuma & Associates in Tokyo, MVRDV in Rotterdam, and Estudio Herreros in Madrid. Gabriela has been leading Impepinable Studio since 2020.
Facts & Credits
Project title Agrosemillas Offices
Typology The New Workplace, Offices
Location El Peral, Cuenca, Spain
Status Completed, 2025
Gross floor area 280 m²
Architecture Impepinable Studio
Author Gabriela Barrera
Co-author César Plata
Design team Laura Currais, Matej Sevela
Services engineering Norta
Structural engineering gv408
Technical architect Miguel Ruiperez
Metalwork Oscar Remolino
Contractor Cresver80
Photography DEL RIO BANI












