‘Stories of contemporary domesticity or HOMEland’, a series curated by Archt. for Archisearch, poses questions about the concept of home through an open dialogue with contemporary architectural practices in housing.
In the tenth episode, we follow Pacarizi Studio in the vast agricultural landscape of the coastal village Ishull-Lezhë in Albania, where they redefine the typology of the multigenerational single-family house in response to shifting social realities such as the “transnationalization of everyday life” and “domestic absence.” The project unveils an almost pink, almost red, low-cost, low-tech house embedded in the land as an ecosystem of indoor and outdoor rooms: an inhabitable topography shaped by climate and grounded in a circular building economy.

Single-family houses account for more than half of Albania’s built fabric, making the private dwelling the country’s most persistent architectural and social typology.


According to Russell King and Julie Vullnetari, the Albanian house has historically functioned not only as shelter but as a material anchor of family continuity, kinship, and long-term investment across generations. Traditionally conceived as multigenerational, self-built structures—often expanded incrementally over time—these houses embodied permanence, proximity, and collective family life.
Today, however, the social conditions that sustained this model are undergoing profound transformation.


Albania has experienced one of the most intense and prolonged waves of emigration in Europe, resulting in what King describes as a “transnationalization of everyday life,” where families are spatially dispersed yet symbolically connected through the home.

At the same time, demographic aging and increased mobility have altered domestic use patterns, blurring the distinction between permanent residence and holiday house, village and city, presence and absence. Julie Vullnetari notes that many Albanian houses now exist in a state of partial occupation—inhabited seasonally, maintained through remittances, and preserved as sites of belonging rather than daily use.

Sociologist Linda Kalcuni further conceptualizes this condition as a form of “domestic absence,” in which homes remain physically intact while care, labor, and everyday life unfold elsewhere.

In this context, domestic space is no longer defined solely by cohabitation, but by anticipation, return, and adaptability.

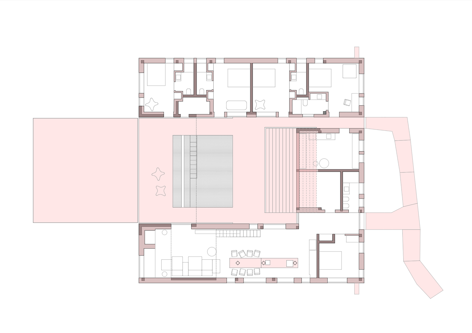
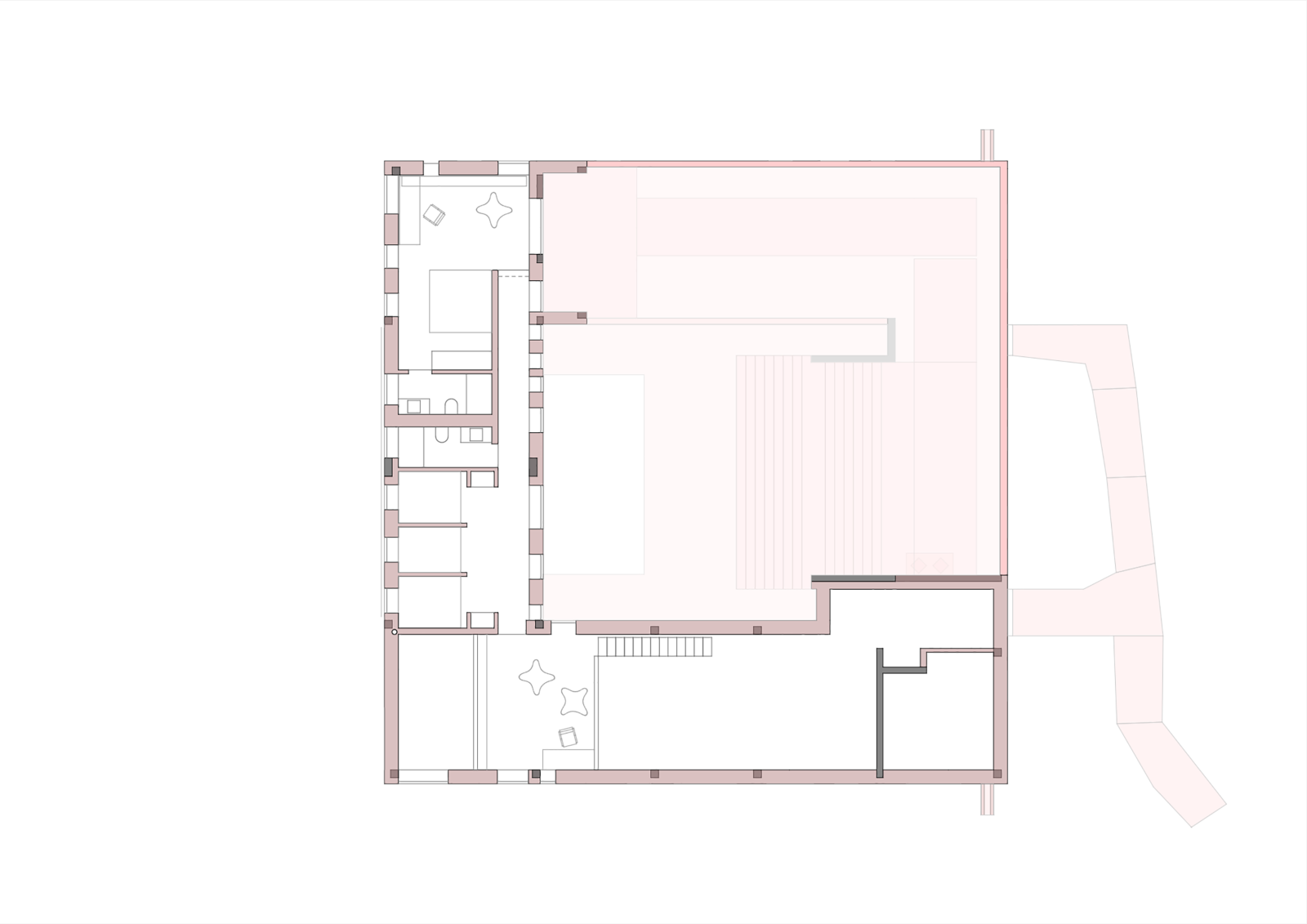
Red House emerges as an architectural response to the redefinition of the single-family home for a cohesive yet geographically dispersed family. Acknowledging the contemporary Albanian condition of fluctuating presence, global climatic pressures, and enduring local building traditions, Pacarizi Studio proposes a house that reads less as a conventional domestic object and more as a man-made landscape unfolding around a concrete courtyard, anchored by a central pool and shaped by light, climate, and everyday use.


A carefully sculpted piece of inhabitable topography

Set within an expansive agricultural plot planted with olive, pomegranate, and orange trees, the house orchestrates a fluid balance between indoor and outdoor living.
A grand staircase extends the central courtyard vertically to the roof, evoking an open-air theater while opening measured vistas toward the unknown, the surrounding land, and, ultimately, the sea. Openings—precise, square incisions in the enveloping surfaces—act as calibrated frames. Each captures a fragment of the surroundings: a stretch of landscape, a piece of stair, a solitary tree while all views are shifting according to perspective, time of day, and season.


In doing so, the house choreographs perception, turning everyday acts of dwelling into a continuous dialogue with the territory.

Sustainability matters: no-waste construction, local labour & natural building techniques
The project engages low-tech climatic intelligence through passive strategies, material restraint, and construction methods aligned with a circular building economy. Its modest means become a generative constraint, shaping an architecture of thickness, shadow, and thermal stability. A concrete structure is paired with 46-centimeter-thick walls of local hollow brick, insulated and plastered with a mixture of straw, sand, and lime bound with casein—a traditional milk protein that fully replaces cement. Pigmented with red iron oxide, the mineral surface carries its color within the material itself, intended to age without the need for repainting.

Lime is produced locally, casein sourced from nearby farms, and floors finished in regional pink marble and wood, while construction relies on small local teams and generates almost no waste.

Thick walls temper interior temperatures; large fixed windows draw in light and frame the landscape, while smaller operable openings regulate natural ventilation. The courtyard functions as a climatic buffer, collecting cool air at night and shading the surrounding rooms by day. Sustainability becomes a matter of building culture—working with what is at hand, minimizing reliance on imported systems, and prioritizing durability, simplicity, and long-term care and use.

Red House operates as an adaptive domestic ecosystem—capable of accommodating fluctuating patterns of presence, absence, and return. It suggests a model of rural living that is grounded, resilient, and deeply attuned to the social and environmental textures of its place.
Drawings






Facts & Credits
Project title Red House
Typology Private House, Residential, Architecture
Location Ishull-Lezhë, Albania
Area 350 m²
Status Completed, 2025
Architecture Pacarizi Studio
Photography Gezim Pacarizi, Lundrim Karameta
Bibliography
King, Russell & Vullnetari, Julie
Migration and Development in Albania and Kosovo
Palgrave Macmillan, 2009
Vullnetari, Julie
Albania on the Move: Links between Internal and International Migration
Amsterdam University Press, 2012
King, Russell
Albanian Migration and Development: State of the Art Review
IMISCOE / Sussex Centre for Migration Research, 2005
Kalcuni, Linda
Migration, Gender and Care in Albania
Palgrave Macmillan, 2019
READ ALSO: Hospitality Atmospheres: οι BS Architects σχεδίασαν το ξενοδοχείο Altera Caves ως αναπόσπαστο κομμάτι της κρητικής γης
