MICROMEGA ARCHITECTS, E. MITAKOU & V. IEREIDIS PROPOSE HIDDEN GARDENS FOR THE MED. SCHOOL IN THE UNIVERSITY OF CYPRUS

ENG / GR
International Architectural Competition, Medical School and Health Sciences Building Nikos Siakolas, November 2015 
 
The design process for the Medical School and Health Sciences Building was influenced by two factors: firstly, from the place of intervention with its intense topography and views towards the hill Aronas and Park Athalassa, and secondly from the actual content and character of the School of Medicine. The identity of the place affects the building regarding its location, orientation and volumetric options, so as to maximize the benefits of the site and the specific climatic characteristics. In parallel, the function which will be hosted, this of a modern and innovative Medical School, forms the architectural vocabulary. We go back to the beginnings of the science of medicine in ancient Greek and Hellenistic years to enhance the character of a holistic approach, where building and function meet in total.
 
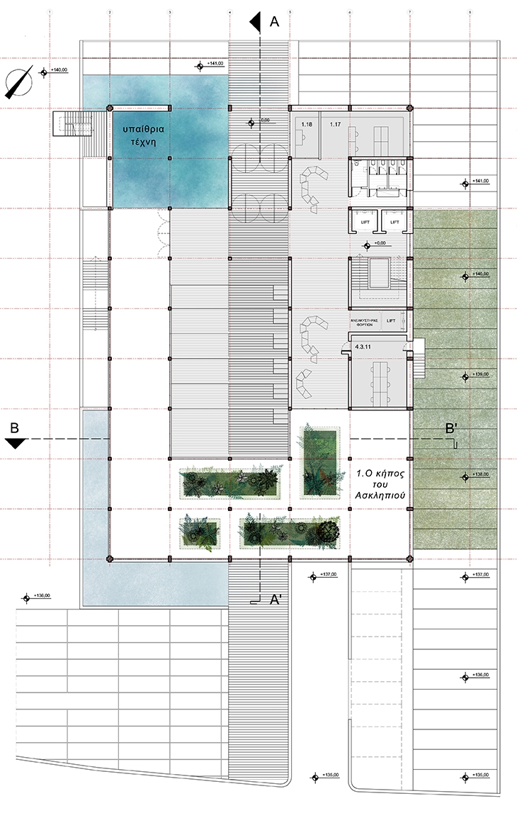
The chosen site for the Medical School, is characterized by a slope of elevation difference of 7m., therefore we seek to create a level that will connect the public space of the Belvedere with the semi / private space of the school and enrich the threshold of the campus with the school. At the same time, it is important to connect the upper and lower part through a walk, and take into account the future expansion of the school. The School of Medicine is planned morphologically as a new landmark in the campus that reflects the specific nature of the new building, enriching the skyline.
 
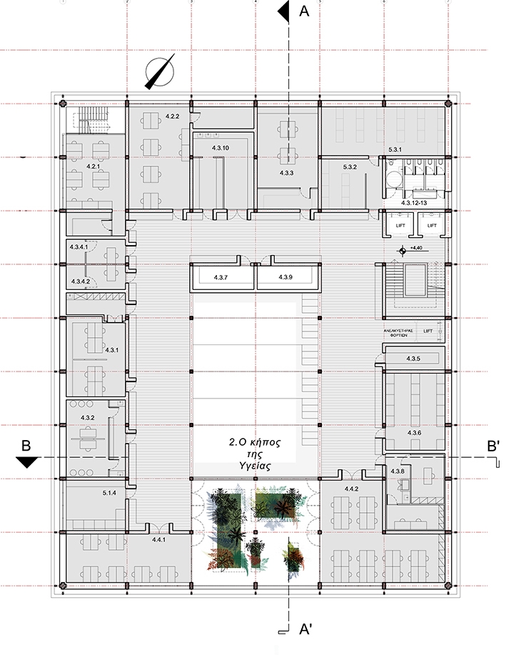
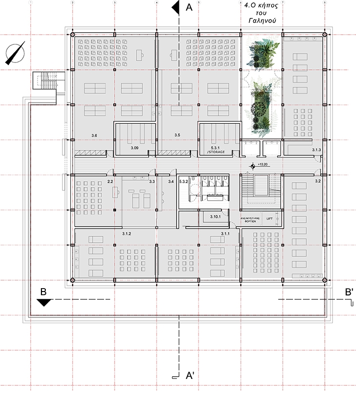
The functional units of the School remain distinct as the building rises, while they are designed to have access to an outdoor or semi-outdoor space. The interior configuration of the School is focused on the social spaces of the building, such the rest and meeting points, interior or exterior, or wide corridors that encourage informal meetings among teachers, students and visitors, spaces for online access. The social areas of the School are in direct contact with indoor and outdoor gardens-terraces, which introduce the nature in the building. These spaces are a key point of reference in the holistic approach of the individual in relation to his environment, and refer to Asklipiia, the treatment clinics of Greek Antiquity.
 
Facts & Credits:
Project Team: Micromega Architecture & Strategies (Alexandros Zomas+Mara Papavasileiou), Eleni Mitakou, Vasilis Iereidis (IMA Architecture, Cyprus) 
 

 
Διεθνής Αρχιτεκτονικός Διαγωνισμός, Σχολή Ιατρικής και Επιστημών Υγείας, Νίκος Σιακόλας, Νοέμβριος 2015
 
Η συνθετική διαδικασία για το σχεδιασμό της Ιατρικής Σχολής επηρεάστηκε από δύο παράγοντες: Αφενός από τον τόπο παρέμβασης με το έντονο ανάγλυφο και τις θεάσεις στο λόφο του Άρωνα και το πάρκο της Αθάλασσας, αφετέρου από το ίδιο το περιεχόμενο και χαρακτήρα της Ιατρικής Σχολής. Η ταυτότητα του τόπου επηρεάζει το κτίριο ως προς τη χωροθέτηση, τον προσανατολισμό και τις ογκομετρικές επιλογές, ώστε να αξιοποιείται στο μέγιστο η τοποθεσία και τα ιδιαίτερα κλιματικά χαρακτηριστικά. Παράλληλα, η ίδια η λειτουργία που θα στεγαστεί, αυτή μιας σύγχρονης και καινοτόμου Ιατρικής Σχολής, διαμορφώνει το αρχιτεκτονικό λεξιλόγιο. Γίνεται αναδρομή στις απαρχές της επιστήμης της ιατρικής στα αρχαία ελληνικά και ελληνιστικά χρόνια, προκειμένου να αναδειχθεί ο χαρακτήρας μιας ολιστικής προσέγγισης, όπου κτίριο και λειτουργία συναντώνται.
 
Το οικόπεδο που έχει επιλεγεί για την Ιατρική Σχολή, χαρακτηρίζεται από έντονο φυσικό ανάγλυφο και υψομετρική κλίση 7μ. Το ισόγειο της Ιατρικής Σχολής σχεδιάζεται ανοικτό και διαμπερές ώστε να αποτελεί φυσική προέκταση της πορείας από το Belvedere, να είναι και οπτικά προσπελάσιμο, χαράζοντας μια συνεχή διαδρομή που τελικά καταλήγει στο ανοικτό μπαλκόνι που καδράρει τη θέα. Το  επίπεδο αυτό συνδέει το δημόσιο χώρο του Belvedere με τον ημιδημόσιο/ιδιωτικό χώρο της σχολής και εμπλουτίζει το κατώφλι από την Πανεπιστημιούπολη στο εσωτερικό της σχολής. Παράλληλα, κρίνεται σημαντική η σύνδεση του άνω και κάτω τμήματος του οικοπέδου μέσα από ένα περίπατο, καθώς λαμβάνεται υπόψιν η μελλοντική επέκταση τη σχολής. Το κτίριο της Σχολής επεκτείνεται καθ’ύψος, με στόχο τη δημιουργία ενός αναγνωρίσιμου κτιρίου με διακριτή μορφολογία που αναδιαμορφώνει την κορυφογραμμή της Πανεπιστημιούπολης και προσθέτει ένα νέο στοιχείο στο τοπίο.
 
Οι λειτουργικές ενότητες της Σχολής παραμένουν διακριτές ογκοπλαστικά, κατά την επέκταση σε ύψος και σχεδιάζονται με πρόσβαση σε υπάιθριο ή ημιυπάιθριο χώρο. Η εσωτερική διαμόρφωση της Σχολής γίνεται με άξονα την ενίσχυση των κοινωνικών χώρων του κτιρίου, όπως κοινόχρηστοι χώροι παύσης και συνάντησης, εσωτερικοί και εξωτερικοί, διάδρομοι όπου ευνοούνται οι συναντήσεις και οι ανταλλαγές μεταξύ καθηγητών, φοιτητών και επισκεπτών, χώροι για εργασία δεδομένου της ασύρματης πρόσβασης στο Διαδίκτυο και τους πόρους της σχολής.
 
Οι κοινωνικοί αυτοί χώροι της Σχολής βρίσκονται σε άμεση επαφή με εσωτερικούς και εξωτερικούς κήπους-αίθρια, τα οποία εισάγουν το φυσικό στοιχείο μέσα στο κτίριο. Ένα βασικό στοιχείο αναφοράς στην ολιστική προσέγγιση του ατόμου σε σχέση με το περιβάλλον του και αναφέρονται στο χώρο των Ασκληπιείων, ήταν ιερά και τόποι λατρείας του ήρωα, ιερού ιατρού και θεραπευτή θεού Ασκληπιού. Το  κτίριο διάσπαρτο από μικρούς, μυστικούς – κρυφούς δηλαδή από τους εξωτερικούς παρατηρητές, κήπους, παρέχει στους φοιτητές γωνιές, χώρους συγκέντρωσης ή αντίστοιχα απομόνωσης ώστε να διευκολυνθεί η διαδικασία της μόρφωσης. Οι μικροί αυτοί κήποι φιλοξενούν ένα πλήθος φυτών, κυρίως ξηρικών αλλά και αρωματικών, δημιουργούν νέα εναύσματα και οπτικές θέασης του εσωτερικού χώρου, που στοχεύουν στο να βελτιώνουν την ψυχοσύνθεση των φοιτητών.  
Στοιχεία
Ομάδα μελέτης: Micromega Architecture & Strategies ( Αλέξανδρος Ζώμας, Μάρα Παπαβασιλείου), Ελένη Μιτάκου, Βασίλης Ιερείδης (IMA Architecture, Κύπρος)
 
Archisearch - Hidden Gardens / Micromega Architecture & Strategies, Eleni Mitakou, Vasilis IereidisHIDDEN GARDENS / MICROMEGA ARCHITECTURE & STRATEGIES, ELENI MITAKOU, VASILIS IEREIDIS
Archisearch - Hidden Gardens / Micromega Architecture & Strategies, Eleni Mitakou, Vasilis IereidisHIDDEN GARDENS / MICROMEGA ARCHITECTURE & STRATEGIES, ELENI MITAKOU, VASILIS IEREIDIS
Archisearch - Hidden Gardens / Micromega Architecture & Strategies, Eleni Mitakou, Vasilis IereidisHIDDEN GARDENS / MICROMEGA ARCHITECTURE & STRATEGIES, ELENI MITAKOU, VASILIS IEREIDIS
Archisearch - Hidden Gardens / Micromega Architecture & Strategies, Eleni Mitakou, Vasilis IereidisHIDDEN GARDENS / MICROMEGA ARCHITECTURE & STRATEGIES, ELENI MITAKOU, VASILIS IEREIDIS
Archisearch - Hidden Gardens / Micromega Architecture & Strategies, Eleni Mitakou, Vasilis IereidisHIDDEN GARDENS / MICROMEGA ARCHITECTURE & STRATEGIES, ELENI MITAKOU, VASILIS IEREIDIS
Archisearch - Hidden Gardens / Micromega Architecture & Strategies, Eleni Mitakou, Vasilis IereidisHIDDEN GARDENS / MICROMEGA ARCHITECTURE & STRATEGIES, ELENI MITAKOU, VASILIS IEREIDIS
Archisearch - Hidden Gardens / Micromega Architecture & Strategies, Eleni Mitakou, Vasilis IereidisHIDDEN GARDENS / MICROMEGA ARCHITECTURE & STRATEGIES, ELENI MITAKOU, VASILIS IEREIDIS
Archisearch - Hidden Gardens / Micromega Architecture & Strategies, Eleni Mitakou, Vasilis IereidisHIDDEN GARDENS / MICROMEGA ARCHITECTURE & STRATEGIES, ELENI MITAKOU, VASILIS IEREIDIS
Archisearch - Hidden Gardens / Micromega Architecture & Strategies, Eleni Mitakou, Vasilis IereidisHIDDEN GARDENS / MICROMEGA ARCHITECTURE & STRATEGIES, ELENI MITAKOU, VASILIS IEREIDIS
Archisearch - Hidden Gardens / Micromega Architecture & Strategies, Eleni Mitakou, Vasilis IereidisHIDDEN GARDENS / MICROMEGA ARCHITECTURE & STRATEGIES, ELENI MITAKOU, VASILIS IEREIDIS
Archisearch - Hidden Gardens / Micromega Architecture & Strategies, Eleni Mitakou, Vasilis IereidisHIDDEN GARDENS / MICROMEGA ARCHITECTURE & STRATEGIES, ELENI MITAKOU, VASILIS IEREIDIS
Archisearch - Hidden Gardens / Micromega Architecture & Strategies, Eleni Mitakou, Vasilis IereidisHIDDEN GARDENS / MICROMEGA ARCHITECTURE & STRATEGIES, ELENI MITAKOU, VASILIS IEREIDIS
Archisearch - Hidden Gardens / Micromega Architecture & Strategies, Eleni Mitakou, Vasilis IereidisHIDDEN GARDENS / MICROMEGA ARCHITECTURE & STRATEGIES, ELENI MITAKOU, VASILIS IEREIDIS
Archisearch - Hidden Gardens / Micromega Architecture & Strategies, Eleni Mitakou, Vasilis IereidisHIDDEN GARDENS / MICROMEGA ARCHITECTURE & STRATEGIES, ELENI MITAKOU, VASILIS IEREIDIS
Archisearch - Hidden Gardens / Micromega Architecture & Strategies, Eleni Mitakou, Vasilis IereidisHIDDEN GARDENS / MICROMEGA ARCHITECTURE & STRATEGIES, ELENI MITAKOU, VASILIS IEREIDIS
Archisearch - Hidden Gardens / Micromega Architecture & Strategies, Eleni Mitakou, Vasilis IereidisHIDDEN GARDENS / MICROMEGA ARCHITECTURE & STRATEGIES, ELENI MITAKOU, VASILIS IEREIDIS
Archisearch - Hidden Gardens / Micromega Architecture & Strategies, Eleni Mitakou, Vasilis IereidisHIDDEN GARDENS / MICROMEGA ARCHITECTURE & STRATEGIES, ELENI MITAKOU, VASILIS IEREIDIS
Archisearch - Hidden Gardens / Micromega Architecture & Strategies, Eleni Mitakou, Vasilis IereidisHIDDEN GARDENS / MICROMEGA ARCHITECTURE & STRATEGIES, ELENI MITAKOU, VASILIS IEREIDIS
Archisearch - Hidden Gardens / Micromega Architecture & Strategies, Eleni Mitakou, Vasilis IereidisHIDDEN GARDENS / MICROMEGA ARCHITECTURE & STRATEGIES, ELENI MITAKOU, VASILIS IEREIDIS
Archisearch - Hidden Gardens / Micromega Architecture & Strategies, Eleni Mitakou, Vasilis IereidisHIDDEN GARDENS / MICROMEGA ARCHITECTURE & STRATEGIES, ELENI MITAKOU, VASILIS IEREIDIS
Archisearch - Hidden Gardens / Micromega Architecture & Strategies, Eleni Mitakou, Vasilis IereidisHIDDEN GARDENS / MICROMEGA ARCHITECTURE & STRATEGIES, ELENI MITAKOU, VASILIS IEREIDIS
Archisearch - Hidden Gardens / Micromega Architecture & Strategies, Eleni Mitakou, Vasilis IereidisHIDDEN GARDENS / MICROMEGA ARCHITECTURE & STRATEGIES, ELENI MITAKOU, VASILIS IEREIDIS

RELATED ARTICLES