The old Kuopio City Theatre is a 1960`s modernist building by architects Helmer Stenros and Risto-Veikko Luukkonen. The expansion includes a new 200-seat studio stage with flexible seating and stage mechanics. New spaces are also provided for loading and logistics, costume manufacturing and storage, and support functions of the new stage. The only visible alteration when approaching the theatre from the city centre is the four meter elevation of the theatre tower. The stage technology for the main stage has been completely updated, and the tower has been raised. The add-on forms a glowing glass lantern, leaving the distinctive shape of the old tower recognizable.
 
The actual expansion is a simple rectangular volume located perpendicularly to the existing volume. The new stage connects to the main stage like a horizontal version of the stage tower. It is a solid, contemporary addition which continues and complements the old structure with equal quality and permanence. The public foyer is extended between the old and new volumes as a bridge-like angled space, which floats above the new outdoor auditorium created between the two volumes.
 
The old building has a beautiful and timeless material palette consisting of white concrete panels, glass and terracotta tiles. The extension is clad in white concrete panels with a wrinkled, varying surface form, which indicates a similar acoustically optimized cladding inside the new hall.
 
Facts & Credits:
NAME: Kuopio City Theatre
TYPE: Commission, Theatre re-opened in September 2014
STATUS: Built
PROGRAM: Renovation 8,000 m2 & expansion with new studio stage 3,500 m2
CLIENT: City of Kuopio
TEAM: Juho Grönholm, Antti Nousjoki, Janne Teräsvirta and Samuli Woolston with Heikki
Riitahuhta, Toni Laurila, Pekka Sivula, Auvo Lindroos, Jyri Tartia, Harri Ahokas, Petra
Grisova ja Gerard Gutierrez
COLLABORATORS: Janne Pääkkönen (client representative), Juha Westman (user
representative), Tanskanen Engineers Ltd. (structure and statics), Granlund Kuopio Ltd.
(HVAC), Tauno Nissinen Engineers Ltd. (Electrical engineering), Blue Node GmbH (theatre
technics), NCC Construction Ltd. (construction) 
 
Photography by Tuuomas Uusheimo 
Archisearch - Kuopio City Theatre / ALA Architects KUOPIO CITY THEATRE / ALA ARCHITECTS
Archisearch - Kuopio City Theatre / ALA ArchitectsKUOPIO CITY THEATRE / ALA ARCHITECTS
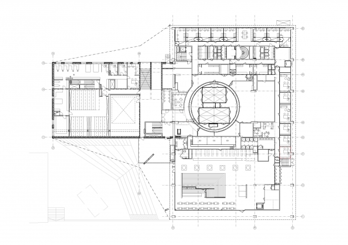
Archisearch - Foyer and Stage Level / Kuopio City Theatre / ALA ArchitectsFOYER AND STAGE LEVEL / KUOPIO CITY THEATRE / ALA ARCHITECTS
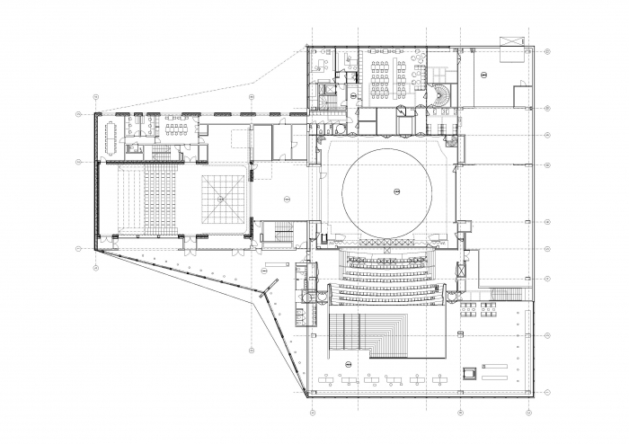
Archisearch - Ground Floor / Kuopio City Theatre / ALA ArchitectsGROUND FLOOR / KUOPIO CITY THEATRE / ALA ARCHITECTS
Archisearch - Kuopio City Theatre / ALA ArchitectsKUOPIO CITY THEATRE / ALA ARCHITECTS
Archisearch - Kuopio City Theatre / ALA ArchitectsKUOPIO CITY THEATRE / ALA ARCHITECTS
Archisearch - Kuopio City Theatre / ALA ArchitectsKUOPIO CITY THEATRE / ALA ARCHITECTS
Archisearch - Kuopio City Theatre / ALA ArchitectsKUOPIO CITY THEATRE / ALA ARCHITECTS
Archisearch - Kuopio City Theatre / ALA ArchitectsKUOPIO CITY THEATRE / ALA ARCHITECTS
Archisearch - Kuopio City Theatre / ALA ArchitectsKUOPIO CITY THEATRE / ALA ARCHITECTS
Archisearch - Kuopio City Theatre / ALA ArchitectsKUOPIO CITY THEATRE / ALA ARCHITECTS
Archisearch - Kuopio City Theatre / ALA ArchitectsKUOPIO CITY THEATRE / ALA ARCHITECTS
Archisearch - Kuopio City Theatre / ALA ArchitectsKUOPIO CITY THEATRE / ALA ARCHITECTS

RELATED ARTICLES