Dream Houses: Laboratory of Architecture #3 designed a home as an avant-garde garden pavilion on the outskirts of Tbilisi, Georgia.

Dream Houses is a curated exploration of domestic architecture where vision, craft, and innovation converge. Each residence is shaped by light, materiality, and intent revealing homes that transcend function to become expressions of a deeply personal yet enduring way of living.

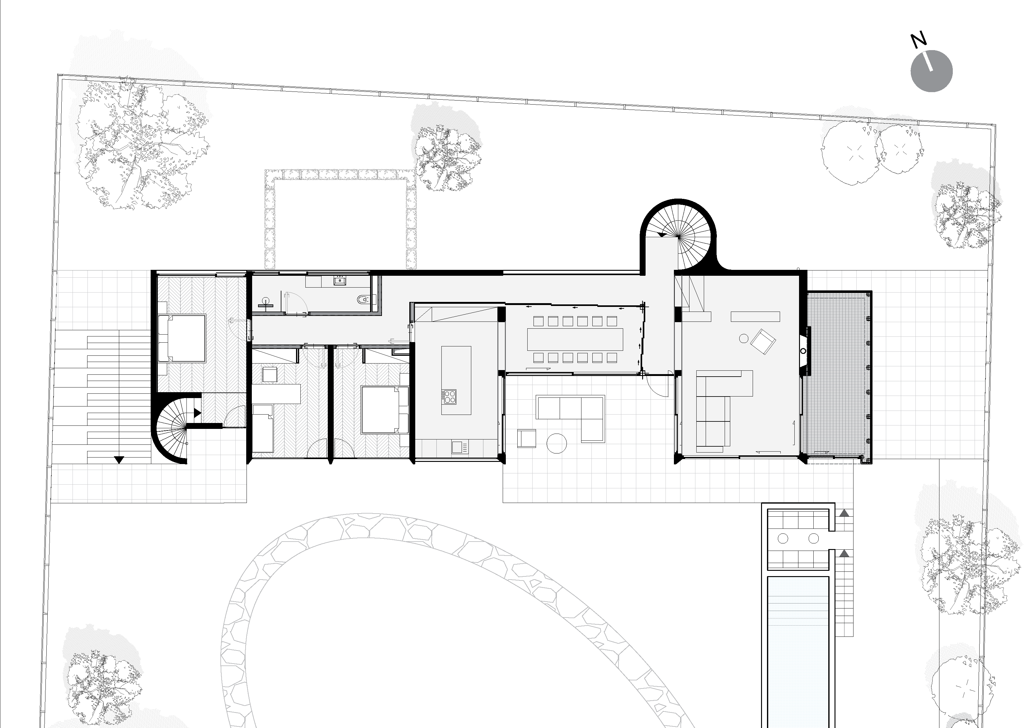
In this chapter, we follow Laboratory of Architecture #3 as they design Terracotta Pavilion House, a 350-square-meter private residence on the outskirts of Tbilisi, Georgia. Conceived as an elongated, single-story volume elevated on a platform, the house pairs earthy terracotta tones with vibrant coral accents, allowing the architecture to resonate with the surrounding landscape while asserting a strong material and chromatic identity.

Set against the expansive terrain of the Caucasus foothills, the composition unfolds horizontally, emphasizing continuity with the site rather than vertical dominance.

The volume’s magnetic presence recalls Bernard Tschumi’s folies at Parc de la Villette, reading as an avant-garde garden pavilion—at once domestic and exploratory.

Part dwelling, part architectural promenade, the structure operates as a sequence of spatial moments, infused with a playful, postmodern sensibility. The composition is articulated through a sequence of voids, cuts, and recesses that carve the mass into inhabitable fragments.

These spatial incisions generate terraces, patios, and semi-outdoor thresholds, blurring the distinction between interior and exterior.

Large glazed openings are strategically placed along the façade, framing panoramic views and allowing the surrounding landscape to be reflected back onto the building envelope.

This constant visual exchange collapses boundaries between public and private realms, reinforcing the house’s porous character.

A concrete spiral staircase introduces a sculptural counterpoint to the otherwise linear geometry. Its tactile, monolithic presence anchors the composition, while simultaneously organizing circulation and vertical connections to the rooftop. In contrast, the adjacent conservatory emerges as a sharply defined cubic volume, distinguished by a grid-like façade system. This transparent structure houses the domestic garden—a reference to the owner’s botanical interests—and operates as a glazed oasis suspended above the terrain.

Acting as both a climatic buffer and a visual lantern, the conservatory frames expansive views of the Caucasus while infusing the interior with filtered daylight.

DEFAULT

Private rooms, including bathrooms and bedrooms, extend directly onto individual patios at ground level. These outdoor extensions enrich the domestic experience by offering secluded micro-landscapes within the broader site, reinforcing the house’s relationship with nature through intimacy rather than spectacle.

Terracotta Pavilion House offers an alternative reading of domestic architecture, transforming the home into a textured terrain designed for exploration, pause, and retreat.

Here, architecture is not merely inhabited but wandered through, inviting moments of concealment and revelation under open skies. The project affirms that a house can be a place where living unfolds between earth and horizon, grounded in material weight while remaining open to light and breeze.

Drawings

 

Facts & Credits
Project title  Terracotta pavilion house
Typology  Private residence, House
Location  Tbilisi, Georgia
Gross Built Area  350 m2
Status  Completed, 2023
Architecture  Laboratory of architecture #3
Lead architects  Dimitri Shapakidze, Irakli Abashidze
Photography  Giorgi Mamasakhlisi


RELATED ARTICLES