Doxiadis’ Own Entopia – House In Apollonion / K-Division Architecture / Mike Kraounakis

EN / GR
Text by the architect 
 
This two-floor house, located in Porto Rafti as part of the “Apollonion” housing estate-work of the famous architect Constantinos Doxiadis-, has been renovated in order to serve the needs of a large family. This housing estate, which was Doxiadis’ final work, was based on an anthropocentric design using beauty, logic and happiness as basic elements, representing in other words, pure architecture. 
 
The project’s title derives from Doxiadis’ wife Emma prologue quote of “The Apollonion’s Chronicle”: “Here he stood and walked, surrounded by the sea, the islands and much beauty and dreamed of his little Entopia”. 
 
It is a great challenge for an architect to work on an existing building with such strong architectural principles and history. It is his duty to research and understand these principles with respect to the work of such a great architect, thus paying his own tribute to him. Therefore, the challenge was to return to these principles, with specific interventions, which aimed to restore the elements that characterized the original architecture of the settlement.  
 
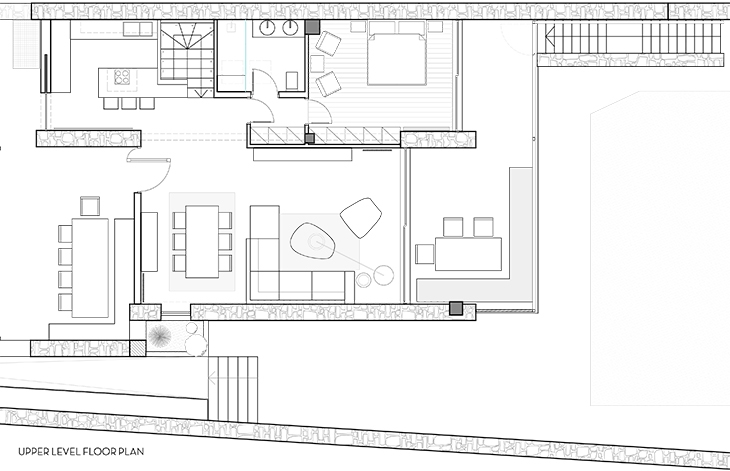
The house, which is a mixed construction of local stone and reinforced concrete, consists of two levels which expand to their respective backyards. The upper level, where the main entrance is located, consists of the living room, the dining room, the kitchen and the master bedroom with its own bathroom. An internal staircase leads to the lower level, which includes four bedrooms and three bathrooms as well as the residence’s service rooms.  
 
The main feature of Doxiadis’ architecture was the choice of natural and plain elements, so as to give the idea that Apollonion had emerged from the earth and is perfectly blended into its surroundings. Due to the housing estate’s different construction phases, one can distinguish the different types of stones in various parts of the estate, always though in harmony with the natural environment.   Following the request of both the owner and the architect, the existing flooring of Karystos slates was maintained and preserved.
 
Also, the balcony’s railing was replaced with that of Doxiadis’ original design and the external staircase’s railing with stone masonry. Doxiadis’ characteristic architectural feature of small cement-framed square windows was imprinted on this stone wall, an element that is repeated in various parts of the estate. Having as a reference the Karystos slate floors and the whitewashed stone masonry, earthly and raw materials where selected and combined with modern furnishing, adding small touches of special color tones, thus creating a modern and fresh atmosphere.  
 
A special mention should be made regarding Doxiadis’ demolished residence, the ruins of which lie there, to this day, to remind us of our lack of cultural sensitivity towards buildings which were part of our architectural heritage. It is fortunate that, organizations such as “Monumenta” exist today, with main purpose, among others, to research, protect, preserve and thus bring to the spotlight the architecture and cultural heritage of Greece, Cyprus and other countries, by initiating the process of characterizing this housing estate as a historic site.   
 
Facts & Credits:
Architect: K-Division Architecture / Mike Kraounakis 
Interior Design: K-Division Architecture 
Construction: K-Division Architecture 
Lighting Design: Lightworks
Photographer: Panagiotis Voumvakis
Text: Mike Kraounakis
 

 
 
 
Η διώροφη αυτή κατοικία, η οποία βρίσκεται στον οικισμό «Απολλώνιο» στο Πόρτο Ράφτη, έργο του Κωνσταντίνου Δοξιάδη, ανακαινίστηκε με σκοπό να εξυπηρετήσει τις ανάγκες μιας πολυμελούς οικογένειας. Ο οικισμός αυτός, ο οποίος ήταν και το τελευταίο έργο του Δοξιάδη, σχεδιάστηκε με μέτρο τον άνθρωπο και κύρια στοιχεία την ομορφιά, τη λογική και την ανθρώπινη ευτυχία, με άλλα λόγια την αληθινή αρχιτεκτονική. 
 
«Εδώ στάθηκε και περπάτησε, τριγυρισμένος από τη θάλασσα, τα νησιά και πολλή ομορφιά και ονειρεύτηκε τη μικρή του Εντοπία», αναφέρει η Έμμα Κ. Δοξιάδη προλογίζοντας «το Χρονικό του Απολλωνίου», εξ’ ου και ο τίτλος.  
 
Μεγάλη η πρόκληση για έναν αρχιτέκτονα να επέμβει σε ένα κτίριο με τόσο ισχυρές αρχιτεκτονικές αρχές αλλά και ιστορία. Είναι χρέος του να τις ερευνήσει και αφομοιώσει σεβόμενος το έργο ενός τόσο μεγάλου αρχιτέκτονα, αποτίνοντας το δικό του φόρο τιμής. Στα πλαίσια αυτά, επιχειρήθηκε η επιστροφή στις βασικές αυτές αρχές, με στοχευμένες παρεμβάσεις, που σκοπό είχαν να επαναφέρουν τα στοιχεία εκείνα που χαρακτήριζαν την αρχιτεκτονική του οικισμού.  
 
Η κατοικία, η οποία χαρακτηρίζεται από το μεικτό φέροντα οργανισμό λιθοδομής και οπλισμένου σκυροδέματος, αποτελείται από δυο επίπεδα τα οποία εκτονώνονται στις αντίστοιχες αυλές τους. Στο ανώτερο επίπεδο, όπου βρίσκεται η κεντρική είσοδος, αναπτύσσονται το σαλόνι με την τραπεζαρία, η κουζίνα καθώς και το κυρίως υπνοδωμάτιο με το λουτρό του. Ένα εσωτερικό κλιμακοστάσιο οδηγεί στο κατώτερο επίπεδο το οποίο περιλαμβάνει τέσσερα υπνοδωμάτια και τρία λουτρά καθώς και τις βοηθητικές χρήσεις της κατοικίας.   Κύριο χαρακτηριστικό της αρχιτεκτονικής του Δοξιάδη ήταν η επιλογή φυσικών, λιτών στοιχείων, τα οποία, θα έδιναν την ιδέα ότι το Απολλώνιο είχε φυτρώσει μέσα από τη γη και σε συνεργασία με τη φύση, θα εντασσόταν στο περιβάλλον του. Λόγω των διαφορετικών φάσεων κατασκευής του οικισμού, θα διακρίνει κανείς την διαφορετικής προέλευσης πέτρα σε διάφορα σημεία του οικισμού πάντα όμως σε αρμονία με το φυσικό περιβάλλον.  
 
Μετά την σύμφωνη γνώμη των ιδιοκτητών και του αρχιτέκτονα, συντηρήθηκε το υπάρχον δάπεδο από πλάκα Καρύστου ενώ παράλληλα, αντικαταστάθηκαν το κάγκελο του εξώστη με αυτό του αρχικού σχεδιασμού του Δοξιάδη, και αυτό της εξωτερικής ευθύγραμμης σκάλας, με λιθοδομή. Πάνω σε αυτή αποτυπώθηκε μια χαρακτηριστική αρχιτεκτονική χειρονομία του Δοξιάδη με τα μικρά τετράγωνα παράθυρα και τσιμεντένια κορνίζα, στοιχείο το οποίο επαναλαμβάνεται σε διάφορα σημεία του οικισμού.   Έχοντας ως υπόβαθρα το δάπεδο από πλάκα Καρύστου αλλά και την ασβεστωμένη λιθοδομή, επιλέχθηκαν γήινα, αδρά υλικά τα οποία, σε συνδυασμό με τη μοντέρνα επίπλωση και τους ιδιαίτερους χρωματικούς τόνους, έδωσαν την απαιτούμενη φρεσκάδα στην κατοικία.  
 
Τέλος, ιδιαίτερη αναφορά πρέπει να γίνει στη κατεδαφισμένη κατοικία του Δοξιάδη, τα συντρίμμια της οποίας κείτονται στην κορυφή του λόφου του Απολλωνίου, ακόμα και σήμερα, ώστε να μας θυμίζουν την ανύπαρκτη πολιτιστική ευαισθησία του λαού μας σε κτίρια τα οποία αποτελούσαν την αρχιτεκτονική μας κληρονομιά. Είναι ευχής έργον που υπάρχουν οργανώσεις όπως η Monumenta, της οποίας σκοπός, ανάμεσα σε άλλα, είναι η έρευνα, προστασία, και διαφύλαξη με σκοπό την ανάδειξη της αρχιτεκτονικής και της εν γένει πολιτιστικής κληρονομιάς όλων των εποχών στην Ελλάδα, την Κύπρο και διεθνώς και η οποία κίνησε τη διαδικασία ώστε να χαρακτηριστεί ο εν λόγω οικισμός ως ιστορικός τόπος.
 
 
 
Archisearch - Doxiadis’ Own Entopia – House In Apollonion / K-Division Architecture / Mike Kraounakis DOXIADIS€? OWN ENTOPIA €? HOUSE IN APOLLONION / K-DIVISION ARCHITECTURE / MIKE KRAOUNAKIS
Archisearch - Doxiadis’ Own Entopia – House In Apollonion / K-Division Architecture / Mike Kraounakis DOXIADIS€? OWN ENTOPIA €? HOUSE IN APOLLONION / K-DIVISION ARCHITECTURE / MIKE KRAOUNAKIS
Archisearch - Doxiadis’ Own Entopia – House In Apollonion / K-Division Architecture / Mike Kraounakis DOXIADIS€? OWN ENTOPIA €? HOUSE IN APOLLONION / K-DIVISION ARCHITECTURE / MIKE KRAOUNAKIS
Archisearch - Doxiadis’ Own Entopia – House In Apollonion / K-Division Architecture / Mike Kraounakis / Photography by Panagiotis VoumvakisDOXIADIS€? OWN ENTOPIA €? HOUSE IN APOLLONION / K-DIVISION ARCHITECTURE / MIKE KRAOUNAKIS / PHOTOGRAPHY BY PANAGIOTIS VOUMVAKIS
Archisearch - Doxiadis’ Own Entopia – House In Apollonion / K-Division Architecture / Mike Kraounakis / Photography by Panagiotis VoumvakisDOXIADIS€? OWN ENTOPIA €? HOUSE IN APOLLONION / K-DIVISION ARCHITECTURE / MIKE KRAOUNAKIS / PHOTOGRAPHY BY PANAGIOTIS VOUMVAKIS
Archisearch - Doxiadis’ Own Entopia – House In Apollonion / K-Division Architecture / Mike Kraounakis / Photography by Panagiotis VoumvakisDOXIADIS€? OWN ENTOPIA €? HOUSE IN APOLLONION / K-DIVISION ARCHITECTURE / MIKE KRAOUNAKIS / PHOTOGRAPHY BY PANAGIOTIS VOUMVAKIS
Archisearch - Doxiadis’ Own Entopia – House In Apollonion / K-Division Architecture / Mike Kraounakis / Photography by Panagiotis VoumvakisDOXIADIS€? OWN ENTOPIA €? HOUSE IN APOLLONION / K-DIVISION ARCHITECTURE / MIKE KRAOUNAKIS / PHOTOGRAPHY BY PANAGIOTIS VOUMVAKIS
Archisearch - Doxiadis’ Own Entopia – House In Apollonion / K-Division Architecture / Mike Kraounakis / Photography by Panagiotis VoumvakisDOXIADIS€? OWN ENTOPIA €? HOUSE IN APOLLONION / K-DIVISION ARCHITECTURE / MIKE KRAOUNAKIS / PHOTOGRAPHY BY PANAGIOTIS VOUMVAKIS
Archisearch - Doxiadis’ Own Entopia – House In Apollonion / K-Division Architecture / Mike Kraounakis / Photography by Panagiotis VoumvakisDOXIADIS€? OWN ENTOPIA €? HOUSE IN APOLLONION / K-DIVISION ARCHITECTURE / MIKE KRAOUNAKIS / PHOTOGRAPHY BY PANAGIOTIS VOUMVAKIS
Archisearch - Doxiadis’ Own Entopia – House In Apollonion / K-Division Architecture / Mike Kraounakis / Photography by Panagiotis VoumvakisDOXIADIS€? OWN ENTOPIA €? HOUSE IN APOLLONION / K-DIVISION ARCHITECTURE / MIKE KRAOUNAKIS / PHOTOGRAPHY BY PANAGIOTIS VOUMVAKIS
Archisearch - Doxiadis’ Own Entopia – House In Apollonion / K-Division Architecture / Mike Kraounakis / Photography by Panagiotis VoumvakisDOXIADIS€? OWN ENTOPIA €? HOUSE IN APOLLONION / K-DIVISION ARCHITECTURE / MIKE KRAOUNAKIS / PHOTOGRAPHY BY PANAGIOTIS VOUMVAKIS
Archisearch - Doxiadis’ Own Entopia – House In Apollonion / K-Division Architecture / Mike Kraounakis / Photography by Panagiotis VoumvakisDOXIADIS€? OWN ENTOPIA €? HOUSE IN APOLLONION / K-DIVISION ARCHITECTURE / MIKE KRAOUNAKIS / PHOTOGRAPHY BY PANAGIOTIS VOUMVAKIS
Archisearch - Doxiadis’ Own Entopia – House In Apollonion / K-Division Architecture / Mike Kraounakis / Photography by Panagiotis VoumvakisDOXIADIS€? OWN ENTOPIA €? HOUSE IN APOLLONION / K-DIVISION ARCHITECTURE / MIKE KRAOUNAKIS / PHOTOGRAPHY BY PANAGIOTIS VOUMVAKIS
Archisearch - Doxiadis’ Own Entopia – House In Apollonion / K-Division Architecture / Mike Kraounakis / Photography by Panagiotis VoumvakisDOXIADIS€? OWN ENTOPIA €? HOUSE IN APOLLONION / K-DIVISION ARCHITECTURE / MIKE KRAOUNAKIS / PHOTOGRAPHY BY PANAGIOTIS VOUMVAKIS

RELATED ARTICLES