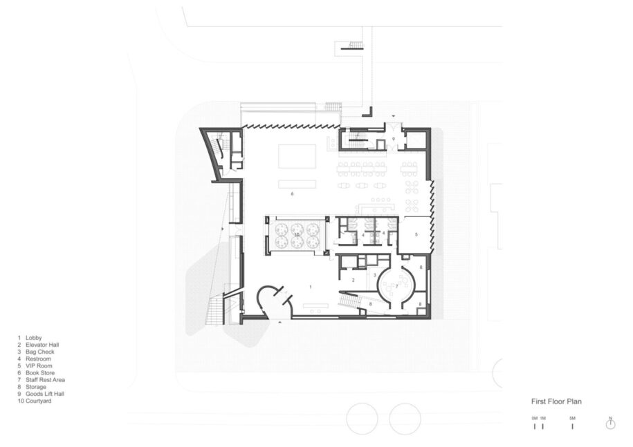
26JAN 2021 Changjiang-Art-Museum-First Floor Plan EDITOR: MELINA ARVANITI-POLLATOU CATEGORY: 0 COMMENTS SHARE THIS ALL PHOTOS
INTERIORS 10DEC 2025 MORE WITH LESS // Psyhiko Apartment: A living space that evolved over time | by Natalia Nerantzaki by PENNY CHORAFAArchisearchhttps://www.archisearch.gr/wp-content/uploads/01_VPR00034-copy-370x700.jpg
ARCHITECTURE 10DEC 2025 ARCHITECTURE IN COLOUR // Práctica Arquitectura designs Ederlezi, a reddish structure that blends into the mountains of Mexico. by MARIA DIMITRIOU - TSAKNAKIArchisearchhttps://www.archisearch.gr/wp-content/uploads/DD-PA-ED-07-370x700.jpg
INTERIORS 09DEC 2025 Nefelia Studio completed Continuum home office in Exarcheia based on a bold chromatic narrative by MARIA DIMITRIOU - TSAKNAKIArchisearchhttps://www.archisearch.gr/wp-content/uploads/1-217-370x700.jpg