Casa La Quinta | Pablo Pérez Palacios + Alfonso de la Concha Rojas, Miguel Vargas, Blas Trevinõ, Jorge Quiroga

Casa La Quinta, designed by Mexican architects Pablo Pérez Palacios + Alfonso de la Concha Rojas, Miguel Vargas, Blas Trevinõ, Jorge Quiroga, is a weekend house located in the town of San Miguel de Allende, Guanajuato in central Mexico.

Casa La Quinta, Pablo Pérez Palacios + Alfonso de la Concha Rojas, Miguel Vargas, Blas Trevinõ, Jorge Quiroga, house, San Miguel de Allende, Mexico, Residential, Architecture, Design Casa La Quinta, Pablo Pérez Palacios + Alfonso de la Concha Rojas, Miguel Vargas, Blas Trevinõ, Jorge Quiroga, house, San Miguel de Allende, Mexico, Residential, Architecture, Design Casa La Quinta, Pablo Pérez Palacios + Alfonso de la Concha Rojas, Miguel Vargas, Blas Trevinõ, Jorge Quiroga, house, San Miguel de Allende, Mexico, Residential, Architecture, Design

text provided by the architects – After visiting the site and considering the requirements of the program, the conclusion was to respect the identity of the place, built context and the importance of the height of the neighboring preexistent walls. This last were taken and conceived as limits that would define the empty space between them.

Casa La Quinta, Pablo Pérez Palacios + Alfonso de la Concha Rojas, Miguel Vargas, Blas Trevinõ, Jorge Quiroga, house, San Miguel de Allende, Mexico, Residential, Architecture, Design Casa La Quinta, Pablo Pérez Palacios + Alfonso de la Concha Rojas, Miguel Vargas, Blas Trevinõ, Jorge Quiroga, house, San Miguel de Allende, Mexico, Residential, Architecture, Design Casa La Quinta, Pablo Pérez Palacios + Alfonso de la Concha Rojas, Miguel Vargas, Blas Trevinõ, Jorge Quiroga, house, San Miguel de Allende, Mexico, Residential, Architecture, Design

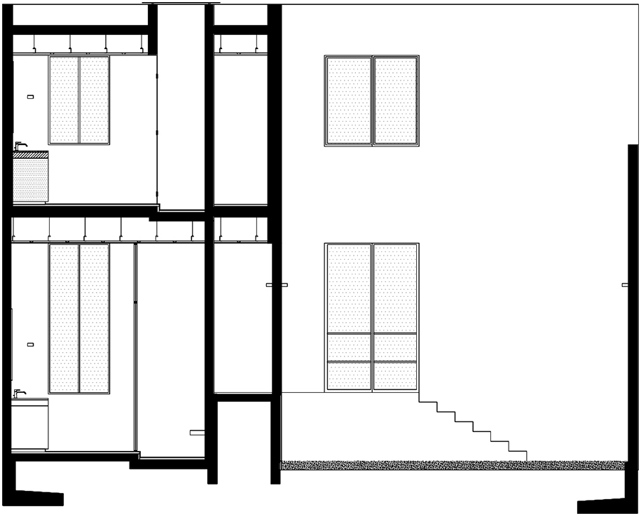
The distribution in the ground floor plan comes from this concept, leaving the social space without divisions and boundaries with the outdoor space.

Casa La Quinta, Pablo Pérez Palacios + Alfonso de la Concha Rojas, Miguel Vargas, Blas Trevinõ, Jorge Quiroga, house, San Miguel de Allende, Mexico, Residential, Architecture, Design Casa La Quinta, Pablo Pérez Palacios + Alfonso de la Concha Rojas, Miguel Vargas, Blas Trevinõ, Jorge Quiroga, house, San Miguel de Allende, Mexico, Residential, Architecture, Design Casa La Quinta, Pablo Pérez Palacios + Alfonso de la Concha Rojas, Miguel Vargas, Blas Trevinõ, Jorge Quiroga, house, San Miguel de Allende, Mexico, Residential, Architecture, Design Casa La Quinta, Pablo Pérez Palacios + Alfonso de la Concha Rojas, Miguel Vargas, Blas Trevinõ, Jorge Quiroga, house, San Miguel de Allende, Mexico, Residential, Architecture, Design Casa La Quinta, Pablo Pérez Palacios + Alfonso de la Concha Rojas, Miguel Vargas, Blas Trevinõ, Jorge Quiroga, house, San Miguel de Allende, Mexico, Residential, Architecture, Design

Having a scheme that works inwards all the restrictions and having no nearby views to the landscape, 3 void spaces were proposed in the plan in the form of patios, each one with different character, use and program. These voids give the project its character, producing different perception of scale to the user, a high contrast of light and shadows, spaces of silence and rest.

Casa La Quinta, Pablo Pérez Palacios + Alfonso de la Concha Rojas, Miguel Vargas, Blas Trevinõ, Jorge Quiroga, house, San Miguel de Allende, Mexico, Residential, Architecture, Design Casa La Quinta, Pablo Pérez Palacios + Alfonso de la Concha Rojas, Miguel Vargas, Blas Trevinõ, Jorge Quiroga, house, San Miguel de Allende, Mexico, Residential, Architecture, Design Casa La Quinta, Pablo Pérez Palacios + Alfonso de la Concha Rojas, Miguel Vargas, Blas Trevinõ, Jorge Quiroga, house, San Miguel de Allende, Mexico, Residential, Architecture, Design

Casa La Quinta, Pablo Pérez Palacios + Alfonso de la Concha Rojas, Miguel Vargas, Blas Trevinõ, Jorge Quiroga, house, San Miguel de Allende, Mexico, Residential, Architecture, Design Casa La Quinta, Pablo Pérez Palacios + Alfonso de la Concha Rojas, Miguel Vargas, Blas Trevinõ, Jorge Quiroga, house, San Miguel de Allende, Mexico, Residential, Architecture, Design

Casa La Quinta, Pablo Pérez Palacios + Alfonso de la Concha Rojas, Miguel Vargas, Blas Trevinõ, Jorge Quiroga, house, San Miguel de Allende, Mexico, Residential, Architecture, Design

Casa La Quinta, Pablo Pérez Palacios + Alfonso de la Concha Rojas, Miguel Vargas, Blas Trevinõ, Jorge Quiroga, house, San Miguel de Allende, Mexico, Residential, Architecture, Design

Casa La Quinta, Pablo Pérez Palacios + Alfonso de la Concha Rojas, Miguel Vargas, Blas Trevinõ, Jorge Quiroga, house, San Miguel de Allende, Mexico, Residential, Architecture, Design

Casa La Quinta, Pablo Pérez Palacios + Alfonso de la Concha Rojas, Miguel Vargas, Blas Trevinõ, Jorge Quiroga, house, San Miguel de Allende, Mexico, Residential, Architecture, Design

Facts & Credits

Location San Miguel De Allende, Mexico
Year 2017
Area 350 m²
Project team Pablo Pérez Palacios + Alfonso de la Concha Rojas, Miguel Vargas, Blas Trevinõ, Jorge Quiroga
Photography Rafael Gamo

See also the House in Serralves designed by Portuguese architect João Vieira de Campos here!


RELATED ARTICLES