Project Casa 0006 by Taller 11 architecture studio was developed in response to specific client requests and the urban environment in which it is situated. The design aims to maximize space utilization while adhering to budget constraints by creating an intermediate space that serves as a multi-purpose area and enhances the overall interior conditions. The use of lightweight and thermal inertia construction techniques, along with strategic ventilation and insulation, contribute to energy efficiency and comfort within the house.
-text by the authors

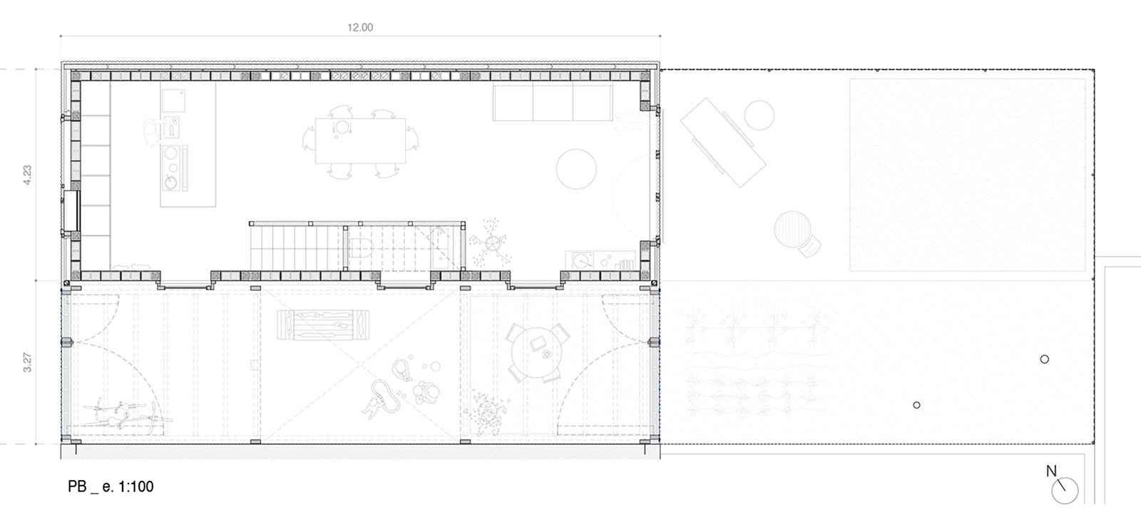
The project arose from the combined requests expressed by the clients regarding its programme and the characteristics of the urban environment in which the project is located, with the added conditioning factors of being a plot between party walls built on one side only, and with a tight initial budget. In relation to the programmatic needs, the users are a couple with two daughters. With this condition, and also adding the clients’ demand for multi-purpose spaces in the house, the required living area is pre-dimensioned: the result is well below the maximum permitted built area -approximately 150 m2 required < 270 m2 possible by regulations, excluding the attic-.
With these premises, the project proposes to retreat the interior space from the south-west party wall, maintaining the maximum permitted volume and freeing up a strip that has a favorable orientation and functions as an intermediate space capable of improving the conditions of the interior space. This gesture minimizes the built and climatized surface area to that which is strictly necessary, reduces the cost of the construction work and offers a space with differentiated characteristics and uses with -variable- comfort at a low price.
The intermediate space is solved with lightweight construction -transparency, absorption, fast response- and the interior spaces volume with wet construction -thermal inertia, stability, slow response-. However, the interior enclosures and the staircase are also lightweight, facilitating future modifications, unifying the spatial perception of the whole and making the surfaces close to the users friendlier to the touch.
To increase the accumulation of passively captured energy through the intermediate space, it is necessary to incorporate construction solutions that provide thermal inertia. For economic reasons, construction tradition and speed of execution, the structure of the interior spaces is resolved with mortar block masonry, the cavities of which are filled with compacted earth from the excavation.
This results in a low-cost construction system with high thermal inertia and good hygrothermal performance, which at the same time reduces the production of construction waste. The wall that separates the two spaces of the house –intermediate wall– is not insulated and acts as an accumulator of incident solar radiation, releasing it into the interior at night. The thickness has been dimensioned specifically for this function, ensuring that it compensates for energy losses.
The intermediate space is used to improve the performance of the outdoor aerothermal unit, making it exchange with this space, which has a more favourable temperature than the outside, and to carry out the air renewals of the interior space, reducing losses.
In addition to this strategy, there are large openings on the SE façade, cross and night ventilation, and generous insulation with wood fibre panels not only on the façades and roof but also on the NE party wall. The only air-conditioning system in the house is a 20 cm active concrete floor slab on the ground floor, the heat of which is transmitted through the mass of the floor slabs -of concrete joists and vaults– and the staircase -which can be divided into sections- to the upper spaces.
Plans



Facts & Credits
Project title: CASA 0006
Project type: Architecture, House between party walls
Architecture: Taller 11
Design team: Roger Maranges Bayó, Ignasi Casas Claramunt, Meri Mensa Biosca, Sandra Prat Trallero, Sara Ferran Ballús, Víctor Nadales Morales, Anna Burgaya Verdaguer
Collaborators: Ivan Roguera (Structure), Henrique Muniz (Architect)
Location: Barcelona, Spain
Built area: 236 m2
Date of completion: 2022
Photography: Atzar López Vilanova







