The SOCIAL HOUSING series selects and presents student works that revisit collective housing throughout Greece and globally offering visionary reinterpretations of common living. 

Foinikas: a manual for restoring and revitalizing the housing complex

In their design thesis project, students Argiri Iris Roditou and Eleni Paraskevi Taxi address the housing issue in Greek cities, along with the need to develop policies and strategies for managing and repurposing existing buildings. Focusing on the case of Foinikas in Kalamaria, Thessaloniki, they propose the upgrade and restoration of residences through an adaptive reuse approach.

This thesis examines the issue of housing in contemporary Greek cities, focusing on the use of existing structures through restoration and adaptive design.

The shortage of contemporary and affordable housing has become a major problem in Greece— reflecting a broader international trend—that has intensified in recent years.

ΦΩΤΟΓΡΑΦΙΑ: Δ. ΦΑΤΟΥΡΟΥ

The urban fabric is almost entirely composed of buildings from the 1950s and 1960s, as well as buildings from the 1970s and 1980s, developed under the “antiparochi system”. While these structures met the housing needs of their time, they are often considered inadequate and, in many cases, neglected and in need of restoration.

In recent years, the management of these buildings has emerged as a significant issue. At the same time, new construction is primarily concentrated in suburban areas, carried out in a fragmented and uncoordinated manner, largely driven by the market.

As an alternative to urban sprawl, the adaptive reuse and upgrading of existing buildings is proposed as a sustainable solution that reduces environmental impact while preserving historical continuity in the urban fabric.

Although the state now provides some incentives to individuals to upgrade their homes, there is still a substantial lack of welfare in housing policy.

Within this context, the thesis proposes a strategic intervention in areas and buildings where the state can play a more active role—potentially in collaboration with the private sector.

Based on this approach, the study focuses on the case of Foinikas in Kalamaria.

This housing complex-settlement was built in 1962 by the Ministry of Public Works and Welfare of the time to accommodate former refugees in Thessaloniki.

Like other housing projects developed by the Organization for Workers’ Housing (OEK) and the Welfare Ministry during that period, the complex exhibits elements of modernist architecture, wide streets, and extensive common spaces between the buildings.

The research examines the housing complex in both its original and present state, analyzing the different apartment-building typologies and the modifications made over time. Additionally, observations are drawn regarding the use and management of communal spaces by residents.

Moving from a broader urban scale to architectural typology and design, the thesis concludes with a series of proposed solutions and technical details. These interventions, developed through research and feasibility studies, aim to improve the living conditions in these buildings.

A key proposal is the restoration of the existing structures and the addition of a lightweight, self-supporting CLT (cross-laminated timber) construction on the southern façades of the apartment blocks. This new structure functions as a semi-outdoor space, expanding the area of the apartments.

At the same time, gentle interventions are planned in the communal spaces, centered on the creation of a space for the community—a shared space open to all residents.

A pilot project is proposed for block no.8, selected for its typological diversity, small scale and strong presence of greenery. The phasing of the project is: architectural design, community mobilization, adaptation of building regulations through legislative reform, land allocation, securing funding and, finally, construction using prefabricated CLT components.

This thesis wishes to contribute to a broader discourse on urban dwelling, including the role of the state and local communities in it, as well as the importance of maintainance and renewal of existing housing structures and settlements.

Facts & Credits
Project title Foinikas: a manual for restoring and revitalizing the housing complex
Type Design Diploma Thesis
Students Argiri Iris Roditou, Eleni Paraskevi Taxi 
Supervisor Platon Issaias
Presentation Date February 2025
University School of Architecture, Aristotle University of Thessaloniki
Text by the authors

Workers housing: Resolution practices, the example of Workers’ Housing Organization

In their research diploma thesis entitled “Workers housing: Resolution practices, the example of Workers’ Housing Organization” students Stylliani Akrítidou and Maroudi Georgakopoulou, starting from the percpetion of workers’ settlements as a phenomenon that condenses the interactions between housing, labor, and society, study examples of social housing, specifically implemented projects by the Workers’ Housing Organization (OEK). The aim of the thesis is to search for tools and practices for addressing the housing crisis.

Housing for the lower social classes remains a persistent and complex social issue, as it significantly influences the development of housing and urban spaces in modern cities. This research aims to understand the spatial conditions of workers over different periods and their associated challenges.

Worker housing estates represent a multifaceted phenomenon, reflecting the interplay between housing, labor, and society.

Today, the housing crisis remains a pressing issue, highlighting the need for more effective approaches that ensure both quality and affordable housing.

This raises critical questions: how can standardization address user needs, and how can these needs be translated into design goals?

Read more about the project, here!

Facts & Credits
Project title Workers housing: Resolution practices, the example of Workers’ Housing Organization
Type Research Diploma Thesis
Students Akritidou Styliani, Georgakopoulou Maroudi
Supervisor Vougia Alexandra
Presentation Date February 2024
University School of Architecture, Technical University of Crete
Text by the authors

Collective Housing in Kalamaria

This diploma thesis by Vouvalis Nikolaos, Sakarikas Konstantinos, Psychloudis Spyridon, titled Collective Housing in Kalamaria, Thessaloniki presents an approach within the framework of urban collective living. The project, designed to enhance social interaction while respecting individual needs, harmoniously integrates architecture, public urban space, and functionality into a cohesive living environment.

Collective housing (co-living) is a modern response to the challenges of urban life, promoting a residential model that combines privacy with community.

The aim of the project is to showcase a housing model that combines privacy with collectivity, encouraging social interaction through shared spaces and functions.

By strengthening the sense of community and smartly organizing living spaces, the proposal aspires to be a vibrant example of collective housing that promotes social well-being and sustainable development.

Read more about the project, here!

Facts & Credits
Title Collective Housing in Kalamaria
Type Design Diploma Thesis
Students Vouvalis Nikolaos, Sakarikas Konstantinos, Psychloudis Spyridon
Supervisors D. Polychronopoulos, M. Grigoriadou, P. Gouliaris
Presentation Date June 2024
University School of Architecture Democritus University of Thrace
Text by the authors

Cooperativa: Pilot cohousing project proposal near Pikrodafni stream

The focus of this master thesis project by Aithra Vorvolakou and Dimitra Siamou is the pilot implementation of a co-housing program, near Pikrodafni stream in Aghios Dimitrios area.

Prompts for this project were the current housing crisis, which undermines the right to housing, the different states of living that arose during the COVID-19 period, as well as the global climate crisis, regarding the building methods and materials.

An important parameter that was considered in the design process is the concept of architectural flexibility, as an element that promotes the participation of users in shaping the space, thus meeting their constantly fluctuating needs.  Therefore, this cooperative housing program is addressed to a wide range of social groups, a community that chooses to reside in it.

The aim of this thesis project was the pilot implementation of a co-housing model in Greece, not only in terms of its particular operating program, but also in terms of construction materials, the possibility of architectural flexibility of interior spaces, and its proximity to a unique natural element – the Pikrodafni stream. 

Read more about the project, here!

Facts & Credits
Title Cooperativa: Pilot cohousing project proposal near Pikrodafni stream
Type Diploma Thesis
Students Aithra Vorvolakou, Dimitra Siamou
Supervisors Stavros Stavrides, Eleftheria Tsakanika
Presentation Date July 2024
University National Technical University of Athens, School of Architecture
Text by the authors

Designing for Social Interaction: A Study of Common Spaces in Barcelona’s Housing Projects

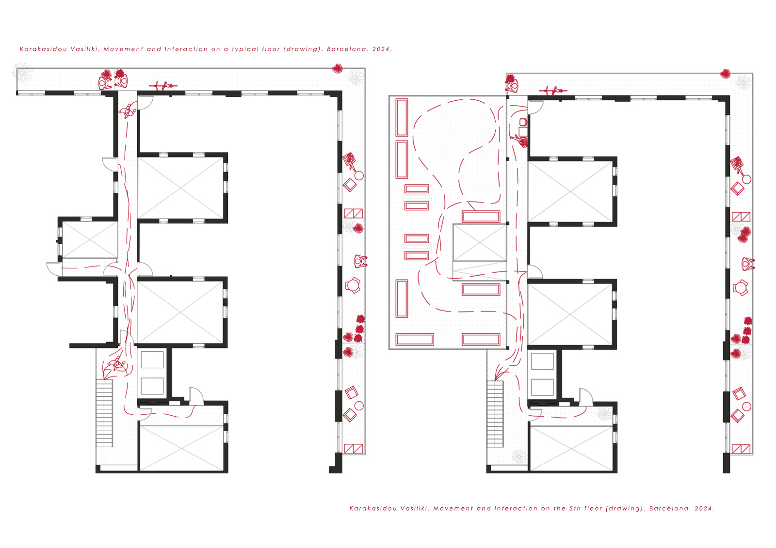
This thesis explores the intersection of architectural design and social dynamics, focusing on how common spaces can promote movement and social interaction in residential housing projects. Drawing from Jan Gehl’s principles on public spaces, the research begins by exploring the impact of spatial design on social interactions and movement in public spaces and then shifting its focus on housing projects.

The thesis uses a complex methodology, analyzing three case studies of collective housing in Barcelona- 111 Building by Flores i Prats Arquitectes, La Chalmeta by Pau Vidal and Vivas Arquitectos and Modulus Matrix by Peris + Toral Arquitectes. Every case is examined through three perspectives: the initial design objectives and intentions, the spatial layout and structure based on key architectural parameters, and a post-occupancy analysis involving on-site visits, direct observations, and interviews with residents.

This approach allows for a better understanding of how common spaces perform in practice and how they impact the everyday experiences of the inhabitants.

The analysis highlights key design factors that shape social behavior: the scale of common spaces, spatial flexibility, and the inclusion of personal elements. Additionally, it emphasizes the importance of visual connectivity and diverse spatial levels to avoid feelings of enclosure.

Read more about the project, here!

Facts & Credits
Project title Designing for Social Interaction: A Study of Common Spaces in Barcelona’s Housing Projects
Type Research Diploma Thesis
Student Vasiliki Karakasidou
Supervisor Júlia Beltran Borrás
Presentation Date October 2024
University Universitat Politécnica de Catalunya, Escola Técnica Superior d´Arquitectura de Barcelona, Department of Architectural  Design Barcelona, Master of Advanced Studies in Architecture, MBArch, Contemporary Project – Architectures of Collective Living
Text by the author


RELATED ARTICLES