These four student works approach architecture as a lived and relational practice, exploring an anthropology of space. From networks of care and cooperative housing to autoethnographic narratives, space is understood not as a neutral container but as a cultural construct shaped by memory, social interaction, and collective life. Together, the projects reveal how architecture mediates care, identity, and coexistence within the spatial narratives of contemporary society.
Αυτές οι τέσσερις φοιτητικές εργασίες προσεγγίζουν την αρχιτεκτονική ως μια βιωμένη και σχεσιακή πρακτική, διερευνώντας μια ανθρωπολογία του χώρου. Από δίκτυα φροντίδας και συνεργατική κατοίκηση έως αυτοεθνογραφικές αφηγήσεις, ο χώρος νοείται όχι ως ένα ουδέτερο δοχείο αλλά ως ένα πολιτισμικό κατασκεύασμα που διαμορφώνεται από τη μνήμη, την κοινωνική αλληλεπίδραση και τη συλλογική ζωή. Συνολικά, τα έργα αναδεικνύουν πώς η αρχιτεκτονική διαμεσολαβεί τη φροντίδα, την ταυτότητα και τη συνύπαρξη μέσα στις χωρικές αφηγήσεις της σύγχρονης κοινωνίας.
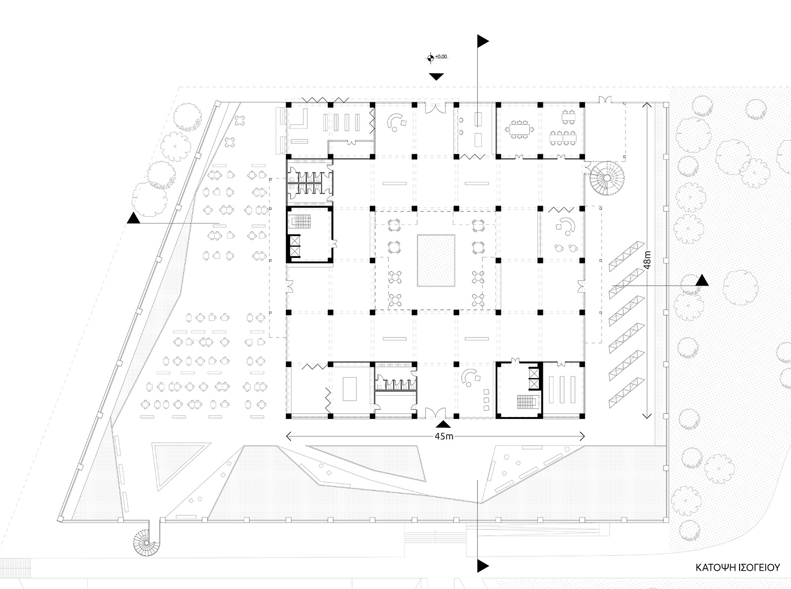
‘(Re) Shaping the SepoliaNeighborhood: A Social Architecture Network of Care, Accommodation, and Community Functions for Children and Adolescents around Kolokynthou Square’, by Christiana Papadogeorgi and Persefoni Vlachoutsikou
Approached through an anthropology of space, the proposal for Kolokynthou Square in Sepolia redefines architecture as a network of care embedded in everyday urban life. Rather than treating buildings and public space as autonomous objects, the project constructs a relational environment where spatial units, social practices, and neighborhood routines continuously interact. In this Diploma thesis by Christiana Papadogeorgi and Persefoni Vlachoutsiko, the intervention unfolds across five parcels and the redesigned square, forming a cohesive master plan that prioritizes inclusion, encounter, and collective use.
Προσεγγίζοντας τον σχεδιασμό μέσα από την ανθρωπολογία του χώρου, η πρόταση για την Πλατεία Κολοκυνθούς στα Σεπόλια επαναπροσδιορίζει την αρχιτεκτονική ως ένα δίκτυο φροντίδας ενταγμένο στην καθημερινή αστική ζωή. Αντί να αντιμετωπίζει τα κτίρια και τον δημόσιο χώρο ως αυτόνομα αντικείμενα, το έργο συγκροτεί ένα σχεσιακό περιβάλλον όπου οι χωρικές ενότητες, οι κοινωνικές πρακτικές και οι ρουτίνες της γειτονιάς αλληλεπιδρούν διαρκώς. Στη Διπλωματική Εργασία των Χριστιάνας Παπαγεωργίου και Περσεφόνης Βλαχούτσικου, η επέμβαση αναπτύσσεται σε πέντε οικόπεδα και στην ανασχεδιασμένη πλατεία, συγκροτώντας ένα ενιαίο master plan που δίνει προτεραιότητα στη συμπερίληψη, τη συνάντηση και τη συλλογική χρήση.
At its core lies a center for the accommodation and protection of unaccompanied minors, organized according to age-specific spatial typologies that reflect different rhythms of growth, autonomy, and socialization. For younger children, rooms are directly linked to play areas, reinforcing supervision and proximity, while for adolescents, “small house” clusters and semi-open communal spaces foster independence within a supportive framework. Psychological, social, and educational functions are deliberately integrated into everyday living spaces, normalizing care and reducing institutional stigma.
Στον πυρήνα της πρότασης βρίσκεται ένα κέντρο φιλοξενίας και προστασίας ασυνόδευτων ανηλίκων, οργανωμένο βάσει ηλικιακά διαφοροποιημένων χωρικών τυπολογιών που αντανακλούν διαφορετικούς ρυθμούς ανάπτυξης, αυτονομίας και κοινωνικοποίησης. Για τα μικρότερα παιδιά, τα δωμάτια συνδέονται άμεσα με χώρους παιχνιδιού, ενισχύοντας την εποπτεία και την εγγύτητα, ενώ για τους εφήβους, συστάδες «μικρών σπιτιών» και ημιυπαίθριοι κοινόχρηστοι χώροι καλλιεργούν την ανεξαρτησία μέσα σε ένα υποστηρικτικό πλαίσιο. Οι ψυχολογικές, κοινωνικές και εκπαιδευτικές λειτουργίες ενσωματώνονται σκόπιμα στους χώρους καθημερινής διαβίωσης, κανονικοποιώντας τη φροντίδα και αποφεύγοντας τον ιδρυματικό χαρακτήρα.
The square operates as a shared social field, reorganizing movement flows and introducing spaces for pause, play, and greenery, while pedestrianized edges and open arcades mediate between private and public life. Facades, grids, and shaded platforms become interfaces of interaction, articulating a spatial language that situates protection, community, and belonging within the lived fabric of the neighborhood.
Η πλατεία λειτουργεί ως κοινό κοινωνικό πεδίο, αναδιοργανώνοντας τις ροές κίνησης και εισάγοντας χώρους στάσης, παιχνιδιού και πρασίνου, ενώ τα πεζοδρομημένα όρια και οι ανοιχτές στοές διαμεσολαβούν ανάμεσα στην ιδιωτική και τη δημόσια ζωή. Οι όψεις, τα πλέγματα και οι σκιασμένες πλατφόρμες μετατρέπονται σε επιφάνειες αλληλεπίδρασης, διαμορφώνοντας μια χωρική γλώσσα που εντάσσει την προστασία, την κοινότητα και το αίσθημα του ανήκειν στον βιωμένο ιστό της γειτονιάς.
Facts & Credits
Typology Diploma Thesis
Supervisor G. Aggelis
Academic year 2023-2024
Institution Architecture School, National Technical University of Athens
Living Debris, proposal submitted to the “Co-Habiting Vacancies” competition, by students Georgia Gousiou, Eirini Giannoudi, Katerina Mitsioni, Eva Stamna
Living Debris reinterprets the unfinished Paraplegics Building within the AUTH campus as a framework of collective habitation, learning, and ecological awareness. Submitted to the “Co-Habiting Vacancies” competition (CoHab Athens, 2024), this student proposal transforms an abandoned structural shell into a cooperative housing community for approximately 100 students, foregrounding social interaction as a fundamental spatial driver.
Η πρόταση Living Debris επανερμηνεύει το ημιτελές Κτίριο Παραπληγικών στην πανεπιστημιούπολη του ΑΠΘ ως ένα πλαίσιο συλλογικής κατοίκησης, μάθησης και περιβαλλοντικής ευαισθητοποίησης. Ως φοιτητική πρόταση που υποβλήθηκε στον διαγωνισμό «Co-Habiting Vacancies» (CoHab Athens, 2024), το έργο μετασχηματίζει έναν εγκαταλελειμμένο φέροντα οργανισμό σε μια συνεταιριστική κοινότητα κατοικίας για περίπου 100 φοιτητές, αναδεικνύοντας την κοινωνική αλληλεπίδραση ως βασική χωρική αρχή.
Rather than treating housing as a purely functional container, the project constructs a layered social infrastructure where everyday practices—studying, cooking, meeting, and leisure—are spatially intertwined. Public and semi-public uses occupy the lower levels, accessible to the wider university community, forming a social hub that hosts reading rooms, workshops, a library, and cultural spaces. In this way, the building operates as a porous interface between campus life and collective dwelling.
Αντί να αντιμετωπίζει την κατοίκηση ως ένα καθαρά λειτουργικό κέλυφος, η πρόταση συγκροτεί μια πολυεπίπεδη κοινωνική υποδομή όπου οι καθημερινές πρακτικές —μελέτη, μαγείρεμα, συνάντηση και αναψυχή— αλληλοδιαπλέκονται χωρικά. Οι χαμηλότερες στάθμες φιλοξενούν δημόσιες και ημι-δημόσιες χρήσεις, προσβάσιμες σε ολόκληρη την πανεπιστημιακή κοινότητα, συγκροτώντας έναν κοινωνικό κόμβο με αναγνωστήρια, εργαστήρια, βιβλιοθήκη και πολιτιστικούς χώρους. Με αυτόν τον τρόπο, το κτίριο λειτουργεί ως πορώδης διεπιφάνεια ανάμεσα στη ζωή του πανεπιστημίου και τη συλλογική κατοίκηση.
The residential floors are organized around a central atrium that acts as both a climatic regulator and a vertical social core, structuring co-presence and visual connectivity. Shared kitchens, living areas, and balconies encourage communal routines, while accessible units and flexible layouts reflect diverse patterns of living. The rooftop garden, sports grounds, and open exterior areas extend habitation into productive and recreational landscapes.
Οι όροφοι κατοικίας οργανώνονται γύρω από ένα κεντρικό αίθριο, το οποίο λειτουργεί ταυτόχρονα ως βιοκλιματικός ρυθμιστής και ως κατακόρυφος κοινωνικός πυρήνας, ενισχύοντας τη συνύπαρξη και τη οπτική διασύνδεση. Κοινόχρηστες κουζίνες, καθιστικά και εξώστες ενθαρρύνουν τις συλλογικές ρουτίνες, ενώ οι προσβάσιμες μονάδες και οι ευέλικτες διατάξεις ανταποκρίνονται σε διαφορετικά πρότυπα διαβίωσης. Ο κήπος στην οροφή, οι αθλητικοί χώροι και οι υπαίθριες επιφάνειες επεκτείνουν την κατοίκηση σε παραγωγικά και ψυχαγωγικά τοπία.
Environmental strategies—solar energy, rainwater harvesting, and passive climate control—are integrated with a cooperative governance model, proposing housing not only as shelter but as a socially and ecologically embedded system of coexistence.
Οι περιβαλλοντικές στρατηγικές —ηλιακή ενέργεια, συλλογή όμβριων υδάτων και παθητικός κλιματισμός— συνδυάζονται με ένα συνεταιριστικό μοντέλο διακυβέρνησης, προτείνοντας την κατοίκηση όχι μόνο ως στέγαση, αλλά ως ένα κοινωνικά και οικολογικά ενταγμένο σύστημα συνύπαρξης.
Read more about the project here!
Facts & Credits
Typology Student & Youth Collaborative Competition “Co-inhabiting the Voids”
Organization CoHab Athens
Location Thessaloniki, Greece
Year 2024
University Department of Architectural Engineering, Aristotle University of Thessaloniki
3 kitchens on 3 scales: autoethnographic narratives of architecture and cooking, by Erietta Kazakou
This research thesis approaches space through the lens of everyday life, positioning the kitchen as a cultural and spatial interface where architecture, memory, and food converge. Grounded in an autoethnographic methodology and supported by theoretical research, the thesis unfolds through three intergenerational narratives within the Greek context: the grandmother (village–past), the mother (provincial town–present), and the daughter (metropolis–future).
Αυτή η ερευνητική εργασία της Εριέττας Καζάκου προσεγγίζει τον χώρο μέσα από το πρίσμα της καθημερινής ζωής, τοποθετώντας την κουζίνα ως ένα πολιτισμικό και χωρικό σημείο τομής όπου η αρχιτεκτονική, η μνήμη και το φαγητό συγκλίνουν. Βασισμένη σε μια αυτοεθνογραφική μεθοδολογία και εμπλουτισμένη με θεωρητική βιβλιογραφία, η διπλωματική εργασία αναπτύσσεται μέσα από τρεις διαγενεακές αφηγήσεις στο ελληνικό πλαίσιο: τη γιαγιά (χωριό–παρελθόν), τη μητέρα (επαρχιακή πόλη–παρόν) και την κόρη (μητρόπολη–μέλλον).
The study examines each case across multiple spatial scales, from the broader site and domestic setting to the kitchen, the table, utensils, and ultimately the food itself. Through this scalar reading, the kitchen emerges as a deeply “colored” space that embodies biological needs, social rituals, and emotional expression. Rather than a neutral domestic room, it is framed as the intersection where architecture shapes daily practices and where cooking becomes a medium of cultural transmission.
Η έρευνα αναλύει κάθε περίπτωση σε πολλαπλές χωρικές κλίμακες, από τη συνολική τοποθεσία και το οικιακό περιβάλλον έως την κουζίνα, το τραπέζι, τα σκεύη και, τελικά, το ίδιο το φαγητό. Μέσα από αυτή τη πολυκλιμακωτή ανάγνωση, η κουζίνα αναδεικνύεται ως ένας έντονα «χρωματισμένος» χώρος που συμπυκνώνει βιολογικές ανάγκες, κοινωνικές τελετουργίες και συναισθηματική έκφραση. Δεν αντιμετωπίζεται ως ένα ουδέτερο δωμάτιο της κατοικίας, αλλά ως το σημείο συνάντησης όπου η αρχιτεκτονική διαμορφώνει τις καθημερινές πρακτικές και η μαγειρική λειτουργεί ως μέσο πολιτισμικής μετάδοσης.
By tracing personal yet collectively resonant stories, the research highlights how place, habits, and spatial environments are internalized as lived memories that travel with individuals over time. Village, province, and city are thus read not only as geographic settings but as socio-spatial conditions that influence rhythms of life, forms of cohabitation, and culinary practices. Ultimately, the thesis proposes architecture and cooking as intertwined cultural fields through which identity, tradition, and the interpretation of everyday life are continuously constructed and rearticulated.
Ακολουθώντας προσωπικές αλλά ταυτόχρονα συλλογικά αναγνωρίσιμες ιστορίες, η μελέτη αναδεικνύει πώς ο τόπος, οι συνήθειες και τα χωρικά περιβάλλοντα εσωτερικεύονται ως βιωμένες μνήμες που μετακινούνται μαζί με το άτομο στον χρόνο. Το χωριό, η επαρχία και η πόλη ερμηνεύονται έτσι όχι μόνο ως γεωγραφικά πλαίσια, αλλά ως κοινωνικο-χωρικές συνθήκες που επηρεάζουν τους ρυθμούς ζωής, τις μορφές συγκατοίκησης και τις γαστρονομικές πρακτικές. Τελικά, η εργασία προτείνει την αρχιτεκτονική και τη μαγειρική ως αλληλένδετα πολιτισμικά πεδία μέσα από τα οποία η ταυτότητα, η παράδοση και η ερμηνεία της καθημερινότητας συγκροτούνται και επαναδιατυπώνονται.
Read more about the project here!
Facts & Credits
Typology Research thesis
Supervisor Leonidas Koutsoubos
Institution Department of Architectural Engineering, NTUA
The Architecture of the Refugee Experience, by Dimitra Gkampoura
This Research Diploma Thesis by Dimitra Gkampoura, investigates the spatial dimension of the refugee phenomenon, with an emphasis on refugees’ lived experiences. Its aim is to understand these experiences through the analysis of temporary accommodation spaces, where architecture intersects with issues of power, exclusion, and resistance.The theoretical framework examines the historical context of refugee management and housing policies in Greece, while the research component is based on qualitative analysis through interviews.
Η Διπλωματική Ερευνητική Εργασία της Δήμητρας Γκαμπούρα διερευνά τη χωρική διάσταση του προσφυγικού φαινομένου, με έμφαση στις βιωμένες εμπειρίες των προσφύγων. Στόχος της είναι η κατανόηση αυτών των εμπειριών μέσα από την ανάλυση χώρων προσωρινής φιλοξενίας, όπου η αρχιτεκτονική διασταυρώνεται με ζητήματα εξουσίας, αποκλεισμού και αντίστασης. Το θεωρητικό πλαίσιο εξετάζει το ιστορικό πλαίσιο διαχείρισης του προσφυγικού και των πολιτικών στέγασης στην Ελλάδα, ενώ το ερευνητικό μέρος βασίζεται σε ποιοτική ανάλυση μέσω συνεντεύξεων.
Methodologically, the study employs the technique of “situated testimony” and the tools of the research group Forensic Architecture, combining interviews with three-dimensional spatial modeling, allowing participants to reconstruct their experiences in a safe environment. In collaboration with the informants, a virtual model of each accommodation space was created based on the assembly of three-dimensional objects. Participants selected items from a list of standardized and personal objects and placed them in the space as they recalled them, with the 3D model enabling navigation, facilitating storytelling, and enhancing the recall of lived experiences.
Μεθοδολογικά, η μελέτη αξιοποιεί την τεχνική της «τοποθετημένης μαρτυρίας» (situated testimony) και τα εργαλεία της ερευνητικής ομάδας Forensic Architecture, συνδυάζοντας συνεντεύξεις με τρισδιάστατη χωρική μοντελοποίηση, επιτρέποντας στους συμμετέχοντες να ανασυνθέσουν τις εμπειρίες τους σε ένα ασφαλές περιβάλλον. Σε συνεργασία με τους πληροφορητές, δημιουργήθηκε ένα εικονικό μοντέλο κάθε χώρου φιλοξενίας, βασισμένο στη συναρμολόγηση τρισδιάστατων αντικειμένων. Οι συμμετέχοντες επέλεγαν στοιχεία από μια λίστα τυποποιημένων και προσωπικών αντικειμένων και τα τοποθετούσαν στον χώρο όπως τον θυμούνταν, με το τρισδιάστατο μοντέλο να επιτρέπει την πλοήγηση, να διευκολύνει την αφήγηση και να ενισχύει την ανάκληση των βιωμένων εμπειριών.
The research includes three case studies, two from Syria and one from Sudan, which document different geographic trajectories to Greece and the (geo-)political conditions of the past decade. The findings highlight both the material and immaterial aspects of the refugee experience and the ways in which people appropriate and transform temporary spaces. Overall, the study seeks to approach the refugee phenomenon through a human-centered, spatially oriented, and technologically enhanced perspective, aiming to understand and improve hosting policies.
Η έρευνα περιλαμβάνει τρεις μελέτες περίπτωσης, δύο από τη Συρία και μία από το Σουδάν, οι οποίες τεκμηριώνουν διαφορετικές γεωγραφικές διαδρομές προς την Ελλάδα και τις (γεω)πολιτικές συνθήκες της τελευταίας δεκαετίας. Τα ευρήματα αναδεικνύουν τόσο τις υλικές όσο και τις άυλες πτυχές της προσφυγικής εμπειρίας, καθώς και τους τρόπους με τους οποίους οι άνθρωποι οικειοποιούνται και μετασχηματίζουν τους προσωρινούς χώρους. Συνολικά, η μελέτη επιδιώκει να προσεγγίσει το προσφυγικό φαινόμενο μέσα από μια ανθρωποκεντρική, χωρικά προσανατολισμένη και τεχνολογικά ενισχυμένη οπτική, με στόχο την κατανόηση και τη βελτίωση των πολιτικών φιλοξενίας.
Read more about the project here!
Facts & Credits
Typology Research Diploma Thesis
Supervisor Loukas Triantis
Presentation date September 2025
Institution Department of Architecture |School of Engineering | Aristotle University of Thessaloniki
READ ALSO: Η Ιαπωνία ως βίωμα μέσα από τα μάτια μιας φοιτήτριας αρχιτεκτονικής



























