Selekou Katerina transforms a 1970s Athenian apartment into a contemporary home, creating a unified, open-plan space where light diffuses playfully. The apartment’s original 1970s features are complemented by bolder, more industrial elements, resulting in a rich collage of texture and materials.
This work is about the renovation of a 70 sqm second floor apartment in the Lycabettus area, at the city center of Athens.
Architect suggest an open-plan layout with the aim of allowing as much natural light as possible into the space.
To organize the unified space, she emphasized on the transitional areas by choosing vibrant colors and textures, treated the kitchen as another piece of built-in furniture, and designed metal partitions/doors to serve different living scenarios.
The 70s features of the apartment were retained and complemented with more vibrant and industrial elements creating a collage of materials.
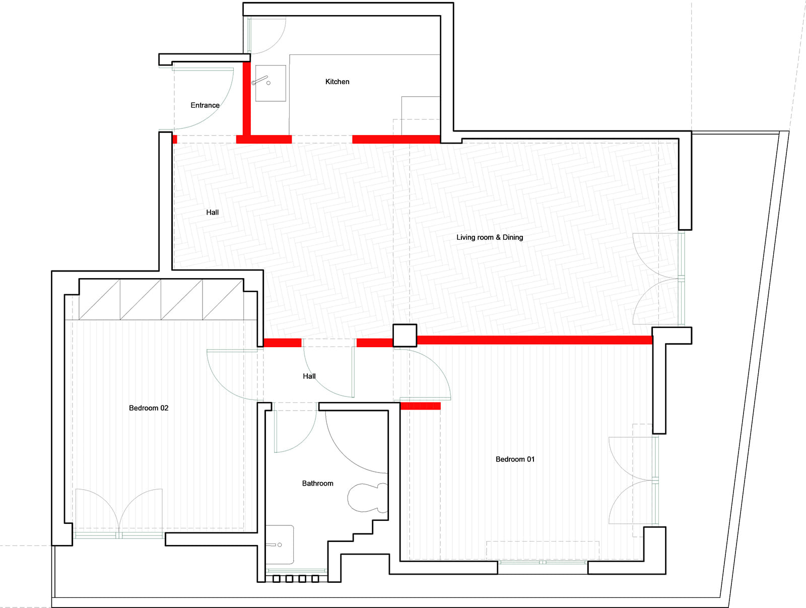
Concept / Layout
The main move was the relocation of the kitchen in order to make the best use of the apartment’s space. Its existing location blocked the entrance, it was not well connected with the rest of the rooms, and it was dark and small. Moving it to another location, created a long, entrance hallway and a spacious, multi-purpose closet (entrance bench, wardrobe, washing machine, general storage).
The kitchen is designed as another “piece of furniture”, not completely separated from the rest of the space but built in and discreetly serving everyday life.
It is located directly connected to the dining room and diametrically opposite the balcony door to allow for better light.
The second important move was to remove the wall between the bedroom and the living room and reveal the structural elements of the apartment building (central column and beams).
In place of the old partition, architect proposed a four-leaf metal door with fluted glass, as a reference to the old wooden sliding partitions with glass found in Athenian apartments.
The ribbed glass, apart from being a beautiful element that refers to the 70s aesthetic, allows light to diffuse playfully throughout the space and offers privacy when hosting guests.
Materials / aesthetics
The apartment consists of three zones.
The first zone, transitional spaces (hallway, storage areas), acts as a frame of color for the more tranquil and minimalist main spaces.
The mosaic floor, which was uncovered and had been significantly damaged due to past interventions, was replaced with turquoise blue tesserae tiles that reflect light in these intermediate and darker spaces. Birch veneer, with its vivid grain and yellow hue, was chosen for the woodwork. The entrance threshold is marked by the color burgundy.
The second zone, the main areas of the apartment (living room, dining room, bedroom), feature the existing oak parquet flooring that has been repaired. Architect wanted the rest elements to highlight the warmth of the wood through contrast, choosing industrial finishes such as exposed concrete, metal elements (sliding door, shelves), glass, and chrome glossy details (wall lamps, knobs).
Finally for the third zone, bathroom and kitchen, we chose a material that was already present in the apartment, Dionysos marble, to be the main material. The elegant marble covered the countertop and backsplash of the kitchen, and its vivid reflections create yet another contrast with the matte off-white lacquered cabinets. In the bathroom, 40×40 marble was chosen to highlight a more playful aspect of this timeless material.
Drawings



Facts & Credits
Title Playful light
Typology Interior, Apartment
Location Athens, Greece
Surface 70 m2
Status Completed, 2025
Architecture Selekou Katerina
Photography Dimitra Chrysoula
Text by the author
Take a look at another project by Selekou Katerina, ‘Renovation of an apartment in a 1972 apartment complex in Chalandri’, here!
READ ALSO: Freia Restaurant: a glass house blending wide city views with a garden experience on the rooftop of a parking building in the center of Nantes














