MicroScale explores architecture at its most intimate spotlighting tiny designs with outsized ideas; compact structures that rethink space, material, and function. From tiny houses to pocket retail, these projects prove that small architecture can be radical, poetic, and deeply human, revealing how scale sharpens innovation rather than limiting it.
In Florence’s Porta Romana, a 29 m² flat is reimagined by studio AFSa through a contemporary reading of its early 20th-century origins. Drawing on 1920s aesthetics and Adolf Loos’s Ornament and Crime, the renovation centres on a polychrome marble floor referencing Florentine Romanesque traditions and Gio Ponti. Custom furnishings echo the motif, balancing restraint, sensuality, and historical continuity.
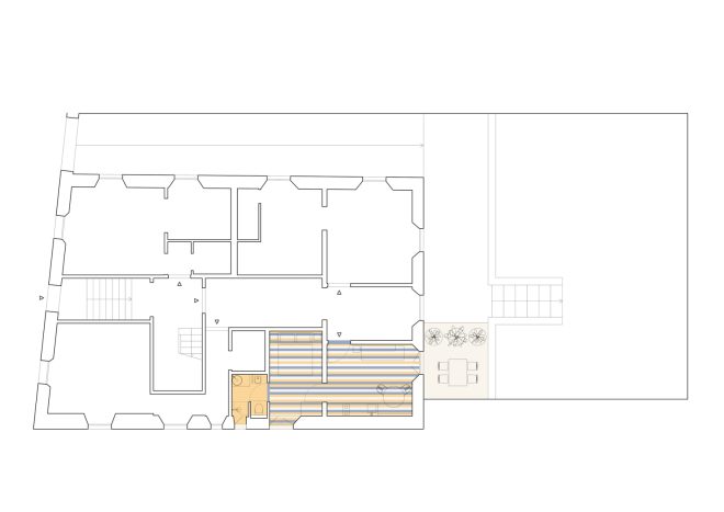
Palazzina Maresa in Florence, transforms a 1926 family home into eight design-led residential units conceived by emerging Florentine designers. Named after Maresa, the grandmother who lived there for over eighty years, the project preserves the building’s architectural character and welcoming spirit while giving it a renewed cultural identity. Designed for medium-short stays, the four-storey residence features Italian gardens and shared spaces dedicated to artistic research, exhibitions, and events.
Using Tuscan materials and craftsmanship, the renovation fosters dialogue between 1920s heritage and contemporary design, shaping a hospitality model rooted in community, creativity, and local cultural continuity.
AFSa’s intervention, compressed into just 29 m², exemplifies the MicroScale ethos: a small interior treated as a site of architectural intensity rather than limitation.
Revisiting the aesthetic and cultural atmosphere of the 1920s, the proposal draws on the theoretical position of Adolf Loos’s Ornament and Crime, constructing a refined and sensorial environment where material and proportion replace applied decoration.
Within this compact spatial framework, the polychrome marble floor assumes a primary architectural role, becoming the project’s formal and perceptual anchor.
The flooring, composed of contrasting 12 cm strips in Bianco di Carrara, Giallo di Siena, and Bardiglio, establishes a strong graphic rhythm that visually expands the space while grounding it in local design lineage. Its banded composition recalls both Florence’s Romanesque tradition of marble striping and Gio Ponti’s iconic ceramics for Richard Ginori, linking medieval architectural language, early modern design culture, and contemporary interior practice within a single surface.
This motif extends to the custom-designed furnishings, whose geometries and chromatic contrasts derive from the same logic of bands and proportion.
Through this translation from floor to object, AFSa balances homogeneity and contrast across the interior, shaping a restrained yet sensual atmosphere.
In doing so, the project demonstrates how, at the MicroScale, material precision and historical awareness can transform a minimal footprint into a spatial experience of depth, continuity, and cultural resonance.

Drawings



Short Bio
AFSa is an architecture firm based in Florence, directed by Antonio Acocella and Pietro Seghi, founded with Alessandro Falaschi in 2017.
The studio deals with architectural, interior and landscape design, through a contemporary and essential architectural language, based on continuity with tradition and on its constant rewriting through formal and material abstraction.
Since 2017, AFSa completes a series of residential, commercial, cultural and office projects, from design to construction phase, through specific solutions which are result of constant dialogue with clients, builders and artisans. Some projects have been published on international magazines and websites.
In parallel, the studio participates in international architecture and urban planning competitions, receiving awards in the form of prizes and publications. Recurring themes are the dialogue between old and new, educational buildings, places of worship.
Since 2024, the studio partners run an Interior Design studio at IED Firenze, and since 2013 they have been collaborating with academic institutions (DIDA Unifi, Yunnan Arts University Kunming, Kent State University Florence, Syracuse University Florence, California State University Florence, Istituto Lorenzo de’ Medici, DICAR UniCT) through lectures, seminars, teaching and research.

Facts & Credits
Title Palazzina Maresa 03
Typology Interior, Hospitality
Location Florence, Italy
Surface 29 m2
Status Completed, 2025
Architecture AFSa (Antonio Acocella, Pietro Seghi)
Collaborators Margherita Serdino
Photography Lorenzo Zandri
Text by the authors
READ ALSO: Stories of Contemporary Domesticity | Episode 9: Home as a Political Act >> 10k House in Barcelona, Spain by TAKK









