The Architect’s House explores homes conceived as both refuge and manifesto—spaces architects design for themselves, where daily life, personal values, and architectural thinking converge. Through these self-authored dwellings, the series reveals how architecture becomes an intimate act of inhabitation, experimentation, and self-reflection, offering rare insight into the discipline from the inside out.
Riverhouse in rural Rhode Island, designed by WORKac co-founders Amale Andraos and Dan Wood for their own family, is a precise domestic experiment balancing ecological intelligence, cultural resonance, and spatial invention. Conceived as both home and prototype, it extends a lineage of architect-designed houses that test ideas through lived experience, where design is continually inhabited and recalibrated. Collaborative at its core, it draws in designers, artists, and friends as an evolving collective. Its folded blue metal roof and diagonal ridgeline produce dynamic spatial conditions, while courtyards, decks, outdoor showers, and a roof garden dissolve the threshold between interior and landscape, extending domestic life outward.
In the wake of the pandemic-driven shift toward rural living, WORKac’s Riverhouse offers a deeply personal yet broadly relevant vision of domestic architecture. It embraces an open, non-dogmatic approach, resulting in a home that is unconventional yet finely attuned to contemporary life. Within a compact volume, layered spaces, tactile materials, and vibrant accents drawn from the surrounding landscape create a rich domestic environment.
Built over time with collaborators and friends, the house is not only a residence but also an evolving site for dialogue and exchange.
A New Domestic Turn
The Covid-19 pandemic triggered a profound rethinking of how and where people live. As many moved away from dense urban centers in search of nature, autonomy, and healthier environments, new domestic models began to emerge. Riverhouse is a direct response to this cultural shift.
Conceived as a lived-in prototype, it explores a fluid mode of inhabitation where boundaries between work, life, and leisure dissolve.
The project reflects broader concerns with sustainability, reduced footprints, renewable energy, and a deeper engagement with place, aligning everyday living with ecological awareness.
A Modest Structure, a Broad Ambition
Located in a protected river corridor in rural Rhode Island in New England, near Dan Wood’s childhood home, Riverhouse replaces an older structure that had long hosted informal architecture gatherings. These camps fostered open dialogue and collective reflection, shaping the conceptual foundation of the new house.
When the original building became structurally unsalvageable, the architects chose to rebuild on its footprint, preserving its spirit while reimagining its potential.
The new house is compact and elevated to meet floodplain requirements, yet highly ambitious in performance. Designed to Passive House standards, it features triple-glazed windows, heavily insulated walls, and rooftop photovoltaics with battery storage, enabling all-electric operation with minimal energy consumption. Despite its technical rigor, the house prioritizes experience as much as efficiency.
The Feel of The House
The design builds on key elements the family valued: openness, proximity to the river, and continuity in spatial organization.
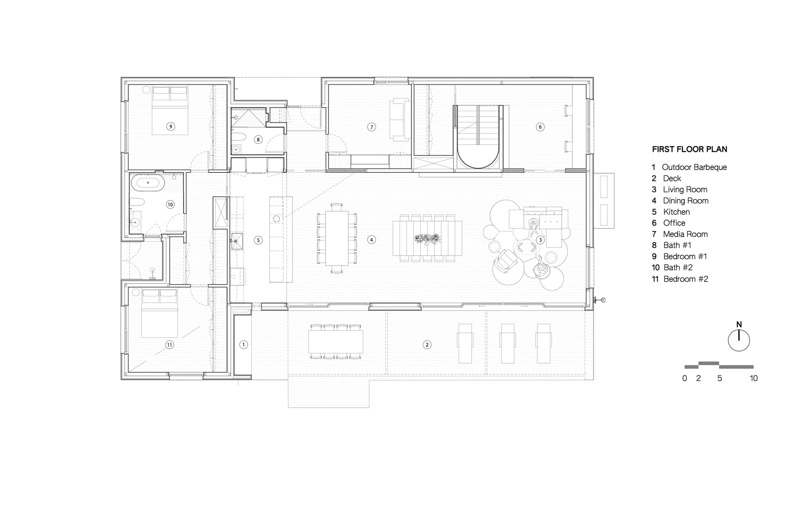
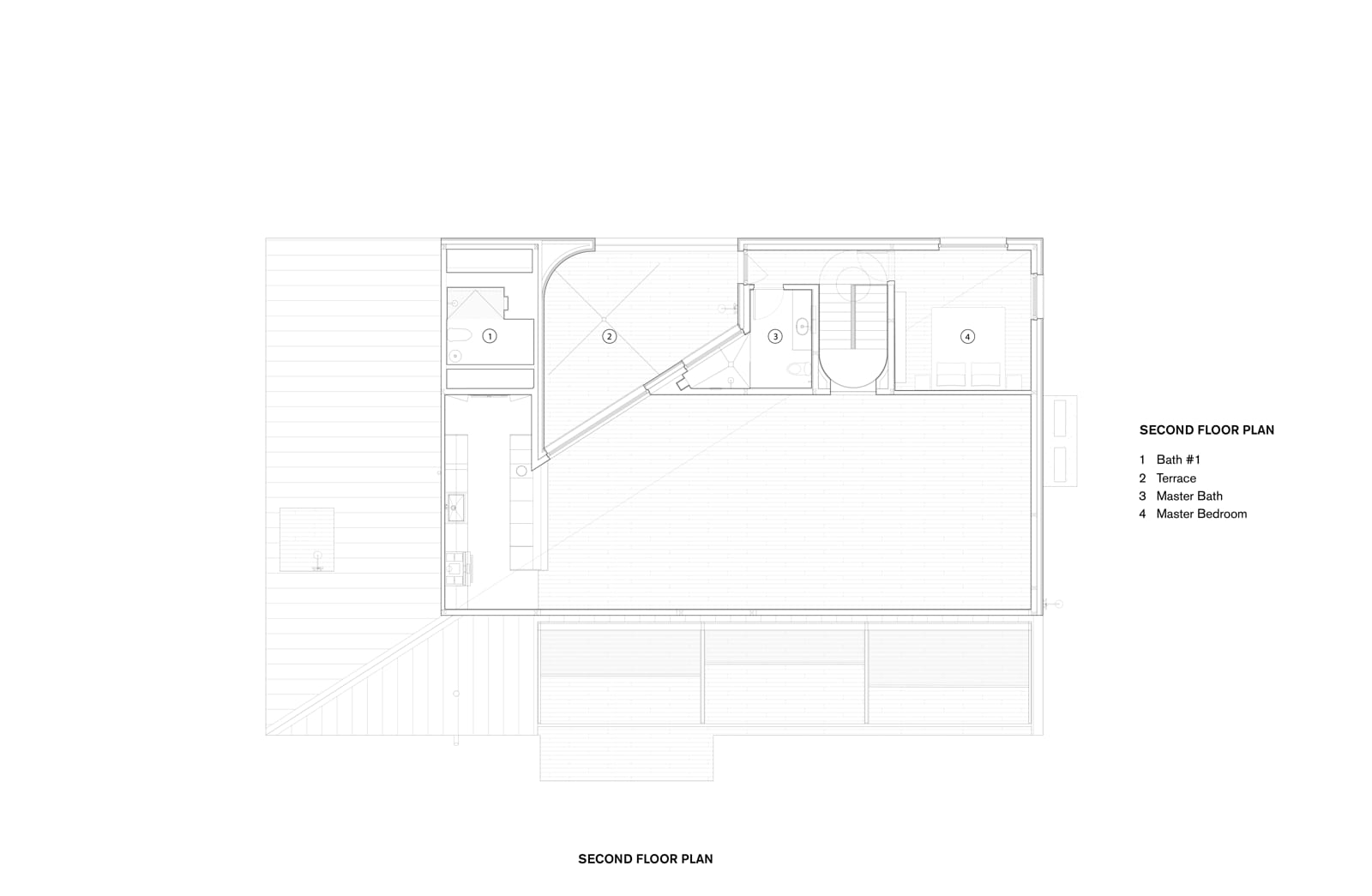
A carefully reworked layout enhances light, airflow, and functionality, making compact spaces feel generous. The house’s distinctive form—defined by a folded blue metal roof and a diagonal ridgeline—creates varied spatial conditions, including a double-height living area and a mezzanine bedroom. Indoor and outdoor living are seamlessly integrated through courtyards, decks, outdoor showers, and a roof garden.
Materials were chosen for both performance and sensory richness: ash wood cladding, handmade Lebanese tiles, unfinished plywood, and colorful window frames that echo the surrounding landscape. Strategic window placement supports natural ventilation, while integrated storage maintains spatial clarity. Even the solar panels contribute to the building’s visual identity, reinforcing its expressive and functional design.
A Collective Project
Riverhouse is fundamentally collaborative. Contributions from designers, artists, and friends enrich its character: a central table by MOS Architects anchors communal life; a large curtain by Petra Blaisse modulates light and privacy; and textiles and tiles introduce cultural references and craftsmanship. The construction process itself became part of the narrative, involving close collaboration with builders who lived alongside the project as it unfolded.
This collective effort underscores the house’s role as a shared, evolving endeavor rather than a fixed object.
A Living Prototype
As both home and experiment, Riverhouse continues a tradition of architect-designed residences that test ideas through lived experience.
Yet it is firmly rooted in contemporary concerns—climate adaptation, changing family structures, and new forms of collective living.
Drawings
A second phase, including a pool, pavilion, and garden, will further support gatherings and future architecture camps.
Riverhouse stands as an open-ended prototype: a carefully crafted, deeply inhabited space that invites ongoing dialogue about how we live, build, and connect.
Facts & Credits
Title Riverhouse
Typology Architecture, Residence
Location Hopkinton, Rhode Island, United States
Status Completed, 2025
Architecture WORKac
Design Team Amale Andraos, Dan Wood (Principals), Kristina Dittrich, Matt Voss (Project Architects), Reuben Cheeks, Din Din, Ryan Fagrie, Jenna Hussain, Madha Nawal, Smiley Scott, Rondela Spooner, Henry Wotowicz, Men Yushan (Team)
Collaborators Curtain: Inside Outside (Petra Blaisse), Metal Table: MOS Architects (Michael Meredith and Hilary Sample), Custom Rug: designed by WORKac, manufactured by Aronsons Floor, Coverings “Ezat” Tree Sculpture: Elodie Blanchard, Drapes: Austėja Walter, Concrete Tiles: BlattChaya (Karim Chaya)
Photography Bruce Damonte
Text by the authors
Take a look at ‘Buildings for People and Plants | WORKac’s new book’, here!
































