Conceived as both a photographer’s workshop and a potential open studio, this project in Lima by Roman Bauer Arquitectos explores architecture as a flexible spatial instrument. On a compact urban lot, the design negotiates privacy and exhibition, production and display. Through sliding thresholds, skylit interiors, and a clear tectonic language, the building blends a private creative practice and a temporary display of an open studio.
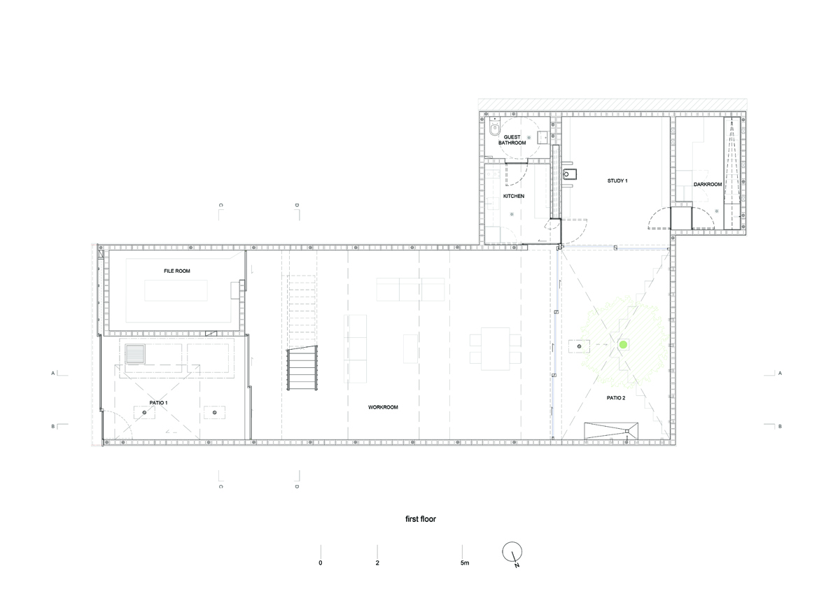
Located within the monumental district of Barranco, Lima, the project occupies a compact 198 m² lot and is conceived as a photographer’s workshop-studio whose spatial logic anticipates effortless transformation into an exhibition venue. The architecture is therefore articulated as a flexible framework, capable of oscillating between the intimacy of private creative practice and the openness of a temporary display space.
Entry is mediated by a front courtyard framed by cantilevered planters, establishing a transitional threshold between the street and the interior.
A first system of wooden sliding doors introduces the visitor to a generous central workspace—the operational and sensory core of the project. A second sequence of large sliding panels, concealed within pocket walls, dissolves the boundary between interior and exterior, weaving together the entrance courtyard, the main studio, and the rear patio into a continuous spatial field suitable for both production and exhibition.
Around this central nucleus, the program unfolds with deliberate restraint: a kitchenette and two adaptable rooms that may function either as studios or as temporary residences for visiting artists. Only the bathrooms and the darkroom remain fully enclosed, preserving privacy and meeting the technical demands of analog photographic practice. From the main workspace, a staircase ascends to an upper gallery and a private study with an en-suite bathroom, offering an elevated vantage point that reconfigures the spatial perception and establishes a horizontal dialogue with the vegetation in the cantilevered planters.
The tectonic strategy is explicit and integral to the architectural expression.
Perimeter walls of reinforced concrete block define a resolute enclosure, while a system of eight huayruro wooden trusses, each spanning 6.7 meters, supports the folded roof and simultaneously braces the masonry envelope, forming a coherent structural armature. The roofline descends gradually from the second level toward the rear courtyard, generating a dynamic sectional profile. Along this trajectory, the trusses also shape four skylights that puncture the roof, flooding the interiors with diffused overhead light and enabling cross ventilation through pulley-operated clerestory windows

These devices reinterpret the skylights, lanterns, and ceiling apertures characteristic of Barranco’s heritage houses, historically designed to address natural lighting and ventilation.
Huayruro wood—a highly resistant tropical species—articulates structure, carpentry, partitions, gates, furniture, and the stair, infusing the interiors with tactile warmth and material continuity. The inner faces of the concrete-block walls are rendered smooth, while in the courtyards they adopt a textured relief suitable for concealed lighting and the potential growth of climbing vegetation.
Handcrafted yellow terrazzo tiles extend seamlessly from the interior to the rear courtyard, where they culminate in a concrete-slat planter housing a ceibo tree, accompanied by cacti and succulents selected in response to Lima’s arid coastal climate and the contemplative character of the studio. Ultimately, the project frames architecture as an adaptable container for artistic practice, where making and exhibiting coexist within a single spatial continuum.
The studio becomes a quiet stage where the evolving work of the photographer can be naturally revealed.
Facts & Credits
Project title Taller-Estudio de Fotografia
Typology Artist Studio
Location Barranco, Lima, Perú
Area 189 m²
Year 2025
Client Private
Architecture Roman Bauer Arquitectos
Lead Architects Jose Bauer, Augusto Román
Design Team Alexandra Larrea, Ailed Tejada, Lilian Wong, Karen Galarza
Engineering And Consulting Structural Ing. Jorge Avendaño, Arq. Luis Takahashi
Engineering Electrical Ing. Cesar Pacheco
Engineering Mep Ing. Julio Gamboa
General Construction Caguila Constructores
Photography Juan Solano Ojasi
Text provided by the architects
READ ALSO: Dream houses: SO Arquitetura & Design carves Casa da Rocha Quebrada in Açores, Portugal as a new concrete ruin or a sequence of caves






















