A housing project in Mallorca by Joan J. Fortuny Arquitecte and Alventosa Morell Arquitectes, that incorporates traditional crafts, construction methods and passive strategies, claiming the reduction of its environmental impact.
The project located in Puigpunyent, Mallorca, is promoted by the IBAVI (Balearic Housing Institute). The building is designed with an emphasis on sustainability, energy efficiency, and environmental respect.
To achieve this, the project is based on a local economic model incorporating traditional crafts, construction methods, and passive strategies typical of the island.
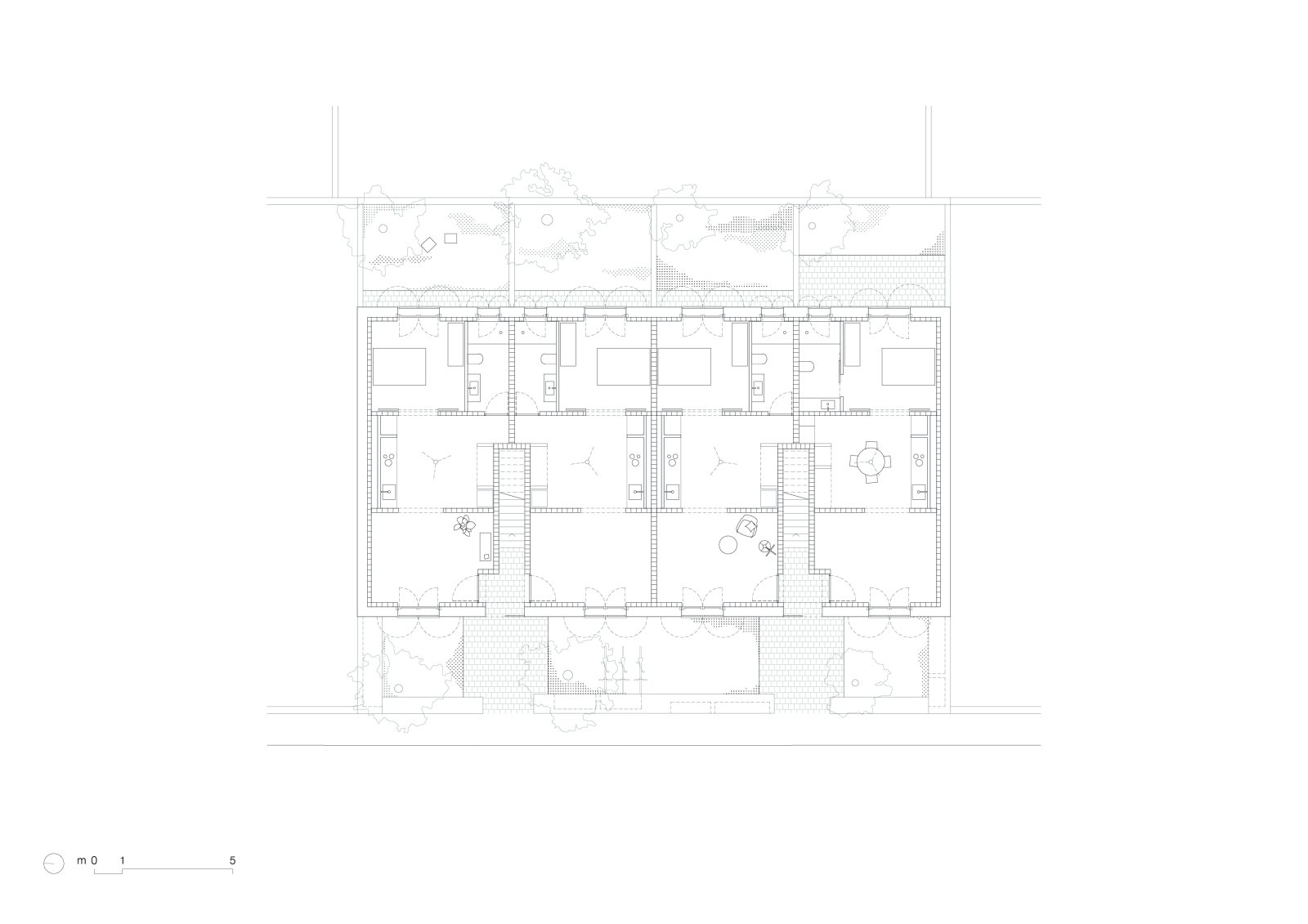
With two floors and a gable roof, the building is distributed into six dwellings, four on the lower ground floor and two on the upper level. The ground floor units have one bedroom and access to a private outdoor space, while the upper floor units have two bedrooms, each opening onto its own outdoor terrace. Open, flexible, and adaptable spaces are proposed that relate to each other directly, with the kitchen as the central space.


Using local materials and strategies, the building’s materiality responds to its surroundings.
The lime cyclopean facades incorporate the stones and earth from the excavation itself. The partitions are made of local ceramics, filled with residual sand from nearby quarries and finished with clay and straw. The floors and carpentry are made of FSC wood. The interior floors were made of local lime, and the exterior floors, tiles and roof tiles were also sourced locally.
The building is strategically designed to maximise solar gain in winter and reduce cooling demand in summer, incorporating cross ventilation, solar shading, and high thermal inertia in floors and walls with humidity-regulating hygroscopy and breathability.
The ‘Trombe’ type roof is a key element that captures heat in winter and is ventilated in summer, regulating the temperature and thus eliminating active systems. The private patios function as user control and filtering elements for the ventilation of the dwellings.
With near-zero energy consumption (1.7 kWh/m²-year, NZEB), the project reduces CO₂ emissions by 50%, while circularity considerations mean a waste reduction of 60%. In addition, the project has been consciously designed with building systems where materials can be separated for reuse in the event of demolition. The Life Cycle Analysis demonstrates a low CO2 cost in construction (230 Kg Co2/m2), a 50% reduction compared to conventional constructions.
The result is a housing complex that reduces its environmental impact while strengthening the local economy and promoting territorial regeneration.
By incorporating vernacular materials and techniques, Ses Veles Puigpunyent proposes an architecture in dialogue with the island’s culture, combining technical innovation and environmental responsibility.
Facts & Credits
Project title Ses Veles Puigpunyent
Typology Residential
Location Puigpunyent, Mallorca, Spain
Architecture Joan J. Fortuny Arquitecte, Alventosa Morell Arquitectes,
Authors Joan Fortuny, Marc Alventosa, Xavier Morell
Team Baltasar Nicolau (technical architect), Andrea Capella Mònaco, Joan Martí Elias, Carolina Capella Mònaco, Jordi Adell Roig i Júlia Nabona Jasans, Sandra Vargas, Marina Morey, Gori Llambias, Raquel Mirón, Rebeca Lopez, Eric Moyá (architects), Estudis d’Enginyeria de les Illes (engineering), Juan Fortuny Siquier (structure)
Year 2024
Area 400 sqm
Photography José Hevia
Text provided by the architects
READ ALSO: ARCHITECTURE FOR EDUCATION: A new kindergarten in Šlapanice by ČTYŘSTĚN























