Στις Μακριές Μοίρες στη Λευκωσία μία κατοικία, σχεδιασμένη από το γραφείο Anastasiou Misseri architects βρίσκει τη θέση της σε ένα πολύβουο μορφολογικά περιβάλλον με τη λιτή γραφή και τις αδρές υλικότητές της.
Το έργο χωροθετείται σε ένα στενό ορθογώνιο οικόπεδο, εντός μίας νέας οικιστικής περιοχής στα προάστια της Λευκωσίας. Τα γύρω κτίρια ακολουθούν ποικίλα αρχιτεκτονικά ρεύματα και τάσεις, δημιουργώντας ένα ευνοϊκό πλαίσιο για τη νέα οικοδομή, η οποία ενσωματώνει μια σύγχρονη και λιτή αρχιτεκτονική γλώσσα.
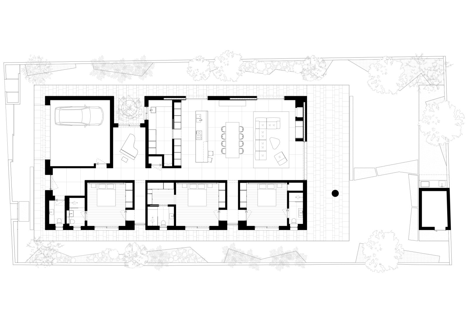
Η κατοικία οργανώνεται κάτω από μια δομή η οποία “απευθύνεται” προς τον δρόμο με μια λιτή όψη, υπερυψωμένη από το επίπεδο του δρόμου, αξιοποιώντας το νότιο τμήμα του τεμαχίου για την δημιουργία του κήπου.
Το κτίριο ακολουθεί τη χάραξη ενός ορθογώνιου καμβά διαστάσεων 12 x 24 μέτρων, εντός του οποίου οργανώνονται οι επιμέρους χώροι.
Περιμετρικά, ένας πρόβολος από εμφανές μπετόν, περιβάλλει το σύνολο προσφέροντας σκίαση και προστασία από τις καιρικές συνθήκες. Στη νότια πλευρά, ο πρόβολος προεξέχει 4 μέτρα προς τον κήπο, δημιουργώντας μία ευρύχωρη καλυμμένη βεράντα που στηρίζεται σε μια κυλινδρική κολώνα, ενισχύοντας την αίσθηση της κλίμακας και της αναλογίας στον εξωτερικό χώρο.
Η εσωτερική διάταξη της κατοικίας είναι λιτή και λειτουργική, χωρισμένη σε δύο ζώνες: τη δυτική ζώνη, όπου τα υπνοδωμάτια απολαμβάνουν το βραδινό καλοκαιρινό δροσερό αέρα, και την ανατολική ζώνη, όπου οι καθημερινές χρήσεις απολαμβάνουν τη θέα προς το πράσινο που περιβάλλει το τεμάχιο. Μέσω μεγάλων ανοιγμάτων, ο εσωτερικός χώρος ενοποιείται οπτικά με το εξωτερικό περιβάλλον, προσφέροντας οπτική συνέχεια και φυσικό φωτισμό. Ένας τοίχος 17 μέτρων από εμφανές σκυρόδεμα εκτείνεται κατά μήκος του σπιτιού, δημιουργώντας μία γλυπτική μορφή που διαχωρίζει τις δύο ζώνες.
Το οπτικό πεδίο από την είσοδο της κατοικίας παραμένει ανεμπόδιστο εξασφαλίζοντας άμεση θέα προς τον κήπο ο οποίος ξεδιπλώνεται μέσα από τις εναλλαγές των χώρων.
Η λιτότητα της εξωτερικής μορφής και των εσωτερικών χώρων οδήγησε στην επιλογή συγκεκριμένων υλικών: μεγάλες κεραμικές πλάκες για το δάπεδο στους κοινόχρηστους χώρους, ξύλινα δάπεδα στα υπνοδωμάτια, εμφανές μπετόν σε τοίχους και την εξωτερική οροφή, και λευκό επίχρισμα στις κατακόρυφες επιφάνειες. Επιπλέον, οι θύρες, τα ερμάρια, η κουζίνα και οι αποθηκευτικοί χώροι, σχεδιάστηκαν με επιμέλεια και κατασκευάστηκαν από δρυ, προσφέροντας στον εσωτερικό χώρο ένα ζεστό και οικείο χαρακτήρα.
Ο κήπος έχει φυτευτεί αποκλειστικά με μεσογειακή βλάστηση, προκειμένου να δημιουργηθεί ένας χώρος που απαιτεί ελάχιστη συντήρηση. Η φύτευση εμπλουτίζει την οπτική προοπτική ενισχύοντας τη σύνδεση των εσωτερικών χώρων με το περιβάλλον.
ANASTASIOU MISSERI
Το αρχιτεκτονικό γραφείο Anastasiou Misseri ιδρύθηκε από τον Μιχάλη Αναστασίου και την Στέφανη Μισέρη το 2020 στην Λευκωσία, Κύπρος. Η σχεδιαστική πρακτική του γραφείου καταπιάνεται από την δημιουργία χώρων υψηλής αισθητικής και ποιότητας η οποία προκύπτει από μία ευαίσθητη και ενδελεχή διαδικασία σχεδιασμού. Το γραφείο έχει εμπειρία σε μελέτες διάφορων κλιμάκων και πολυπλοκότητας, σε όλα τα στάδια εργασίας ενός έργου. Τα τρέχον έργα του γραφείου περιλαμβάνουν ιδιωτικές κατοικίες, συντήρηση διατηρητέων οικοδομών, ανακαίνιση ξενοδοχείου στο παραλιακό μέτωπο, καθώς επίσης την κατασκευή 14 κέντρων επισκεπτών εντός του Εθνικού Δασικού Πάρκου Ακάμα, μετά από την εξασφάλιση του πρώτου βραβείου σε διεθνές αρχιτεκτονικό διαγωνισμό.
Το γραφείο Anastasiou Misseri είχε επιλεχθεί ως μέρος της 10ης Μπιενάλε Νέων Ελλήνων Αρχιτεκτόνων και έλαβε το Κρατικό Βραβείο Αρχιτεκτονικής στην κατηγορία «Έργο Νέων Αρχιτεκτόνων» τα έτη 2025 και 2022.
Δείτε ένα ακόμη έργο από το γραφείο Anastasiou Misseri architects εδώ!
Στοιχεία έργου
Τίτλος έργου Κατοικία στις Μακριές Μοίρες
Τυπολογία Κατοικία
Τοποθεσία Λευκωσία, Κύπρος
Ολοκλήρωση εργασιών 01.08.2023
Εργοδότης Ιδιώτης
Αρχιτεκτονική μελέτη Anastasiou Misseri architects
Στατική μελέτη Βαρνάβας Βαρνάβα
Ηλεκτρολογική μελέτη InForm Electrical Consulting Engineers
Μηχανολογική μελέτη CASE Consulting Engineers
Αρχιτέκτονας Τοπίου Ελένη Γεωργίου
Μελέτη φωτισμού JNC Lighting
Φωτογραφία James Retief
Kείμενο από τους δημιουργούς
READ ALSO: OPEN HOUSE Thessaloniki 2025: FUTURE HERITAGE – η αρχιτεκτονική του σήμερα, η κληρονομιά του αύριο | 22- 23 Νοεμβρίου



















