AMASA Estudio renovate an historic home in Colonia Roma, Mexico, while maximizing its utility and create a dynamic and cohesive aesthetic.

The project involves renovating a 1940s house that had undergone several interventions over the years, the most recent being its conversion into office spaces. Located in the heart of the Roma neighborhood, just six blocks from Parque México, the property is situated in one of Mexico City’s most culturally vibrant and high-demand real estate areas. This demand, coupled with zoning restrictions that often prevent further development, has led to an increasing number of abandoned houses in Roma, left vacant as part of real estate speculation.


Consequently, the property had been unoccupied for approximately ten years, presenting the challenge of revitalizing its original essence while adapting it to contemporary needs and demonstrating how integrating modern elements can breathe new life and functionality into the area’s historic buildings.


The original plan focused exclusively on converting and remodeling the house into a single-family home. However, to ensure the project’s financial viability and meet the neighborhood’s demands, the proposal included a ground-floor apartment with an optional commercial space in the garage area, reallocating the primary residence to begin on the first floor.
This approach preserved the house while maximizing its utility, offering not just a residence but also a potential business model.


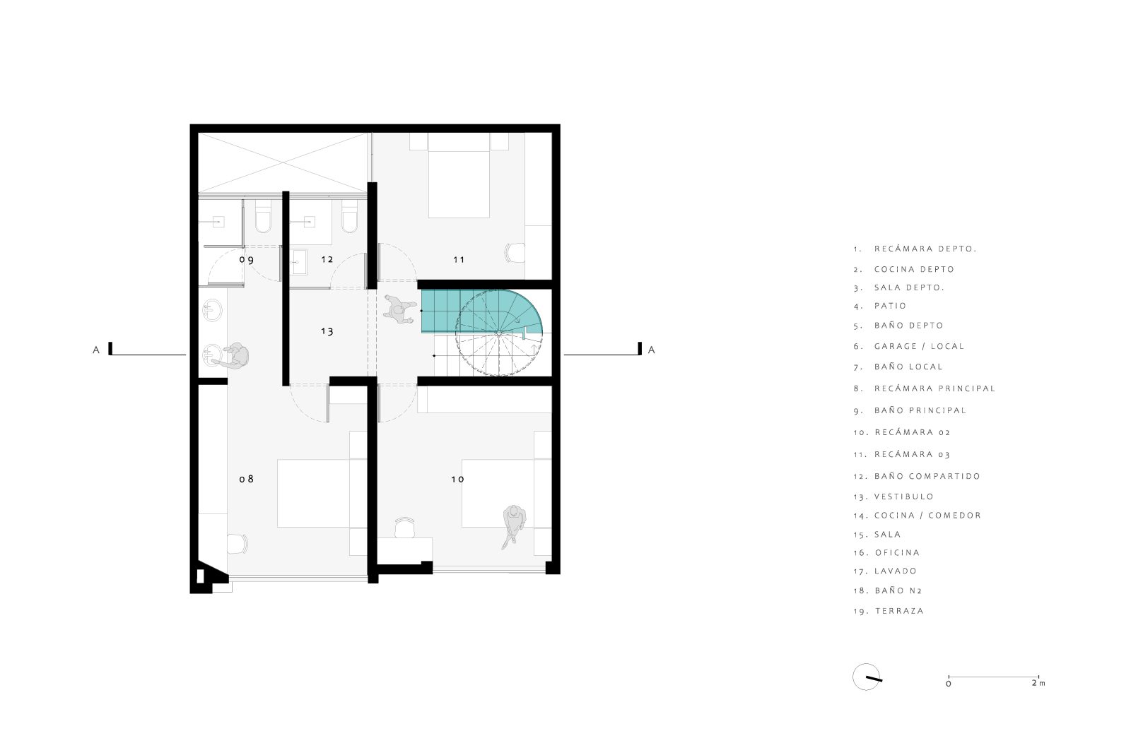
On the ground floor, the entrance functions as a shared vestibule providing independent access to three areas. To the left is the apartment, which includes one bedroom, a bathroom, a living- dining room, a kitchen, and a patio. On the right is a flexible space that can function as either a garage or a commercial unit with a half bathroom, depending on the intended use. At the front is the third access point, which leads to the main house. Here, the program deviates from convention, with private areas located on the first floor: a vestibule connecting three bedrooms and two bathrooms.





Ascending via a spiral staircase to the second floor, the layout transitions to the public areas, including the living room, kitchen, dining area, half bathroom, and an open terrace. This level is entirely open-plan, contrasting with the enclosed lower floors.
The absence of walls and vertical elements maximizes the influx of natural light, with large folding windows that open the space entirely to the terrace.



A circular skylight emphasizes the vertical circulation and illuminates the home’s central axis, integrating natural light as a guiding element that draws attention to this focal space.



The light primarily enters from above, creating a sheltered and intimate atmosphere on the lower levels, further enhanced by the chosen color palette and finishes.



A green tone for the metalwork defines many of the house’s features, including the staircase, doors, railings, furniture, and structural components.
The reflections, accentuated by the light, harmoniously contrast with the gray plaster walls, creating a dynamic and cohesive aesthetic.
Check another project by AMASA Estudio here!
Facts & Credits
Project title Casa Sofia
Typology Renovation, Residential
Location Ciudad de México, México
Architecture AMASA Estudio (Andrea López, Agustín Pereyra)
Area 215 m2
Year 2024
Client ECOBIART Inmobiliaria
Status Build
Construction Erik Cortés Ortega
Restructuring Engineering Juan Felipe Heredia
Installations Engineering Germán Muñoz
Lighting Andrea López, Agustín Pereyra
Team Cesar Huerta, Gerardo Reyes
Photography Zaickz Moz, Gerardo Reyes Bustamante
Text provided by the architects
READ ALSO: 1930s building gains a staircase that bridges past and present: One rehabilitation project in Portugal by Urbanpolis




