This small coastal house in Nea Skioni, Halkidiki, exists at the friction point between law and desire. Local building regulations demand a unified mass – the legal form of a single holiday home.


Yet the family who commissioned the house, an ageing couple with two adult children, no longer fits this normative model.
They asked for separation and autonomy, spaces for private life alongside collective gathering. The house answers by complying with the law, while pushing its boundaries by quietly splitting from within.
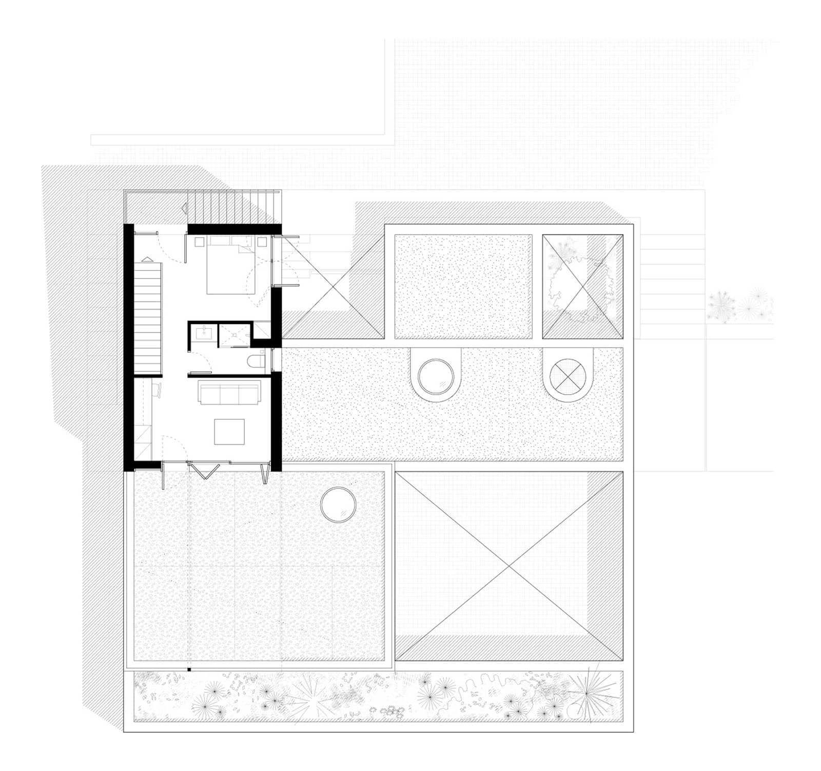
All interior and exterior spaces are inscribed within a 17×17 metre monolithic square.
But within this frame, the house breaks apart.

An extruded cross organises circulation and fragments the solid into three distinct units, each with its own entrance, its own route to the garden, its own threshold between inside and out.
The kitchen is located at the centre of this cross, a collective room functioning as the everyday place of co-habitation and re-discovery. This gesture both connects and separates, allowing for privacy and proximity.
A perimeter wall protects this fragmented life inside, its porosity shifting along the edges.
Sometimes sealing off, others opening up to the landscape, the wall acquires graduated relationships with the landscape, offering transparencies and shadows, openings and silences. Three courtyards puncture the mass, making space for informal life along the Greek coast – shaded breakfasts, outdoor showers after swimming, cigarettes and dinners under the sky.
The holiday home becomes a device that negotiates shifting family structures and expanding desires, hosting forms of life that resist regulation.
Materials remain humble, making a playful reference to the lexicon of vernacular modernist vacation homes of the Greek coast; coarse, lightly-coloured plaster walls, aluminium frames, decorative perforated blocks, shading devices, light-wooden partitions, and a rooftop pergola.
Yet colour appears in small, charged moments, highlighting activities such as cooking and bathing, inside and outside the house.
Facts & Credits
Title Courtyard House
Typology Architecture, Residence
Location Nea Skioni, Halkidiki, Greece
Status Completed, 2025
Architecture Fatura Collaborative
Design team Elisavet Hasa, Platon Issaias, Theodossis Issaias, Giannantonis Moutsatsos, Alexandra Vougia
Collaboration Myrto Vravosinou (Architect)
Civil Engineer RC-DC, George Kapetanos
Mechanical Engineer EMDC, Nikolaos Mertzios
Construction Anadomo
Site Management Epameinondas Moschoutas
Photography Yiorgis Yerolymbos
Text by the authors
Η ομάδα των Fatura Collaborative επαναπροσδιορίζει τον τύπο της ελληνικής θερινής παραθαλάσσιας κατοικίας για την δημιουργία ενός νέου σπιτιού στην Νέα Σκιώνη Χαλκιδικής. Η αρχιτεκτονική πρόταση επεξεργάζεται την μορφή, την οργάνωση και τα υλικά του μοντερνιστικού παραθεριστικού κτίσματος και προβλέπει έναν οικιακό χώρο ανάπαυσης, εσωτερικό και υπαίθριο, με δυνατότητες προσαρμογής βάσει των αναγκών και επιθυμιών των κατοίκων.
Η μικρή παραθαλάσσια κατοικία στη Νέα Σκιώνη προκύπτει στο σημείο σύγκρουσης επιθυμιών και κανονισμών. Οι οικοδομικές διατάξεις της λεγόμενης “εκτός σχεδίου δόμησης” απαιτούν τη δημιουργία ενός μοναδικού κτιριακού όγκου, ορίζοντας έτσι αυστηρά την τυπική κατοικία της ελληνικής υπαίθρου.
Ωστόσο, οι ανάγκες της οικογένειας που ανέθεσε αυτό το σπίτι, ένα ζευγάρι με δύο ενήλικα παιδιά, δεν μπορούσαν να προσαρμοστούν σε αυτό το κανονιστικό πλαίσιο.
Η επιθυμία τους για αυτόνομους χώρους κατοίκησης αλλά και σημεία συλλογικής διαβίωσης μας έδωσε τη δυνατότητα να υπονομεύσουμε τα κοινωνικά και χωρικά στερεότυπα του οικιακού και της αναψυχής στην ελληνική επαρχία.
Ο σχεδιασμός της κατοικίας εγγράφει αυτές τις πολύπλοκες συνθήκες εντός ενός ενιαίου, τετράγωνου πρίσματος 17×17μ.
Αλλά μέσα σε αυτό, η κατοικία σταδιακά διαλύεται.
Δύο τεμνόμενοι άξονες, οργανώνουν την κυκλοφορία και διασπούν το πρίσμα σε τρεις αυτόνομες μονάδες κατοίκησης – η καθεμία με τη δική της είσοδο, διαδρομή προς τον κήπο και την ύπαιθρο, και κατώφλι.
Στη συμβολή των αξόνων, τοποθετείται η κουζίνα – ένα καθημερινό πεδίο συναναστροφής και επανασύνδεσης.
Ο περιμετρικός τοίχος, άλλοτε πλήρης, άλλοτε πορώδης, αποκτά διαβαθμισμένες σχέσεις με το τοπίο.
Τρεις αυλές, προϊόν αφαιρέσεων του κτιριακού όγκου, δημιουργούν χώρους για εναλλασσόμενα επεισόδια θερινής ζωής: πρωινά στη σκιά, υπαίθρια ντους, τσιγάρα και δείπνα κάτω από τον ουρανό.
Τα υλικά ανακαλούν το λεξιλόγιο των μοντερνιστικών κατοικιών της ελληνικής ακτής: υπόλευκοι τοίχοι, κουφώματα αλουμινίου, διακοσμητικά διάτρητα πανέλα, στοιχεία σκίασης και πέργκολες με καλαμωτές, ενώ το χρώμα κάνει την εμφάνισή του σε μικρά χωρικά επεισόδια.

Η κατοικία λειτουργεί ως ένας μηχανισμός που διαπραγματεύεται διαρκώς μεταβαλλόμενες οικογενειακές δομές και επεκτεινόμενες επιθυμίες.
Στοιχεία έργου
Τίτλος Κατοικία με Αυλή
Τυπολογία Αρχιτεκτονική, Κατοικία
Τοποθεσία Νέα Σκιώνη, Χαλκιδική, Ελλάδα
Κατάσταση Ολοκληρωμένο, 2025
Αρχιτεκτονική Fatura Collaborative
Ομάδα Μελέτης Αλεξάνδρα Βούγια, Θεοδόσης Ησαΐας, Πλάτων Ησαΐας, Γιανναντώνης Μουτσάτσος, Ελισάβετ Χάσα
Πολιτικός Μηχανικός RC-DC, Γιώργος Καπετάνος
Μηχανολόγος Μηχανικός EMDC, Νικόλαος Μέτζιος
Κατασκευή Anadomo
Διαχείριση Εργοταξίου Επαμεινώνδας Μοσχούτας
Φωτογραφία Γιώργης Γερόλυμπος
Κείμενο από τους δημιουργούς
READ ALSO: Café Vertigo: Studio Modijefsky gives a classic Amsterdam café a surreal new identity















